在用餐前,“いただきます”(我開動了)表達了我們對食物的感激之情。金木水火土五行元素影響著食物的生長,隨著四季更替,品嚐來自自然饋贈的時令食材是一件奢侈的事。對於追求食材本味的日本料理來說,尋找時令食材是重要的一環。在東方國家,人們根據月的盈虧計算農耕漁獵的收獲時間,“月”對我們的生活影響不亞於太陽。位於貴陽希爾頓酒店的日本料理餐廳“Akari燈”,我們以五行元素為餐廳中的包間命名,室內的“燈”散發出與月光相近的柔和光線,飽含我們對“月”的感謝之情。
餐廳外立麵
貴州多山巒,餐廳的外立麵使用了未過多加工的山石,以此來還原自然的造型,表達對大自然創造的力量和美學形狀的崇敬。石門是可活動的,關閉時具有隱藏入口的作用。
餐廳規劃
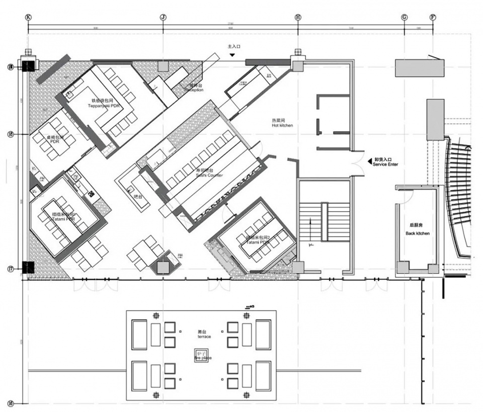
在正方形的空間中,劃分出包間與壽司吧台、鐵板燒房間等包間區域,並以五行命名。包間錯落的布局中形成了間隙,我們利用這個間隙為各包間設計了對應的景觀,既美觀又能保證包間私密性。
公共區域
餐廳的用餐區域主要由包間和分散的散座區域組成。在以包間為主的餐廳中,我們將每個包間視為獨立的建築,具有獨特設計的外立麵,又需要做到每個包間外立麵詼諧統一。鐵板燒包間被設想為一個半開放式的空間,外立麵使用玻璃磚,在確保一定程度的隱私和開放感之間取得平衡。鐵板燒包間以“火”為主題,整體為暖色調。壽司吧台區域以五行中的“水”為主題的。我們想表現光反射在水麵上的效果,最終它呈現了一個強大而具有象征意義的壽司櫃台。富有層次感的組子細工格柵保證了壽司吧台區域的深度感與私密性。榻榻米包間以“木”為主要元素,通過在創造間隙的同時建造牆壁和展示架,減少了密封感。
外擺區
在酒店庭院中設置了能劇舞台,庭院中昏暗的燈光映照著不同主題的包間。
∇ 平麵圖
項目信息
項目名稱:Akari燈 by HILTON
項目類型:室內設計
設計方:odd設計事務所
項目設計:岡本慶三/ 出口勉/王朗旭
完成年份:2022
項目地址:貴州省貴陽市
建築麵積:286㎡
攝影版權:銳景攝影
合作方:燈光設計:HDA漢都燈光設計 / MAKIKO ISHIOKA
材料:毛石,花崗岩,玻璃磚,貼木皮密度板,藝術肌理漆



























