在濟州島西海岸,有一個名叫永蘇裏的小村莊。村莊附近的海裏有兩座無人居住的島嶼,分別叫做漆溪島和水渡島。從一個特定的位置凝視這兩個島嶼,它們看起來就像一個浮出水麵呼吸的座頭鯨,宏偉而又神秘。一米民宿就建在這個特殊的位置上。
該民宿名字中的“1米”(STAY 1 METER)不僅僅意味著它的建築是建在地麵之上1米高的地方,還意味著心靈的距離,一米是使人們可以遠離日常生活的輕鬆愉快的心靈距離。1米可以從實際建築和抽象的生活來理解。這個名字就表達出了一米民宿的初始構思和最終的空間規劃。身處一米民宿中,可以欣賞到四麵八方的各種景色。在西邊,在太陽落下的地方,可以看到的前文所提到過的漆溪島和水渡島。南麵是風光秀美的黨山。往東,則可以看到遠處的漢拿山。在秋天,還可以欣賞花園中形成珍珠般的波浪的芒草與花架上的花;到了晚上,更是可以在屋頂欣賞到被繁星點綴著的夜空。
這個建築的設計首先考慮到的,是在這個麵朝大海的巨大的場地中間,房子應該是什麼樣子的。水平的屋頂是為了不破壞房屋周圍的景色。一米民宿就像一艘小船,漂浮在芒草和麥田之間。在房間內,你可以清楚地看到日落的景色,餘暉灑滿了房子的每一個角落。
一顆種在了大門附近的樸樹,像一顆迎客鬆一般,歡迎著客人的來訪,這也是這所房子的象征。這個長橢圓形的1層建築的兩端各設有兩個臥室,每個臥室都與一個秘密的空間相連。北側臥室通向一個在橢圓形空間內的露天浴缸,而南側的臥室與完全開放的外部區域相連。中間則是客廳和廚房的所在。這個空間格外的不同,設計師通過降低客廳的地板,使得人們能夠有一愜意的空間和一個適合向外遠眺的視野。因為房子朝向大海的一麵全部是玻璃材質,所以周圍的風景和日常生活輕而易舉地與自然中時間的流動和季節的變化融為一體。從外麵看,玻璃材質的一側則反射光線與周遭的景致,使得建築融入到周圍的環境當中。
在室外,有一個與海平麵相同高度的小型遊泳池,以及一個與芒草一樣高的戶外桌子。室外設施,花園與停車場所使用的材料的高度,顏色和紋理全部都經過精心的設計,與周圍環境融為一體。建築外麵還有一個通向屋頂的圓形樓梯,在那裏可以欣賞周圍全部的景色。
∇ 平麵圖
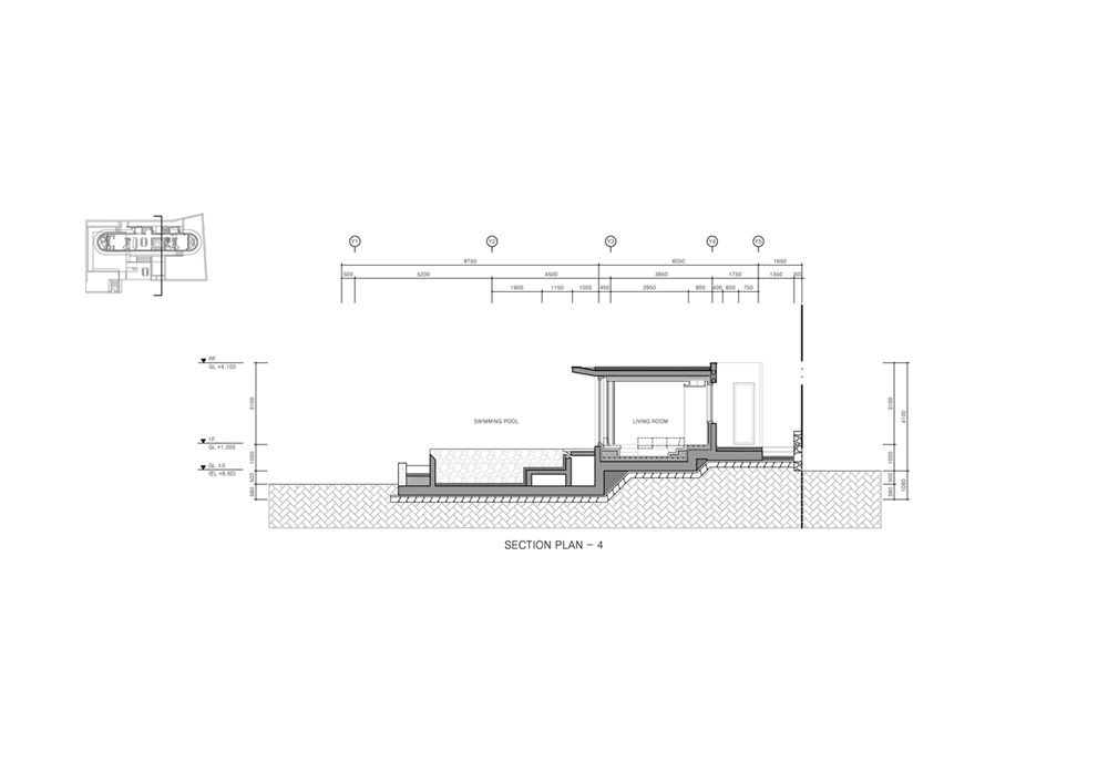
∇ 剖麵圖
主要項目信息
項目名稱:STAY 1 METER
項目位置:韓國濟州島
項目類型:設計酒店/民宿
建築麵積:99.96 m²
完成時間:2018.11
設計公司:Z_Lab
攝影:Lee Byunggeun
文字:archdaily



































