WARchitect Studio 已在泰國曼穀實施了Sleepless Residence項目。570㎡的私人別墅坐落在環境優美的場地上,可欣賞湖泊全景,在這裏可以感受到大自然的“呼吸”,並可以從快節奏的大都市中放鬆身心。
庭院設計在房屋的中央,連接所有空間,讓業主在白天欣賞常綠的環境。對於所有者而言,重要的是不僅要專注於寫音樂,而且要獲得放鬆的地方和與朋友聚會的場所。這所房子設計的主要內容不是出色的形式,而是空間和氛圍。
設計師專注於如何優化湖泊的全景,從而喚起了露天劇場式的空間。對主臥空間也做了優化設計,以便在臥室中可以看到湖景,庭院和客廳。另一方麵,在湖邊的客廳裏消磨時光時,還可以回頭看臥室、看隱藏停車場的綠色露台的台階。
對於別墅的內部,設計師選擇了硬朗風格的材料,但帶有更多豪華的氣息。獨特的外部立麵保護業主的私密性,並防止內部過熱,創造良好的通風。
∇ 一層平麵圖
∇ 二層平麵圖
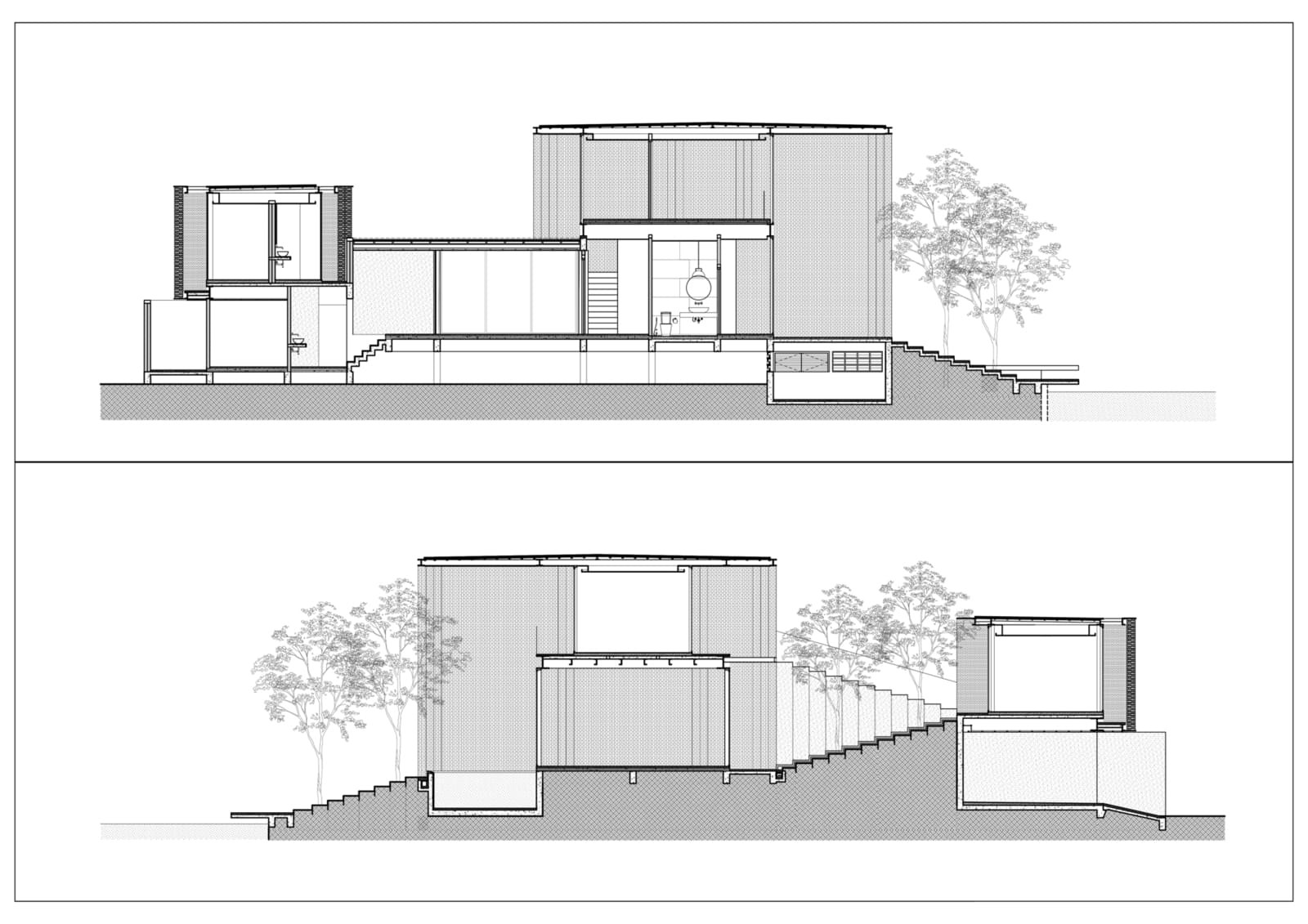
∇ 剖麵圖
∇ 立麵圖
∇ 別墅整體功能演示
版權聲明:本站所有文章除投稿授權發布外,其他文字內容均為原創,享有著作權保護,未經許可不得以任何形式進行轉載(包括且不限於:媒體、網站、公眾號等)。所有項目照片/設計圖形版權歸原作者所有。本站部分內容源自網絡公開資源或用戶分享,如若侵犯了原作者的合法權益,可聯係我們進行處理。























































