由Walker Workshop設計的CarlaHouse位於美國加利福尼亞州比佛利山莊一個僻靜的山脊上。別墅建築的高度為三層,可欣賞到洛杉磯多山的環境和遠處群山的美景。從房子裏也可以看到格裏菲思天文台和好萊塢標誌都能看到,這棟別墅的鄰居大多為好萊塢明星。CarlaHouse別墅的對外售價為4600萬美元。
CarlaHouse別墅建在平緩的斜坡上,占地麵積1858平方米,可為房主提供世界上最理想的地方之一的豪華生活所需的一切。這所房子有七間臥室,九個浴室,寬敞的起居區,電影院,健身房,遊泳池和露台,可舉辦聚會。
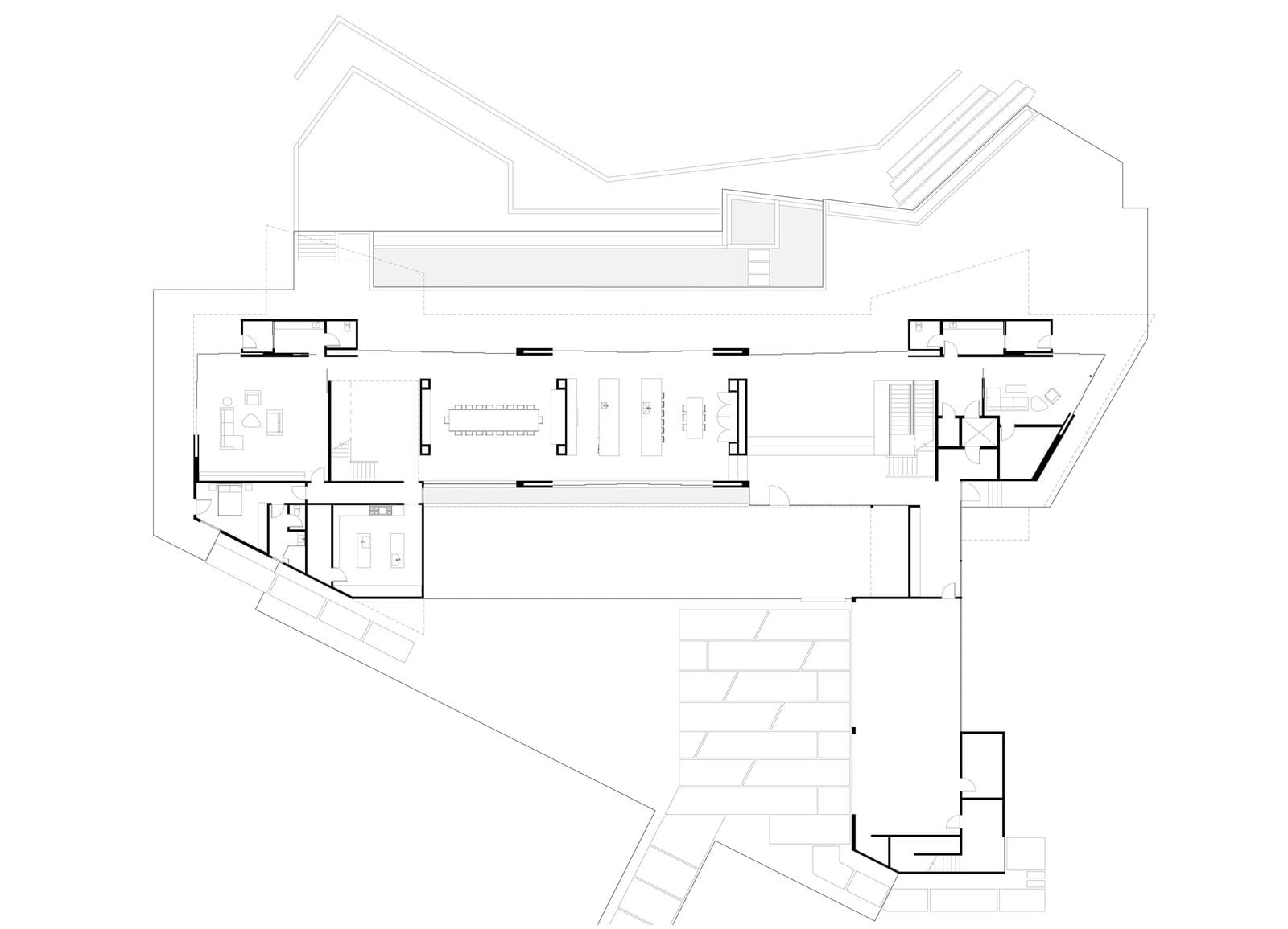
建築師沒有創建一個單一的體積,而是將房子分成兩個側翼,稍稍轉動以提供最佳視野,並通過位於下方的中央玻璃塊與全景玻璃相連。
外牆的裝飾使用了混合材料,包括西部紅柏,混凝土和白色塗料。大麵積的玻璃為室內空間提供了充足的自然采光,使業主可以不受阻礙地欣賞風景。
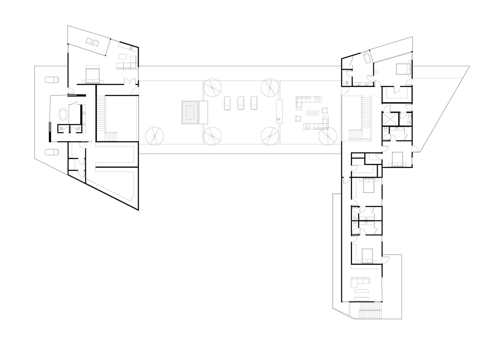
廚房設有大理石島台,白橡木櫥櫃和高檔家電。可以通過帶有混凝土牆的木樓梯進入位於別墅兩翼的臥室。在別墅的露台,有一個186平方米的露天聚會區。
客廳,廚房和飯廳占據了中心區域,大麵積推拉落地窗將內部和外部世界之間的邊界融為一體。該區域的裝飾包括灰色瓷磚地板,白色牆壁和舒適雪鬆木“包裹”的天花板。
∇ 一層平麵圖
∇ 二層平麵圖
∇ 三層平麵圖
∇ 頂層平麵圖
版權聲明:本站所有文章除投稿授權發布外,其他文字內容均為原創,享有著作權保護,未經許可不得以任何形式進行轉載(包括且不限於:媒體、網站、公眾號等)。所有項目照片/設計圖形版權歸原作者所有。本站部分內容源自網絡公開資源或用戶分享,如若侵犯了原作者的合法權益,可聯係我們進行處理。































