全球設計風向感謝來自 WJID維幾設計 的售樓處空間項目案例分享:
我渴望去重現記憶——
通過圖像、聲音、觸感、氣味獲得的記憶
它與客觀存在的事件疊加,翻譯、重構
由此生發出了名為‘情感’的東西
——WJID
石家莊是人類最早的文化發源地之一,悠悠大地孕育了一眾賢臣名將、詩人學者。而其古城老街,也彰顯著這座城市的精神內核與獨特魅力,冥冥之中,召喚著人們的情感記憶。
∇ 正定古城
∇ 天長宋古城
WJID秉持現代簡約的美學理念,將與情感與文化相關的記憶內化於空間當中,撫平人心中的空虛與躁動。天地間,流淌著水墨般的詩意畫境,一席風雅的畫卷徐徐展開。
步入前廳,入眼便是瀲灩的水晶吊燈與大理石背景帶來的視覺衝擊。
空靈通透與厚重沉鬱在同一空間下交融地恰到好處,兼具清新明亮與人文厚度,自然而然地表達出包容萬象的東方美學態度。
WJID引用中式木格柵的元素,以古銅金屬形成縱向區隔,結合軟裝配飾,運用玻璃、木質、紙藝等注入不同層次與肌理,提升整個空間的生活格調與感官體驗。
1.翠羽明珠,參差金碧
經過玻璃影壁,來到洽談區內,空間豁然打開。深色木飾麵與白色天花形成對比,雅致色調營造東方意境。
設計師將淺灰色沙發與理石茶幾對稱分布,映襯在深色背景牆和精致的木質格柵之下,給人氣度之感。
圓形玻璃壁燈的浮雕肌理、高櫃上的藝術擺件……WJID使不同質感相互點綴,打造出古樸與現代的結合。
圓形壁燈柔和了原本規整的縱向線條,為洽談區增添了一絲婉轉。綠色玻璃及古銅金屬作為點綴,使空間層次更加富有意蘊。
暖木、金屬、皮革、布藝……材質元素如音符般跳躍在在空間內,把洽談區的空間節奏、自然質感與人文感受連結起來。
2. 琳琅雅域
嚴謹規整的木門之後,沙盤區則是一派水光瀲灩的幽靜詩意。古銅金屬與玻璃交錯形成的巨型吊燈自天花垂下,暖黃的光暈淡雅柔和。
視線投向走廊盡頭,兩側帶有浮雕肌理的玻璃屏風將空間的視覺效果向兩側延伸。設計師使空間呈現出水晶宮般的剔透,令區域的分割、空間的體驗上也生出一種壯闊與氣韻。
∇ 屏風·細部
禪畫重“妙悟”,凝神遐想,妙悟自然,物我兩忘,離形去智。WJID將這種虛與實、思與悟、靈性與自然放置在一個畫布般的空間裏去敘事,空間為畫,畫中亦有畫,詮釋出獨特的東方意境。
連綿成片的透明吊燈,在室內撒下一片星星點點,銀波微漾,美輪美奐。滿足功能需要的同時,也為空間籠罩上一層夢幻情致,模糊了現實與幻想的界限。
細節之處,壁燈組合延續著翠羽明珠的詩意——洗濯磨淬中孕育精華,終成翠羽明珠,描摹出空間的尊貴感。圓形與線條交織形成的韻律感,讓探索與交流更加富有流動的韻致。
3.淳美書簡
我能感傷也能冷靜,能認真也能超脫。能應俗隨時,也能潛藏非塵世的丘壑。
文藝的珍貴的雨露浸潤到我的靈魂至深處,我是一個再造過的人,創造主就是我自己。
——朱光潛
出則繁華,入室則靜。來到VIP區,遇見另一番風景。
大幅落地窗使柔和的光線流瀉而入,賦予整個空間流動的光影。配上線性的藝術燈具與綠植,整個空間縈繞著靈動的呼吸感。
∇ 氤氳水墨·全局
灰色牆麵之上,懸掛著一幅意境朦朧又有氣勢的山水畫。畫卷上端微微翹起,增添了一絲虛實交融的氣息,仿佛有山間微風拂過窗欞,輕輕吹起白色窗簾,於是景色也便在這其中,微微搖動。
書籍、畫卷、墨寶…… 鋪構了書香雅韻,構建當代生活空間的文化氣質,顯得寧靜而雅趣。
WJID探索的,是如何將城市記憶的塑造融入空間,呈演曆史與當代、經典與時尚、人文與自然的共融共生,使物象的實體,帶動觀者的情感共鳴。
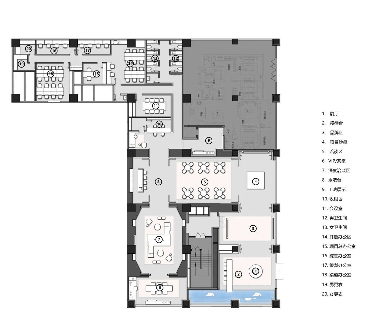
∇ 平麵圖
項目信息
項目名稱:石家莊旭輝鉑宸府售樓處
項目地點:中國石家莊項目
麵積:715m
²甲方單位:旭輝集團華北區域集團石家莊公司
硬裝設計:WJID維幾設計
軟裝陳列:WJID維幾設計
完工時間:2020年5月
項目攝影: 鄭焰








































