全球設計風向感謝來自 COLORFULL 昱景設計 的書店空間項目案例分享:
如今的青村老街遺韻猶存,市河上保存有康熙三十一年建的南虹橋、清代永壽橋等古石橋多座,兩側民居臨水而建,保存完整,其中包括明代張弼三世司馬宅、財神廟等建築,古橋、庭院、吊腳樓、茶館書苑、風味小吃,整條街道獨具江南水鄉特色。2004年,青村老街被列為上海市曆史風貌保護區域。
Today’s Qingcun Ancient Town still retains its charm. There are many ancient stone bridges on the river, including the Nan Hong Bridge built in 1692 and the Yong Shou Bridge built in Qing Dynasty. The residences on both sides of the river are well preserved, including the Sima Residence of Zhang Bi and his sons built in Ming Dynasty and the Temple of Wealth. With the ancient bridges, courtyards, stilted buildings, teahouses, book gardens and local snacks, Qingcun Ancient Town is full of unique characteristics of Jiangnan water town. In 2004, Qingcun Ancient Town was listed as a preservative area of Shanghai historical landscape.
而中版書房,在業內看來,有其獨特優勢,那就是“出版人開書店”。
書房以讀者為中心,致力於為讀者做好閱讀服務,希望通過閱讀+文化+活動+服務的形式,探索實現可持續發展的“出版+”、“文化+”新型閱讀空間。因此,如何融入當地文化,打造新的城市符號,是本案設計的重點。
On the other hand, China Publishing Bookstore, from the industry insiders’ perspective, has its unique advantage as a publisher’s bookstore.
The bookstore is built to provide considerate reading service for the readers. We hope to achieve the sustainable development of “publishing +” and “culture +” reading space through the combination of “reading + culture + activities + services”. Therefore, to integrate into the local culture and create a new city symbol is our focus of the design.
基於中版書房和青村的奇妙配置,我們1層和2層引入了兩個不同的設計概念:
Based on the fantastic combination of the China Publishing Bookstore and Qingcun Ancient Town, we introduced two different design concepts into the two floors:
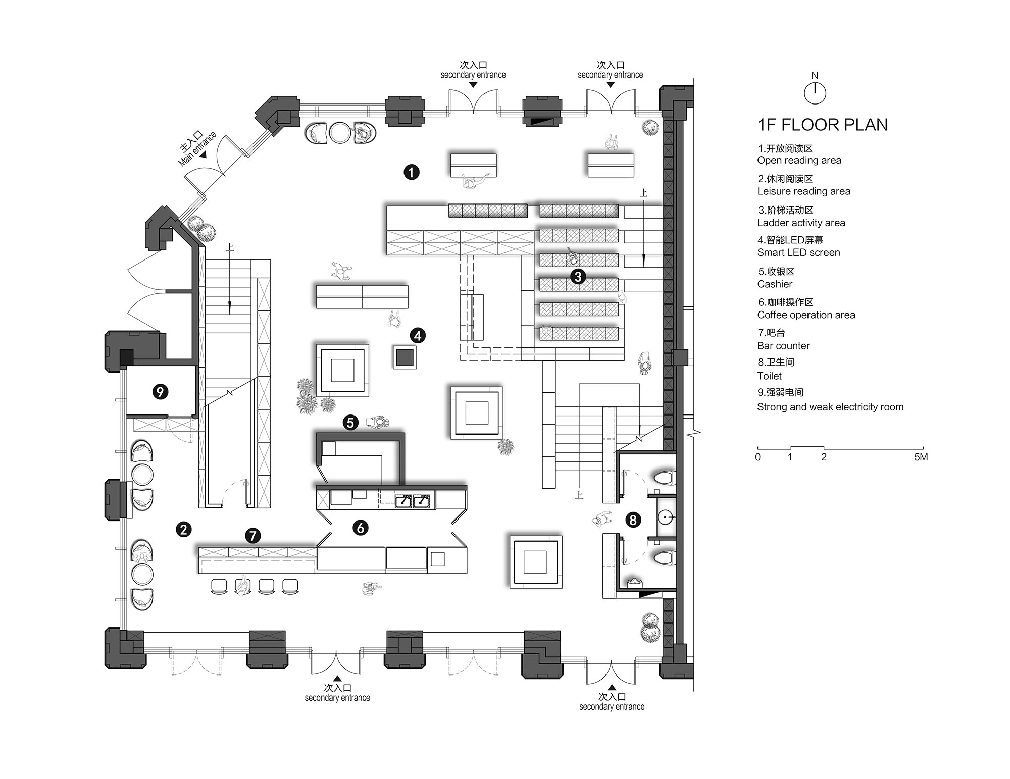
1層是水鄉書鎮。
The concept of 1F is the Bookstore of Watertown.
我們在設計中融入了曆史悠久的水鄉元素和中版文化。新的商業概念和舊的景觀成分的結合,使書店成為該地區獨特文化的基礎。
記憶中的水鄉,羊腸九曲的水路和巷道交織在一起,令人徜徉其中流連忘返。中心通道將1層劃分為動與靜兩個區域,在設計中通過書架和家具的圍合,我們重現了記憶中的水鄉格局,營造出迷幻的空間體驗。
可移動的書架也為空間保留了高度的靈活性。
We have incorporated elements of historic watertown and the culture of China Publishing into our design. The combination of both new commercial concepts and the historical landscape makes the bookstore a symbol of the area’s unique culture.
Watertown, in most people’s memory, is a delightful place to wander and linger with winding waterways and roadways intertwined. The central passageway on the first floor, divides the space into two areas, respectively set for movement and silence. By enclosing the bookshelves and furniture, we recreate the pattern of the remembered watertown, and a psychedelic spatial experience in it.
The movable bookshelves also retain more flexibility of the space for different future demands.
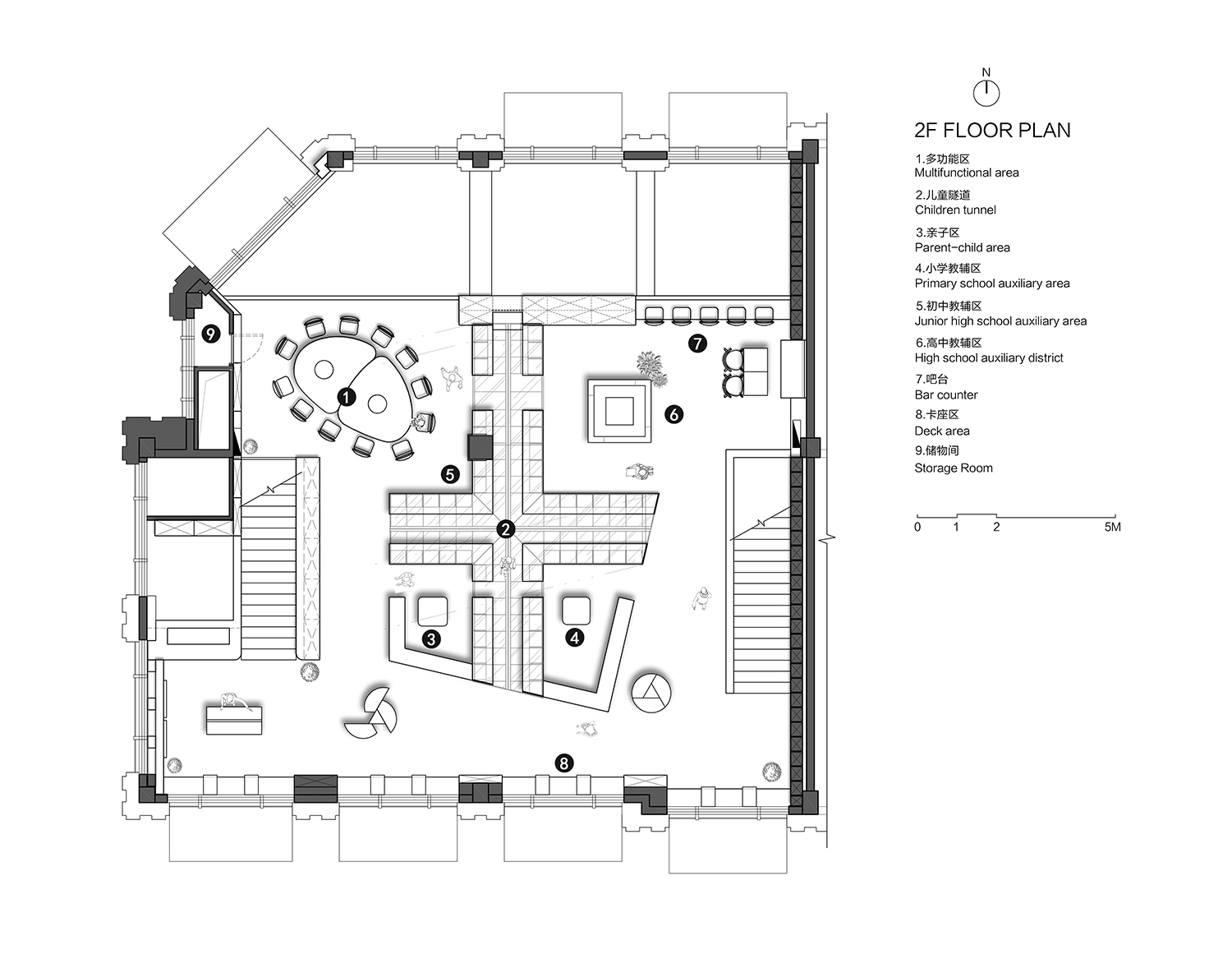
貫穿2層的概念是兒童隧道。
The concept throughout 2F is the Children’s Tunnel.
我們希望通過設計,使中版書房成為文化生活空間社區,多層次的文化體驗空間,帶有人文氣質的城市符號。
We hope that through our design, the bookstore will become a cultural community, a comfortable experience space, and a humanistic symbol of the city.
∇ 概念圖 Concept map
∇ 平麵圖 Plan
∇ 立麵圖 Elevations
項目信息
項目名稱:中版書房-奉賢店
項目地址:上海市奉賢區南奉公路3111弄7號樓
設計方:COLORFULL 昱景設計
建築麵積:550㎡
公司網站:http://www.colorfull-design.com/
聯係郵箱:cf@colorfull-design.com
項目設計 & 完成年份:2020
設計指導:趙宗陽、小野良介
方案設計:川合豐、謝晧翔
設計深化:莊宏玲、張凡星、張顥
攝影版權:潤土 | 邵鍾瑞
客戶:中國出版集團
材料:水磨石、文字青磚、不鏽鋼水波紋、瓷板地麵、木紋珂定板
Project name:China Publishing BookStore-Fengxian Store
Project location:Building 7, Lane 3111, Nanfeng Road, Fengxian District, Shanghai
Design:COLORFULL YUJING DESIGN
Gross Built Area (square meters):550㎡
Website:http://www.colorfull-design.com/
Contact e-mail:cf@colorfull-design.com
Design year & Completion Year:2020
Design Direction:Sunny Zhao,Ryo Ono
Schematic design:Kawai Yutaka,Haoxiang Xie
Design Development:Hongling Zhuang,Fanxing Zhang,Hao Zhang
Photo credits:ArchiTranslator | Aaron Shao
Clients:China Publishing Group
Brands / Products used in the project:Terrazzo, text blue brick, stainless steel water ripple,Porcelain floor, wood grain Keding board

























