全球設計風向感謝來自 易本設計 的酒吧空間項目案例分享:
麻雀雖小,五髒俱全,且倔而堅韌,無法家養;
在這個小的空間裏可以帶給大家很多東西。
Although the sparrow is small, with five internal organs, it is stubborn and tough, and can not be raised at home;
In this small space can bring you a lot of things.
Sparrow雞尾酒空間位於濟南市高新區丁豪廣場,是一間經營雞尾酒、洋酒、咖啡的小型酒吧。
Sparrow cocktail space is located in Dinghao square, high tech Zone, Jinan City. It is a small bar for cocktails, wine and coffee.
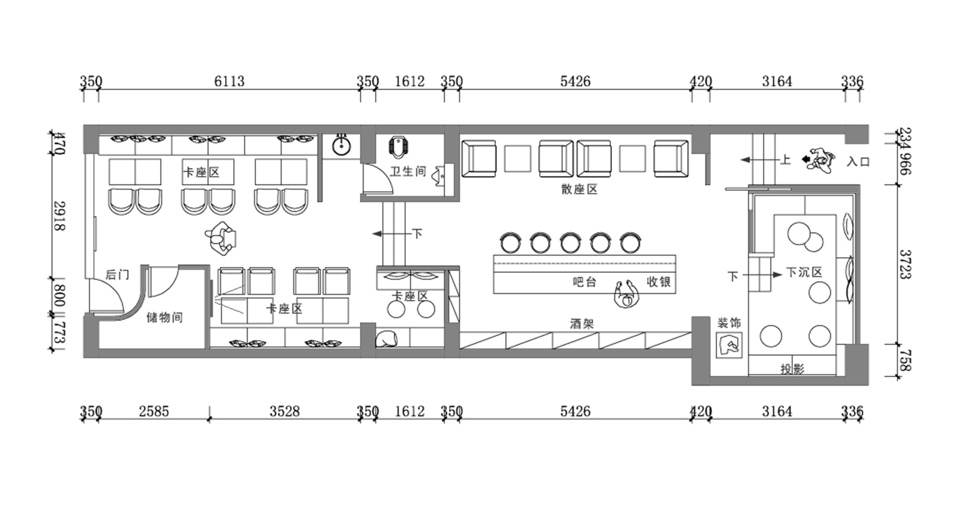
場地是一個進深18米,開間僅5米的狹長空間。為了打破單調的空間形態,我們將整個空間劃為三段,將中間的吧台區域抬高三級踏步,並改變了入口位置。
The site is a narrow space with a depth of 18 meters and a bay of only 5 meters. In order to break the monotonous space form, we divided the whole space into three sections, raised the bar area in the middle by three steps, and changed the entrance position.
靠近步行街的一側下沉空間,立麵為全打開式的折疊窗戶,配合著室內種植池,營造一種室外感。打開窗戶,室內與街道的界限變得模糊,彼此互相滲入;關上窗戶,此區域則成為充滿圍合感的獨立空間。
One side of the sunken space near the pedestrian street, the facade is full open folding window, with the indoor planting pool, creating a kind of outdoor feeling. When the windows are opened, the boundaries between the interior and the street become blurred and infiltrate each other; when the windows are closed, the area becomes an enclosed space.
位於空間中段的衛生間,我們結合其對麵的兩個巨大的結構柱,統一其表麵材質和顏色,猶如一個獨立體塊置入空間,把狹長的場地一分為二。
In the bathroom in the middle of the space, we combine the two huge structural columns opposite it to unify its surface material and color, just like an independent block placed into the space, dividing the long and narrow site into two.
∇ 平麵圖
項目信息
項目名稱:麻雀雞尾酒空間
設計方:易本設計
聯係郵箱:yiben30191@163.com
項目設計&完成年份:2020年8月
主創設計:楊緒傑
項目地址:山東濟南
建築麵積:120平方米
攝影版權:楊緒傑























