全球設計風向感謝來自 CCDI卝智室內設計 的辦公室空間項目案例分享:
中國最大的文化創意產業集成孵化中心落成!
Completion of the integration of China’s largest culture & creative industry incubation center!
北緯39°,東經116°。
39 degrees North, 116 degrees East.
雲中俯瞰,ZODIAC-ALL INN【凹空間】座落於北京的東南角,一棟建於上世紀80年代的新式聯棟廠房裏。
Overlook from sky, ZODIAC-ALL INN [Concave space] is located at southeast of Beijing, in a “new type union building” built from 80s of last century.
北臨中國傳媒大學,西鄰中國油畫院,東近珍貝奧特萊斯商業中心,南環1500畝森林公園。距CCTV、人民日報、國貿CBD僅10—20分鍾車程;地鐵傳媒大學站距園區北側直線距離不到800米。
North near Communication University of China, West near Oil Painting Academy of China, East near Zhen Bei Outlets shopping center, South area surrounded with 1500 acres of forest park. Only 10-20 minutes’ drive to CCTV, People’s Daily Tower, and Guomao CBD area.
∇ 原建築空間+改造過程 The original architectural space + transformation process
曆史上,這裏曾是京城著名的國營工業老廠聚集區,典型的德國包豪斯建築風格。
Historically, it was once the capital’s famous State-Run industrial factory area, typical of the Germany Bauhaus architectural style.
從村野鄉間到紅磚廠房,再到文創園區,走過農耕文明,曆經工業革命,又迎來新興產業經濟浪潮。老廠房具有最高9米的超高縱深,巨大的頂穹撐起改革開放的經濟脊梁,也將為下一個時代的轉變鋪墊了不俗的基調。
From countryside to red-brick factory workhouse, then to the culture & creative park, through the agricultural civilization, after the industrial revolution, and usher in the wave of new industrial economy. Original factory workhouse had highest of 9 meters high depth, the huge dome become the support and backbone of the reform and opening of the economy, and foreshadowing a decent tone for the changes of next generation.
對於這樣一個有故事的地方,灰黃的老照片已不能擔負起空間功能的轉變重任。
For a place with full of stories like this, Grey-yellow old photos cannot bear the responsibilities of space transforming.
公元2016,恰逢天時,地利,人和,它的命運被交付於一個年輕的群體,ALL INN拔地初創。作為聚焦文創產業的孵化樣版,帝都東方的地平線上,將平升一座文創產業聖域,成為CBD中央商務區東擴的新地標。
In 2016, coincides with the perfect timing, advantage of location, and right people, the park’s fate was delivered to a young group, ALL INN was started-up. As the hatch pattern of focusing on culture & creative industries, on the eastern horizon of the capital, a sanctuary of culture & creative industries shall raise, become the new landmark of the CBD central business district eastward expansion.
∇ 設計過程草稿 The design sketch
為了兼具國際化視野與本土文化內涵,內置在工業廠房中的ALL INN成為一項極富挑戰性的空間再造工程。為此,卝智室內設計與各方團隊協同並進,聯合21位九大領域資曆非凡的設計師、工程師集結北京,組成專家團隊,共同參與到這個不可思議的項目中。
To combine both international and local culture, ALL INN which is located in old factory workshop, had become a very challenging re-build space project. Therefore, GRAND WISDOM INTERIOR DESIGN team coordinate and forward with all the other different teams, with 21 extraordinary designers and engineers with great qualifications gathered in Beijing, composed of a team of experts, and all participated this amazing project.
這座建築,因其獨到的中式圍合型庭院空間結構,被定名為“凹”。
This building, because of its unique Chinese style garden space construction, it is given a name “concave”.
ALL INN的建築平麵圖,好似一幅波瀾恢弘的藏寶圖——坐北朝南,前窄後寬的巨大後庭,隱喻吞囊萬物而不泄的貔貅中腹,故含招財進寶、藏風納氣的祥瑞寓意。
The architecture floor plan of ALL INN, like a picture of waves grand treasure map – sitting at north and face south, with narrow front yard and wide back yard, metaphor of swallow everything without release, which contain the auspicious implies of bring in wealth and treasure, Hide wind reception of QI.
與離心傾向的負空間相反,正空間一定是圍合的向心傾向,吸引人、協調人,具備完成大型項目的環境條件。ALL INN將建築天然圍合出的空間加以完善,由周邊向內心收斂,塑造出一種增進交流的凹形氣場,生機冉冉。
Contrary to the centrifugal tendencies and negative space, positive space must be enclosed centripetal tendencies, attractive, coordinate, possessed the environmental conditions of complete large projects. ALL INN has perfected the space naturally enclosure by architecture, convergence to its heart from periphery, create a concave shape aura to enhance communication and vitality.
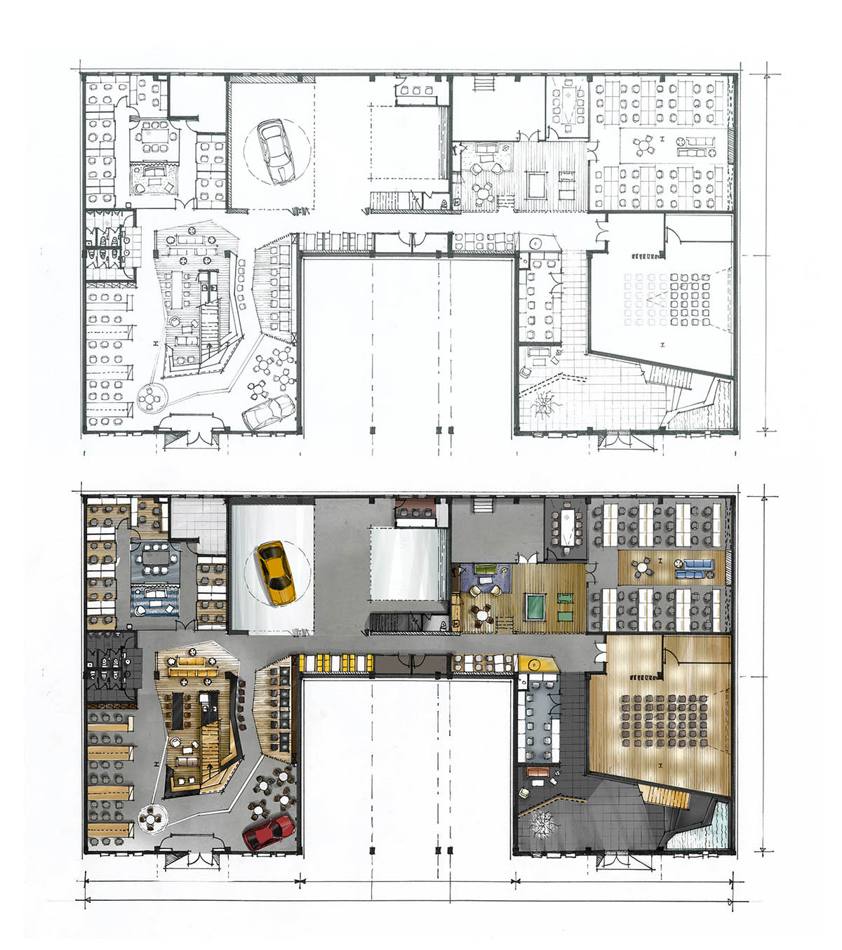
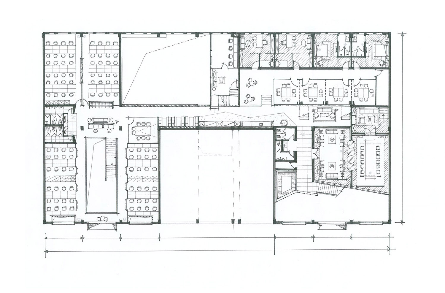
∇ 一層平麵布局 The L1 plane
∇ 二層平麵布局 The L2plane
一個巨大的凹字,布局了中國未來的文化創意產業格局。
One giant letter of concave, layout the future pattern of China’s culture & creative industries.
ZODIAC-ALL INN——【凹空間】
ZONDIAC-ALL INN- [Concave Space]
∇ 主入口公共區 Main Entrance public area
BIG idea , GOOD idea。
ALL INN承載了無數年輕的夢想。2500平方米商務聯合辦公空間,可容納至少300名精英同時辦公協作。
ALL INN has carried countless young dreams. 2500 sq meters union commercial office space, able to accommodate at least 300 elites work together.
11間獨立辦公區,7大會議室,2塊超寬敞公共休閑區、專業影音室遍布1-3層,滿足日常行政商務需求。大長桌、獨立工位、皮質沙發、休閑躺椅,貴賓接待室、多功能展廳、品茶室、雪茄吧,勞逸結合,張弛有度。
11 separated work areas, 7 large conference rooms, 2 spacious lounge area, specialized AV room all over 1-3 floors, meets daily business needs. Long table, independent work station, leather sofa, leisure chair, VIP room, multi-purpose hall, tea room, and cigar bar, balanced between work and leisure, and relaxation.
∇ 公共休閑區旁獨立辦公區 Separated work area near public lounge area
∇ 公共休閑區 Public lounge area
∇ 公共休閑區/衛生間 Public lounge area/washroom
道法自然,自然而然。
Imitation of Nature, naturally nature.
老廠房的新生,不僅僅有視覺的更新,功能聚合如同建築呼吸被更新迭代。
The reborn of old factory workshop, not only renewed visually, updated iteration of functions and aggregates like the building’s breath.
能源來自太陽能,引進光伏發電係統,使ALL INN這樣的大型建築實現電力自給。
Introduction the photovoltaic power generate system, border post to provide solar energy, so that large building like ALL IN can be self-sufficiency of power.
空調係統采用新能源——空氣能調控溫度,是領先國際的大型建築采暖、通風、空氣調節新型暖通解決方案。
Use new energy for Air-conditioning system – regulate and control temperature by air. It is a leading new type HVAC solution of international large building of heating, ventilation, air conditioning.
中央新風淨化係統,引入自然新鮮空氣,並過濾掉新風裏的5,保證室內空氣質量,塑造綠色辦公空間。
Central air purification system, bring in fresh air and filter PM 2.5 out of fresh air, ensure the quality of interior air, create eco-friendly office space.
∇ 雙層獨立辦公區 Two levels of separated work areas
上下層空間分層設計,磚牆、水泥牆麵、水泥自流平地麵8級以上抗震強度,賦予空間十足的後現代工業範兒。
Upper and lower spaces are designed hierarchically, brick walls, cement walls, cement self-leveling floor with seismic intensity of 8 or above, giving the space full of postmodern industrial style.
黑色鋼板鋼架結構搭配金屬網,提升了空間的安全度與牢靠度,抗裂性能提高75%以上,塑造了硬朗的空間性格。
Black steel plates and steel frame construct with metal mesh to enhance the security and reliable of the space. Increase more than 75% cracking resistance, create a tough space character.
管線不刻意隱藏,將它靈活轉化為空間的視覺元素 ,配置頗具藝術感的吊燈,體現出前衛淩厲的工業精神。
Don’t intentionally hide pipelines, flexible transform them into visual elements within the space. Arrange with artistic chandeliers, reflect avant-garde industrial spirit.
∇ 獨立辦公區/會議室 Separate work area/conference room
∇ 休閑走廊 Lounge corridor
我們深知開放、天然的社交空間,會讓每個人在工作中受益不少。
We understand that open, natural social space will make every one benefit a lot during their work.
讓舒適的休息室成為辦公室的重要部分,也能大力提升項目團隊的創造力。
Comfortable lounge become an important part of the office, greatly enhance the creativity of the project team.
於是,ALL INN內置靈感之源,哪怕隻是重新布置自己的辦公桌,動力和創意都會潮湧而來。
Thus, ALL INN with an internal source of inspiration, motivation and creativities will flooded in, even only re-arrange the work station.
∇ 雙層獨立辦公區/挑空區域 Two levels of separate work areas/atrium
∇ 雙層獨立辦公區 Two levels of separate work areas
∇ 雙層獨立辦公區走廊 Two levels of separate work areas corridor
∇ 雙層獨立辦公區/左邊為垂直速降落杆 Two levels of separate work area, vertical landing rod on the left
和798不一樣,除了麵朝大海,春暖花開的文藝情懷,這裏包囊更多不僅金玉其外、內裏成熟有度的商業文明。
unlike the 798, beside the literary sensibility of facing the sea with spring blossoms, here contains more business civilization with good and mature.
與其他商業空間不同,ALL INN內蘊的價值體係是一種人文人居哲學,將建築從物理屬性升華到價值層麵。藉由這種人文價值的驅動,設計師賦予曾經的鍋爐廠、木材廠、玻璃廠等工業廠房新的生機。
Unlike other commercial space, the ALL INN’s intrinsic value system is a philosophy of human habitat, elevate the architecture from physical attribute to value level. With the drive of human-value, designers have given former boiler factories, mills, glass factories and all other industrial workshop a new life.
∇ 獨立辦公區 Separate work area
∇ 獨立辦公區/會議室 Separate work area/Conference room
∇ 雙層影棚/北京唯一一處設置在聯創辦公空間內的影棚 Two-levels film studio/one and only film studio set up at union office space
∇ 辦公區會所空間入口 Entrance of office club house
∇ Office club house
194天設計與施工周期,卝智團隊無數次現場實地勘察、測量、繪製、創意、設計,對每一米、每一度的把握極盡嚴苛。建築設計師、室內設計師、機電設計師、結構設計師曆經激烈的研討與思維碰撞,近乎瘋狂。
194 days of design and construction period, GRAND WISDOM team spent numerous onsite investigation, measurement, drawing, creative, design, extreme strict on every meter, every degree. Architects, interior designers, electrical and mechanical designers, and construction designers had fierce collision of research and crazy thinking.
這裏,將是各個行業最聰明的人工作的領域。
Here, will be the work place for the most brilliant people of all industries.
當我們談論著這個世界上各種各樣的天才時,我們都感到既羨慕又崇拜,既遙遠又神秘。
When we talk about various genius around the world, we feel both envious and worship, both distant and mysterious.
在ALL INN,“天才”是一種高效率的解決方案、產業化的思維模式,卝智室內設計已將空間視覺化、功能化、產品化、自信成功地展現出來,為北京地區創客辦公新模式再添一枚傲標杆之作!
Within ALL INN, “GENIUS” is a thinking mind of high efficiency solution and industrialization. GRAND WISDOM INTERIOR DESIGN have confident and successfully revealed the space visually, functional, and producibility. Add another proud and modelling work for new mode of creative office at Beijing area!
項目信息
項目名稱:ZODIAC-ALL INN【凹空間】文化創意產業集成孵化中心
項目官方網站 :www.zodiacbm.com
項目地點:北京
項目設計時間/完成時間:2015.10/2016.9
項目麵積:2,500㎡
設計範圍:原老舊廠房室內和外立麵改造
主要用材:水泥自流平、金屬網天花、木紋轉印鋁板、大理石、混凝土裝飾板、地毯
設計機構:CCDI卝智室內設計
設計師:李秩宇、侯守國、
浦玉珍、薛俊、張可嘉、王驍夏、李振興、李海濤、李雲、楊彥鈴
攝影師:魯飛、任恩彬
聯係郵箱:gwdesign@yeah.net
公司官方微信:GWdaily
Project name: ZODIAC-ALL INN [Concave space] Culture & creative industry incubation center.
Web:www.zodiacbm.com
Location : Beijing
Design/completion:2015.10/2016.9
Project area: 2,500㎡.
Design range: original old factory workshop’s interior space and façade reform
Materials:Concrete epoxy paint 、Wood aluminum panel 、Marble Stone、Concrete plate、Carpet
Design Firm: CCDI GRAND WISDOM INTERIOR DESIGN STUDIO
Designer: Li Zhiyu, Hou Shouguo, Pu Yuzhen, Xue Jun, Zhang Kejia, Wang Xiaoxia, Li Haitao, Yang Yanling
Photographer:Lu Fei, Ren Eenbin
Email:gwdesign@yeah.net
Wechat:GWdaily

































