全球設計風向感謝來自 DUTS杜茲設計 的公共空間/圖書館項目案例分享:
注入複合業態:“圖書館”的開放與新生
Injecting multiple formats: the opening and rebirth of “Library”
緣起:南京的“板倉街78號”
Foreword: “No. 78 Bancang Street” in Nanjing
中國城市在經曆了近四十年的快速發展後,已經到達了臨界點,即大規模的空間增長不可持續,土地開發空間嚴重受限。麵對困局,政府與企業都在積極探索城市發展建設的創新之路,思考如何通過更新與再生對現有土地進行功能轉型、結構重建,從而與城市創新和新經濟相融合。
After nearly 40 years of rapid development, Chinese cities have reached the critical point of large-scale spatial growth is unsustainable and land development space is severely limited. Both the government and enterprises are actively exploring an innovative way of urban development and construction, thinking about how to transform the existing land’s function and rebuild that structure through renewal and regeneration, so as to integrate with urban innovation and a new economy.
2019年7月,曆史悠久,風格古樸的南京師範大學紫金校區正式結束了教書育人的使命,送走了最後一批學子。南師大紫金校區總共占地麵積約11萬平方米,地上建築麵積約8萬平方米,這裏留下了許多人的青蔥校園記憶,也留下了這座大學校園與城市的文化鏈接。
In July 2019, the Zijin Campus of Nanjing Normal University, with a long history and a simple style ended its mission as a university campus. The campus covers a total area of 110,000 square meters, and the “above-ground” building area is 80,000 square meters. It leaves many campus memories for its past students and the cultural link between this university and the city.
校區位於“紫金山下,玄武湖邊”,觀山望湖,具有良好的景觀和校園獨有的生態環境。“板倉街78號”,在這裏人文與校園情懷交疊,也構成了知性,包容,創新的學院派氛圍。這片校區的未來將何去何從?是僅保留地塊,做大範圍的革新,或是選擇保留校園文化記憶,探尋新的建築新生?
The campus is located under the “Purple Mountain, beside Xuanwu Lake”, with views of the mountains and the lake. A good landscape and a unique ecological environment inside it. “No. 78 Bancang Street”, where human culture and campus memories feelings are overlapped, it constitutes an intellectual, tolerant, and innovative academic atmosphere. Which future this campus is heading to? Is it to keep only the land and make a large-scale innovation, or choose to preserve the campus cultural memory and explore an architecture renovation?
向史而新-新型城市文化空間改造與創新
Heritage and Innovation: New Urban Cultural Space Transformation and Innovation
DUTS杜茲設計在2019年接受金地商置的邀請,進行原南京師範大學紫金校區的整體改造設計工作。日前,原南京師範大學紫金校區改造項目的首開區,原“圖書館”的改造已經完成。設計師從建築曆史與城市情感記憶中吸取靈感,將當代設計美學與複合的現代生活業態注入到這座擁有近70年曆史的圖書館中,使其煥發新生,成為包容展示、商業、辦公、商務、交流等複合功能,與充滿人文生活氣息的新型地標性文化中心。
DUTS Design accepted the invitation of Gemdale in 2019 to carry out the overall renovation design work of the original Nanjing Normal University Zijin Campus. Recently, the renovation of the original “library” has been completed. The designer took inspiration from the architectural history and the emotional memory of the urban life, and injects contemporary design aesthetics and complex modern life formats into this nearly 70-year-old library. The rejuvenated library becomes a new landmark cultural center that contains complex functions such as display, business, office, business, and communication, and is full of humanistic life.
如何保留“圖書館”這座公共文化建築的情感記憶,並使其在當代生活中繼續充滿生命力,成為了設計師考慮的主要問題。在對空間的反複研究與推敲之後,杜茲設計的設計師提煉了原建築中的經典元素和記憶點,保留了建築整體形態與輪廓,並通過現代建築手法,使其呈現愈加開放與現代的姿態。
The retention of the emotional memory of the “library” as a public cultural building and make it continue to be full of vitality in contemporary life has become the main issue considered by the designer. After repeated research and scrutiny of the space, architects of DUTS design refined the classic memory points in the original building, retained its overall form and facade outline, and made it more open and modern through modern architectural methods.
“我們希望這個改造是一種”向史而新”,保留這塊土地的人文與情感記憶,通過現代建築的語言讓它更和諧的與當代生活相融。我們做了兩步:
第一步,“開”,打開空間,讓建築形態更加開放,打通內與外的交流;
第二步,“合”,注入複合業態,融合現代生活,使它變為一個充滿情感,記憶,又有新鮮活力的生活空間。“—DUTS杜茲設計創始人,總建築師鍾淩
“This transformation is “Heritage and Innovation”, we retain the human and emotional memory of this site, while make it more harmoniously integrated with contemporary life through modern architectural language.We did two steps:
The first step is to “open”, open up the space, make the architectural form more open, and open up the communication between inside and outside;
The second step is to “combine”, inject a complex format, integrate modern life, and turn it into a living space full of emotions, memories, and fresh vitality. “—Zhong Ling, founder of DUTS Design and chief architect
開合之間,乾坤自現。珍貴的城市情感記憶被保留下來,以更當代的方式,展望著未來。
Prescribing and compounding have brought new opportunities for old buildings. The precious emotional memories of the city have been preserved, looking forward to the future in a more contemporary way.
開:“圖書館”的開放與新生
Opening: Opening and Rebirth of the “Library”
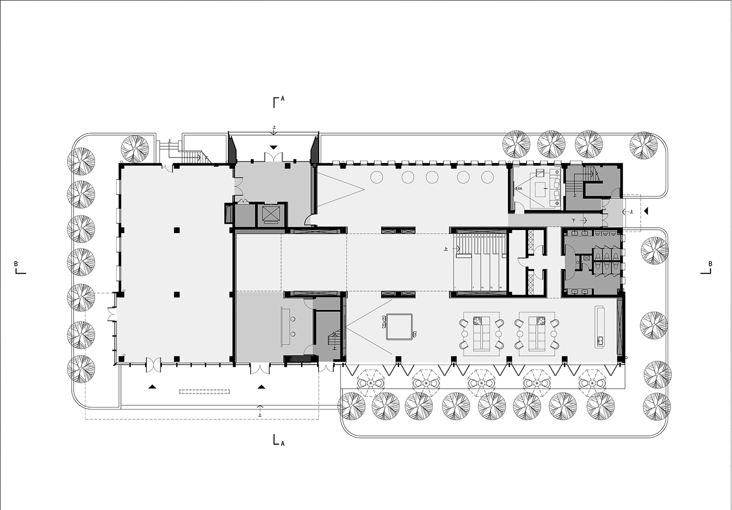
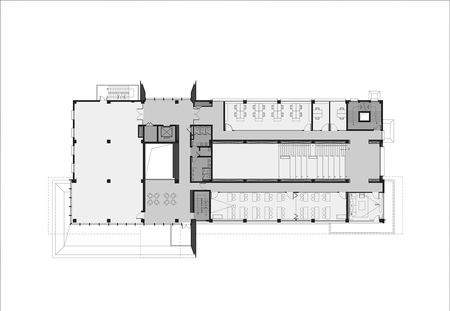
南師大紫金校區的圖書館年代悠久,新的改造在保有原建築風貌基礎上,突破傳統的平麵布局,打造更具多樣性的功能核心,集交通、陽光天井、共享空間於一體。立麵交通核體量明確有力,橫向則通透舒展。
The library on the Zijin campus of Nanjing Normal University has a long history. The new renovation retains the original architectural style, innovatively breaks through the traditional layout, creates a more functional core, and integrates vertical transportation, sunny patios, and shared spaces. The traffic core of the facade is clear and powerful, and the horizontal is transparent and stretched.
設計拆解 Design elaboration
設計立意:開放的“櫥窗” Design Concept: Open “Showcase”
原有的圖書館功能單一,保護書籍,保持安靜的讀書環境使建築空間相對封閉。設計師將原有的交通空間打造成一個高24米的公共櫥窗,突出其文化的地標性。愈加開放與共享,也正體現了現代城市公共文化空間的發展方向。
The original library has a single function. Protect books and maintain a quiet reading environment to make the building space relatively closed. The designer transformed the original traffic space into a 24m high public showcase, highlighting its cultural landmark. Increasing openness and sharing also reflect the development direction of modern urban public cultural space.
∇ 改造前
∇ 改造後
引入“觀山平台”,加強內與外的互動關係,空間內的人們,可以在交流的閑暇通過櫥窗,遙望紫金山,汲取自然之力,找回內心的寧靜。
The designer introduced “mountain viewing platforms” to the building to strengthen the interactive relationship between inside and outside. People in the space can look at the Purple Mountain through the window in the leisure time of communication, absorb the power of nature, and find their inner peace.
平麵與立麵的“開放” “Opening” of floor plan and elevation
建築師將平麵打開,重構原有的交通核,電梯、衛生間、共享空間等巧妙植入,並在核心區打造貫通的天井空間,利用垂直的天井引入自然光線,加深自然與建築,時間與空間之間的互動。
Architects opened up the plan, reconstructed the original traffic core, ingeniously implanted elevators, toilets, shared spaces, etc., and created a perforated patio space in the core area, using vertical patios to introduce natural light, deepening nature and architecture, time and interaction between spaces.
剖麵比較
∇ 改造前
∇ 改造後
立麵造型上保持原本的構圖關係,但將原來封閉的豎向體塊改為通透玻璃,多個公共平台穿插於其中,在此,人們的活動有了展示的舞台,恰似城市窗,而同時又可以憑欄而眺遠處的紫金山美景。曆史、功能、景觀資源在現代的設計手法下形成了完美的融合。
In terms of façade modeling, the original composition relationship is maintained, but the originally closed vertical volume is changed to transparent glass, with multiple public platforms. Here, people’s activities have a stage for display, just like a window to the city, while at the same time they can lean on a railing and overlook the beauty of the purple mountain in the distance. History, function, and landscape resources have formed a perfect fusion under modern design techniques.
“打開”的書屋 The “opened” bookstore
為延續書籍在這片空間中留下的溫暖記憶,設計師將“圖書館”的一層與二層創造成了一個開闊、通透、充滿人文氣息的挑高中庭空間,空間兩側以連續的完整的書牆來界定,書架分隔的線條延續到天花板形成連續的拱形,強化了空間的精神性,端部則通過自然光線的引入,成為空間中自然與人文的一種隱含溝通。
In order to continue the warm memory of the books in this space, the designer merged the first and second floors of the “library” into an open, transparent and humanistic high-rise atrium space, with continuous integrity on both sides of the space To define the book wall, the dividing lines of the bookshelves continue to the ceiling to form a continuous arch, which strengthens the spirituality of the space. At the end, the introduction of natural light becomes an implicit communication between nature and humanity in the space.
合:注入複合業態,融合現代生活
Combination: Inject a complex business format and integrate with modern life
多元豐富的生活方式為空間帶來新的活力。保留原本圖書館的人文氣息,設計師為其注入現代城市生活的複合業態,創新性的將開放咖啡廳、共享辦公室、餐飲美食、互聯網、生態科技等以當代手法注入“圖書館”,成為城市年輕人的社區生活圈。
A diverse and rich lifestyle brings new vitality to the space. Retaining the humanistic atmosphere of the original library, the architect infused it with more complex business scenes of modern urban life, innovatively injecting open cafes, shared offices, dining and food, internet, and ecological technology into the “library” with contemporary methods. “, becoming a community life circle for young urban people.
“我們想塑造的是一種“可成長”的人文空間,它承載了校園的記憶,也正在記錄這當代都市年輕人的奮鬥曆程。不變的是,所有還保留在我們心裏與空間中的人文情懷。”
“What we want to create is a kind of “Growth-able” culture space, which carries the memories of the campus and is also recording the growth of young people in this contemporary city. What remains unchanged is the humanistic feeling in our hearts, preserved in the space.”
“奇點書集”的入駐成為了“圖書館”中最具情感記憶的感性空間, 也為圖書館帶來更多與生活美學,藝術,社交互動的可能。尋一本書,坐在台階上慢慢品讀,或是聆聽一場人文講座,參觀一場藝術展覽。新型的複合型城市文化空間,它以更加現代包容的方式,在開放性,公益性的基礎上,為城市帶來更多活力。
“Singularity Book store” has become the most emotional space in the “library”, and it also brings more possibilities for the library to interact with life aesthetics, art, and social interaction. Find a book, sit on the steps and read it slowly, or listen to a lecture or visit an art exhibition. A new type of urban cultural space, which brings more vitality to the city on the basis of openness and public welfare in a more modern and inclusive way.
保留校園的文化氣息,整幢建築的樓層信息采用了獨具創意的“鉛筆牆”進行呈現,108,000支筆的排序組合,帶來令人衝擊的視覺效果,同時也融入了電影,藝術相關的文化信息。
Preserving the cultural atmosphere of the campus, the floor information of the entire building is presented with a unique creative “pencil wall”. The sorting combination of 108,000 pens brings shocking visual effects. It also incorporates movies and art related Cultural information.
WECAFE開放咖啡廳,共享辦公室等現代生活方式業態與空間交錯融合,帶來更多理性的思考。華麗新生後的“圖書館”,成為融合展示、商業、辦公、商務、交流等多功能的新型複合空間,充滿人文與生活氣息的新型地標性文化中心。
WECAFE, shared office and other modern lifestyle formats are combined in the space, bringing more rational thinking. The newly reborn “library” has become a new type of multi-functional complex space and new culture landmark integrating exhibition, business, office, business, event and urban lifestyle.
新的城市發展帶來更多的產業生態升級,也為城市居民帶來更豐富的生活體驗。越來越多的新型複合型業態深入城市肌理,展現出強烈的現代人文關懷和文化體驗,讓城市“文化森林”生長得更為茂盛。
New urban development brings more industrial ecological upgrades, and also brings a richer life experience for residents. More and more new complex types of business have penetrated into the urban fabric, showing strong modern human care and cultural experience, making the urban “cultural forest” more lush.
項目圖紙
∇ 總平圖
∇ 校區改造策略
∇ 圖書館交通核改造對比
∇ 立麵-南
∇ 立麵-北
∇ 立麵-西
∇ 立麵-東
∇ 屋頂
∇ 剖麵
∇ 平麵圖
∇ 項目模型
項目信息
南師大玄武科技園“圖書館”
項目地點:南京市玄武區板倉街78號
項目業主:金地商置
項目麵積:4170平方米(南師大校園整體改造麵積:80000平方米)
完成時間:2020年9月
建築及室內設計團隊:杜茲設計
主持建築師:鍾淩
建築設計:萬濤、胡穎祺、Bruno Rodriguez
室內設計:施望剛、萬佳宇、項哲、周廣建
軟裝設計:施望剛、張爽、張瑰瑰
景觀設計:羅朗景觀
攝影:吳清山
公司網站:www.dutsdesign.com
聯係郵箱:contact@dutsdesign.com
Location: No.78 Ban Cang Road, Nanjing, China
Client: Gemdale Properties and Investment Corporation Limited
Area: 4170sqm( Total Campus: 80000 sqm)
Date of Completion: Sept, 2020
Architect & Interiors studio: DUTS Design
Architect in charge: Ling Zhong
Architects Team: Tao Wan, Yingqi Hu, Bruno Rodriguez
Interiors Team: Michael Shi, Jiayu Wan,Zhe Xiang, Guangjian Zhou
Interior decoration: Michael Shi, Shuang Zhang,Guigui Zhang
Landscape Design:Laurent
Photographs: Qingshan Wu
DUTS Design: http://www.dutsdesign.com/
Contact: contact@dutsdesign.com


























































