全球設計風向感謝來自 MDO木君建築設計 的營銷中心項目案例分享:
英國浪漫主義詩人約翰濟慈曾抱怨說:“牛頓通過把彩虹還原成初始的白色,粉碎了所有關於彩虹的美妙詩句 ”。但人們依舊迷戀色彩帶給人感官的衝擊和獨特魅力。
地鐵萬科·彩虹天空之城,是繼未來天空之城後,杭州地鐵攜手萬科打造的第二座天空之城。該項目位於杭州蕭山地塊,旨在營造一種充滿未來色彩與活力的社區體驗。在這裏空間就像是一段旅程,在這段旅程中的每一個轉折點我們都希望能展現不同的風景。運用色彩與室內室外空間視覺上的轉換去劃分空間不同的功能屬性,我們希望在每一個視線的轉折點都能發現一絲驚喜。
入口接待區設計師試圖用兩個橙色的體塊來劃分出連接室外景觀廊道的中軸線,明亮的色彩與連通室內外的灰色地麵產生強烈的對比,勾起訪客的好奇心,繼續探索這段未知之旅。
極具節奏感的線形吊燈散發出暖色的光暈,化作指引的符號,連接指向空間的核心區域。室內與景觀綠植的相互呼應仿佛漫步於叢林之中。
我們將天井的采光與連接二層空間的樓梯放置於空間核心處,所有不同的空間場景將會圍繞著樓梯向四周發散。運用交接的藝術去解構與重組空間的體塊,不同材質的轉換與空間體塊的穿插將二維的平麵轉換為立體的空間。橙色金屬壓紋板與灰色調水磨石的搭配為空間增添了幾分未來科技感。
中庭挑空處漂浮著巨大的“太空方艙”,方艙內部用鏡麵材質以小化大,創造出夢幻的多重空間。頭頂彩虹的“宇航員”公仔讓空間又多了幾分趣味。
步入下沉的模型空間,我們希望能創造一種自然靜謐,兼具活力的未來場所。多種材料碰撞交織在一起,色調豐富且和諧。懸浮在空間中央的綠色盒子與模型沙盤相互吸引,在這裏將展開人們對未來生活的美好願景。
我們將書吧的理念融入到此空間設計之中,使空間氛圍更為輕鬆。
跨過時間與距離,將從前的記憶,化作曆史,寫進書裏。體驗清新陽光與閱讀的寧靜,感受城市生活美好。卡座和座感舒適且造型較有設計感的單椅,及有細節感的圓桌相搭配,去切合空間的使用性能。
切合業主co-life的定位和理念,向客戶展示未來生活的社區場景氛圍,提供可感知的多元社會生活。
以不同的家具組合方式,營造更多的可能性。水磨石的茶幾搭配由MDOxZHAOYUN趙雲聯合設計的單椅,不同材質的結合以及對細節的考究設計,更好品質感的呈現豐富整個空間的層次感受。
空間的每一處轉折都希望能有漂浮的體塊穿插材料的碰撞去呈現不同的戲劇效果。
牆麵藝術裝置的設計靈感,以光線的折射,反射為線索。凸麵鏡的形式,大小形態不一。鏡麵的不同角度的折射,以及對周邊環境的映射,還有參與者的互動,組成一個藝術且“有趣”的裝置。
通往衛生間的過道未來感十足,利用燈光反射裝置的光影效果去延伸空間的時間感受,給予人們更多的想象空間。
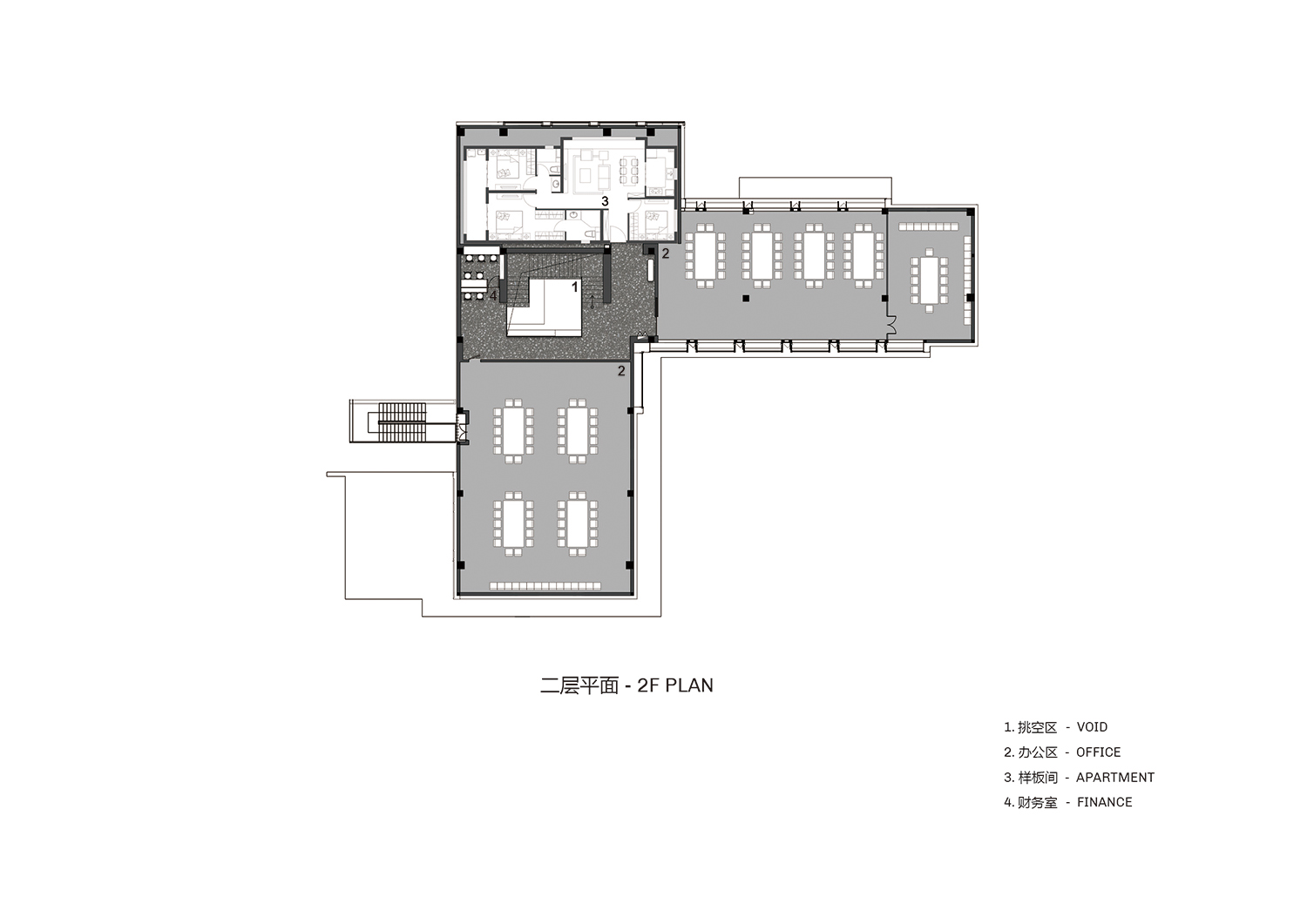
財務室位於二層空間的盡頭,在這裏空間以藍色係的色彩搭配給這段旅程畫上了句號。
項目名稱:地鐵萬科·彩虹天空之城
項目地址:中國杭州
設計麵積:800 m2
室內設計:木君建築設計/MDO
創始人|設計總監:Jaycee Chui、Justin Bridgland
參與設計:唐立、劉雄傑、曹佳雯
軟裝設計:童慧
攝影師:Dirk Weiblen
木君建築設計(MDO)
木君建築設計(MDO),是由徐伩君女士(Jaycee Chui)和橋義先生(Justin Bridgland)於2014年,在上海共同創辦的建築與室內設計事務所,曾獲多項設計大獎。我們非常注重空間的感受,探索空間尺度與比例,通過細節、材料與光影的交錯關係來營造出一段特別的旅程。
MDO主要為客戶提供高端住宅、樣板房、展覽中心、酒店以及辦公空間等設計服務。其中包括中國頂級的開發商。MDO的項目遍布中國大陸、香港、愛丁堡以及中東地區,並獲得國際認可。MDO的工作範圍廣泛及設計種類繁多,其中包括室內、建築、燈光、家具以及平麵設計。這種多角度和多學科的方法對於把控項目的整體性至關重要,是項目成功的關鍵。
由於生活在香港和英國兩個不同的文化背景下,徐伩君女士和橋義先生的設計作品中融入了不同的文化底蘊。他們對設計中的“轉換”概念十分重視,從而將空間與情感結合創造不同的體驗。






































