全球設計風向感謝來自 吾索設計 的商業空間/會所項目案例分享:
短簷苫稻草,微俸封漁租。——元稹《酬樂天東南行》
十二春秋十二澗中式養身會所,以傳統跟現代風格相結合的設計手法,來展現一個更具傳統味道的商業空間。設計師根據該商業空間的自身特性,以其名,十二春秋為切入點,為我們描摹了都市中一抹雅趣的中國風味。
整體空間大多采用了傳統自然的裝飾材料,牆麵以稻草漆為主,結合木飾麵及毛麵花崗岩,用更具自然氣息的肌理來表現空間的層次與對比。
四根石柱上懸立四大神獸,青龍、白虎、朱雀、玄武,屬於古代神話和天文學結合的產物。四獸融入了五行和方位,每到冬春之交的傍晚,蒼龍顯現;春夏之交,朱雀升起;夏秋之交,白虎露頭;秋冬之交,玄武上升,是故處於堂上之陰而知日月之次序,見瓶中之冰而知天下之寒暑。
整個會所以一年十二個月為主旨,十二個包間每個都用不同的傳統文化中代表月份的稱謂取名,走道的裝置牆,也是用了144個銅釘銅鈴。當風穿過走道,叮當的鈴聲恍惚穿越千年。
光是世間萬物表達自身和反映物體相互關係的條件,設計師利用窗戶的幾何構成,讓光成為空間最特別的裝飾。
照明設計上特意定製了2700k照度的暖光源,包間區域用了較小光束角,來營造整體更為舒適放鬆的環境。
軟裝搭配也是選擇了傳統與現代結合的元素,休閑區的兩組沙發,現代與古典羅漢床的對比,現代抽象裝飾畫的搭配,更好的相結合。
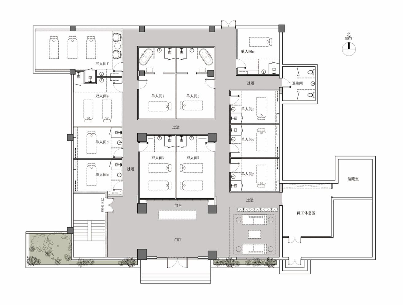
∇ 平麵圖
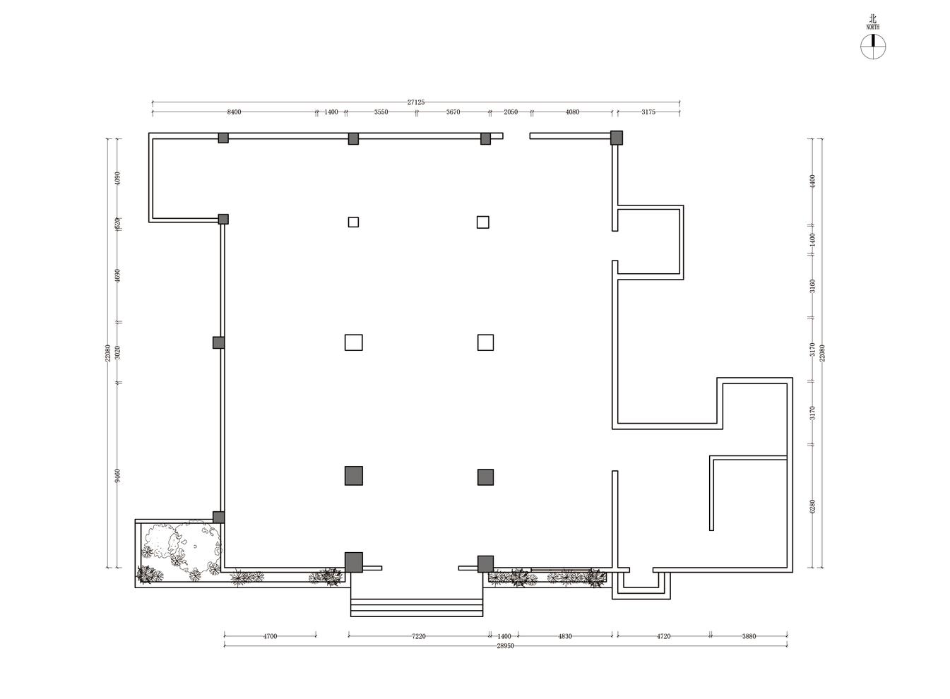
∇ 原始圖
項目信息
項目名稱:十二澗丨spa
項目地址:南京市玄武區黃埔大廈一樓
項目麵積:700平方米
項目設計:吾索設計
主創團隊:石正鈺
攝影機構:INGALLRY 叢林
主要材料:天然大理石 毛麵花崗岩 稻草塗料 木飾麵板
版權聲明:本站所有文章除投稿授權發布外,其他文字內容均為原創,享有著作權保護,未經許可不得以任何形式進行轉載(包括且不限於:媒體、網站、公眾號等)。所有項目照片/設計圖形版權歸原作者所有。本站部分內容源自網絡公開資源或用戶分享,如若侵犯了原作者的合法權益,可聯係我們進行處理。





































