全球設計風向感謝來自 杭州植田建築室內設計工作室(Ray&Emilio studio) 的辦公空間項目案例分享:
∇ 攝影:蔣鎮東
最早提出“中介空間”這一概念,並對其釋義的是阿爾多·凡·艾克(Aldo van Eyck),意在創造出更多富有人性的建築空間,他將中介空間分為狹義和廣義中介空間,其中狹義中介空間更多關注於室內空間與室外空間的過渡融合,而廣義中介空間,則從單體建築的內外空間延伸至整體城市規劃層麵。此後又有日本建築師黑川紀章,提出了 “灰空間”理論。他認為灰空間本質為中介空間中的一類,能夠緩解現代建築和城市原有空間的割裂感,以此減少建築空間性質過於絕對而導致的人類感情上的疏遠。
Aldo van Eyck was the first to propose the concept of “intermediary space”, and it was interpreted by Aldo van Eyck, who intended to create more humane architectural spaces. He divided the intermediary space into a narrow sense and a broad sense. Intermediary space, the narrow intermediary space pays more attention to the transition and integration of indoor space and outdoor space, while the general intermediary space extends from the internal and external space of a single building to the overall urban planning level. After that, Japanese architect Kisho Kurokawa proposed the “gray space” theory. He believes that gray space is essentially a kind of intermediary space, which can alleviate the sense of separation between modern architecture and the original space of the city, thereby reducing the emotional alienation of humans caused by the over-absolute nature of architectural space.
研究院辦公室攝影:蔣鎮東
研究院辦公室內的“中介空間” “Intermediate space” in the office 攝影:蔣鎮東
本項目在設計中起意於對“中介空間”觀念的引入,這個起源於建築與城市設計思想的概念,在博樂工業設計集團委托我們設計重慶消費品設計研究院中,被轉化為本案最重要的方案生成策略。
The project was designed to introduce the concept of “intermediate space” which originated from the concept of architecture and urban design, and was transformed into the most important program-generating strategy of this project of Chongqing Consumer Goods Design and Research Institute commissioned by Bo le Industrial Design Group.
原始內部空間狀況 Internal space condition of the Site © 植田建築工作室
重慶研究院辦公室位於重慶巴南區的巴南體育中心辦公樓的頂層。原始建築空間正如我們常見辦公樓的格局,矩形空間,由建築結構圍合而成的室內,采光幕牆、整體平麵缺少變化。我們希望打破這種常態化辦公空間的格局,創造一種整體性開放格局,同時又確保相對的獨立性空間,以適應辦公功能需求。
The office of Chongqing Institute is located on the top floor of Ba Nan Sports Center, Ba Nan District, Chongqing.The original building space seems like the pattern of our common office buildings: rectangular space, enclosed by the architectural structure of the interior, glass curtain wall, the overall plane lack of change. We hope to break the normal pattern of office space and create an overall open pattern, while ensuring the relative independence space to meet the needs of office functions.
空間生成策略 Design strategy for generating space © 植田建築工作室
植田建築室內設計事務所創辦人方潤武及其合夥人王明皓,在本案室內空間設計中,也非常明顯地,基於二位一貫的內空間建構模式語言的設計思路。在重慶消費品設計研究院設計中,有意植入的一個重要的空間結構:從樓層交通核心筒走出,進入辦公空間之前一個有機多邊形的純白色腔體空間。這個空間在設計中被定義為“中介空間”。
Fang runwu, the founder of Ray&Emilio studio, and Wang Minghao, the partner of Ray&Emilio studio, In the interior space design of this case, it is also very obvious, based on the two consistent interior space construction model language design ideas. In the design of Chongqing Consumer Goods Design and Research Institute, an important spatial structure was deliberately implanted: stepping out of the traffic core tube on the floor, entering an organic polygonal pure white cavity space before entering the office space. This space is defined as “intermediary space” of the office.
辦公區域、中介長廊與外走廊形成的多重維度空間 The multidimensional space of office area and intermediate corridor and outer corridor 攝影:蔣鎮東
中介空間的本質是空間,空間則根據在場者的生活記憶具備一定的功能與特殊的形態。例如中國傳統建築中的廊道空間,在作為中介空間模糊邊界的同時具備各類功能,如休閑娛樂、互動交談、交通、 觀景等。
The essence of the intermediary space is space, which has certain functions and special forms according to the living memory of the present person. For example, corridor space in traditional Chinese buildings has a variety of functions, such as leisure entertainment, interactive conversation, transportation, viewing and so on, while acting as a brokering space.
中介浮島”與“海域”的關係 Relations between Intermediate Island and Sea Area 攝影:蔣鎮東
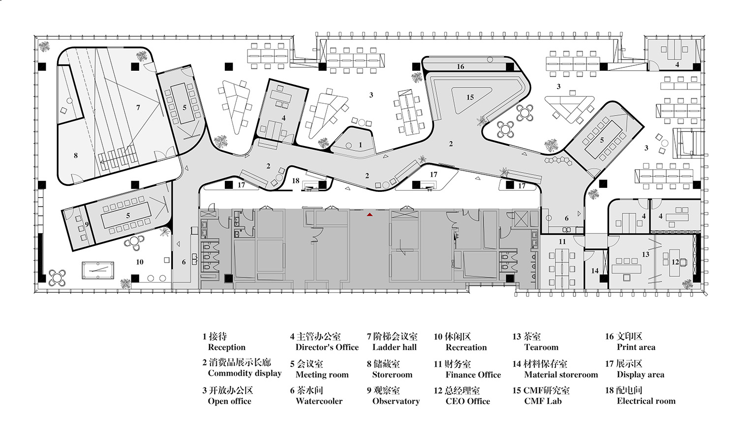
平麵圖 The Layout © 植田建築工作室
在重慶消費品設計研究院,這個空間集合了前台接待空間、設計展示長廊、多個會議室、DMF材料研究室等一係列“浮島”式空間,這些浮島組合成為了一條連續的“展示長廊”。這個被植入的空間,內部材料采用均質的純色空間,在空間體外部則采用建築外牆所用的曲麵鋼板塑造這一裝置體的立麵,並為剩下的“海域”——辦公空間提供頗具意味的室內空間中的室外氛圍。
In Chongqing Consumer Goods Design and Research Institute, this space integrates a series of “floating island”-style spaces such as reception space, design display gallery, multiple meeting rooms, and DMF material research room. These floating islands are combined into a continuous “display / gallery”. In this implanted space, the internal materials are homogeneous and pure white color space, and the curved steel plate which used in the exterior wall of the building is used to shape the facade of the installation body outside the space body, and is the remaining “sea area”-office space Provides an outdoor atmosphere in a meaningful indoor space.
純白色的中介長廊 The pure white intermediary gallery 攝影:蔣鎮東
中介長廊”成為了平麵空間中的正形部分,它集中化了所有的公共功能,將他們視作為一個統一的內部建築體。將所有而“辦公場”則以負性的方式充斥其中。兩者之間的咬合穿插則得到了一個具有褶皺感、層次感、豐富多變的內空間係統,讓原本單一的空間轉為具備完整功能的同時,在空間操作邏輯上有效地轉化為可以被解讀與感知的中介結構。兩者之間交界線則形成了內與外的邊界,同時也是空間不斷轉換、不斷穿越的切入口。
The “intermediate gallery” becomes a positive part of the plane space, which centralizes all public functions and views them as a unified internal building. All but “office” is filled in a negative way. The biting interpolation between the two gives a fold, hierarchical and variable inner space system, which transforms the original single space into complete function, effectively transforms the space operation logically into a intermediate structure that can be interpreted and perceived. The intersection between the two forms the internal and external boundary, and is also the intersection of space to continuously convert and cross.
通過一些列窗口界麵看到遠景的空間片段 The space segment of the vision is seen through a series of windows 攝影:蔣鎮東
純白色的中介長廊 The pure white intermediary gallery 攝影:蔣鎮東
建築軸測圖 Model of architectural axis © 植田建築工作室
中介長廊”所形成的產品展廊,消除了單一的通過屬性,讓空間可以在多個維度流動起來。這些動態空間促進了活動與運動的發生,也促進了空間在多個維度的連接。隨著光線射入角度和人對空間觀察位置的變化,曲麵波紋的牆體的明暗交界也會隨之變化,這便讓內部空間有了時間性,有了動態感,使得人在空間中每一個微小的位置變化都會引起對空間感知的巨大差異,每一個參與到這個空間的個體在自身運動的過程中又可以成為其他觀察者的景觀,使得空間不再是簡單的三維物理空間,而是成為了一係列創造了具有內與外多重維度的動態空間劇場。
The product gallery formed by the “Intermediary Corridor” eliminates a single pass attribute, allowing the space to flow in multiple dimensions. These dynamic spaces promote the occurrence of activities and movements, and also promote the connection of spaces in multiple dimensions. As the angle of light incident and the person’s observation position in the space change, the light-dark junction of the curved curved wall will also change. This gives the internal space a sense of time and dynamics, making people in the space every time. A small change in position will cause a huge difference in perception of space. Each individual participating in this space can become a landscape for other observers in the course of its own movement, making the space no longer a simple three-dimensional physical space, but It has become a series of dynamic space theaters created with multiple dimensions inside and outside.
純白色的中介長廊 攝影:蔣鎮東
多個空間劇場以長卷的方式展開 攝影:蔣鎮東
空間敘事結構分析 © 植田建築工作室
這是一個“同時發生的劇場”,不同的行為在空間的多個維度並置在一起,類似於一種立體主義的拚貼畫,這些行為的並置得到了空間的另外一種狀態,讓空間能夠在最小的物理層級中展現事件繁雜的多樣性,同時連續的空間結構又規範了這繁雜背後的邏輯性。這需要在空間的建構中既具有理性的係統為支撐,同時兼有敘事性的表達。
This is a “simultaneous theater” in which different behaviors are juxtaposed in multiple dimensions of the space, similar to a Cubist collage. The juxtaposition of these behaviors results in another state of the space, allowing the space It can show the complex variety of events in the smallest physical level, while the continuous spatial structure regulates the logic behind the complexity. This requires not only a rational system as the support in the construction of space, but also a narrative expression.
窗口形成的框景,定義了內部的劇場感空間
The frame of the window defines the internal theatre space
攝影:蔣鎮東
內部劇場空間的營造 The frame of the window defines the internal theatre space 攝影:蔣鎮東
這種對“中介空間”的集中定義還帶來了另外一個層麵的好處,我們可以將有限成本集中性的控製,集中成本建造的“長廊”空間集中了例如會議室、CMF研究室等具有表達力的公共空間,而其餘的負形空間則采取最樸素的方式,深色裸頂加上部分射燈,讓工作的位置自然的發生在這些縫隙中。用最小的代價帶來空間最大化的品質,這也是清晰的空間結構邏輯所帶來的。
This centralized definition of “intermediary space” also brings an another benefits. We can control limited costs centrally. The “Intermediary Corridor” space built with centralized costs can be centralized, such as meeting rooms, CMF research rooms, etc The expressive public space, while the rest of the negative space adopts the simplest way, with dark nude tops and some spotlights, so that the working position naturally occurs in these gaps. Bringing the quality of space maximization with the least cost is also brought by the clear spatial structure logic.
多個維度的空間並置 Multiple dimensions is concurrent 攝影:蔣鎮東
通過一些列窗口界麵看到遠景的空間片段 攝影:蔣鎮東
項目信息
項目名稱:重慶消費品研究院辦公室
項目類型:辦公、共享辦公、眾創空間、展示、文化社交
地點:重慶市巴南區華熙LIVE
設計單位:杭州植田建築室內設計工作室(Ray&Emilio studio)
主創建築師:方潤武、王明皓
設計團隊:麻智超、樊江南
材料:白色烤漆波紋鋁板、白色打孔鋁板、乳膠漆
項目委托方:杭州博樂工業設計股份有限公司
業主:重慶消費品工業創新設計研究院
施工:重慶茂宇裝飾有限公司
設計時間:2020.06
完工時間:2021.05
攝影師:蔣鎮東
文字:方潤武、王明皓































