全球設計風向感謝來自 VBD 中置華優設計集團 的售樓處項目案例分享:
自然中的所有物質是發出來的光
山陵、小溪、空氣
以至於我們自己,都是發出的光
這塊皺成一團叫做
物質的東西投射一道影子
而影子屬於光
/ Louis Kahn /
美國建築大師路易斯·康認為,
靜謐是不可度量的事物,
而光明是可度量的事物,
建築則是在靜謐與光明之間的門檻處。
通過精準的光線控製營造出一種,
神秘又有靈性的氛圍,終是獨一無二的。
01 向上生長的力量 The power to grow upwards
從曆史中學習,以現代手法將其延展,致敬建築詩哲路易斯·康。基於項目定位,立意於對未來生活趨勢的研判,以優雅、克製、簡淨的語言貫穿始終,運用現代感的解構手法引入線條光影,實現建築空間與“自然生命”共生狀態的論證,呈現簡潔而賦有情感共鳴的格調。
浮光掠影 Light and shadow
售樓處的外形是一個具有現代感的“玻璃盒子”。大麵積的玻璃幕牆空間開敞通透、極富視覺表現力,在陽光下流露出高級簡潔的建築質感,既增強了室內外空間的連續性,也達到空間與光影的藝術結合。
踏入接待前廳,大幅的留白內,自由的燈光裝置,縱橫的線條,在整個空間顯得層次分明,線條串聯起整個空間,靈動而不失原有的幽靜。伴隨不同時刻的日照變化,空間在光線流轉中由靜及動,形成獨特的韻律節奏。
明媚的陽光映入室內一隅,光影交錯間,陽光將燈飾的影子投射到牆上、地麵上,於通透的空間格局帶入了溫度與光色,打破了空間靜態的呆板。
水紋藝術玻璃裝置在空間內錯落有致的展示,漣漪形態的大理石麵意味著生命能量的延續,疏密有致的格柵屏風光影,在光的重構下,抒敘自然,雕琢生活。
情感秩序 Emotional order
沙盤區整個空間運用直線、曲線有序排列,衍生出空間鮮明的立體形態,營造出大氣舒展的氛圍,自然光影的融入,也令整個空間更加靈動。
沙盤區線條簡潔利落,色彩沉靜,線型勾連的沙盤主燈彎曲連接,在高空中舞動,把生命的張力保持在特定的空間,給人強烈的視覺衝擊力。
洽談區布局擺放規律,以簡單的陣列形式展示優雅與從容,確保人們在交流的時候,有舒服的尺度。金屬、大理石、皮革……不同材質的疊搭,每一次的碰撞與融合,都是新的革命,讓空間頓生別樣的律動之美。
曠達與細膩碰撞交映,舒展奇妙的流動氛圍。
一座盤旋而上的旋轉樓梯,通過曲線與直線的應用,使視線在縱向空間停留延展,融於整個空間之中。在光影的作用下,為洽談區帶來視覺上的靈動,自然的元素正在悄無聲息的蔓延著。
極簡的設色秩序、整齊的瓶樽器物、幹淨的金屬線條、鮮活的自然花藝……水吧區延續了洽談空間的清雅格調。
童話的美好是都市鋼筋水泥森林裏稀缺的珍貴。豐富明媚的色彩與憨態可掬的形態,讓簡單的空間充滿了輕盈飄渺的夢幻樂園。網狀鏤空雲朵,生動賦有活力,呈現空間活潑氛圍,構成一個治愈係的空間童話。
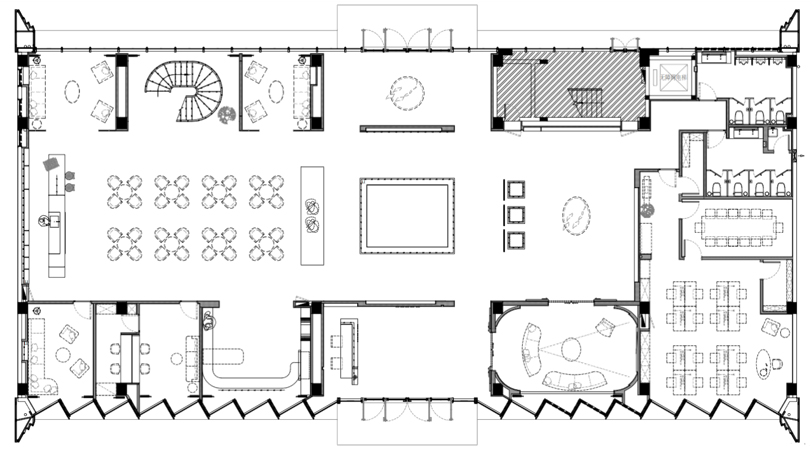
∇ 平麵圖
項目信息
項目名稱:季華 · 正榮府
項目地點:中國 · 佛山
開 發 商:正榮集團
項目類別:售樓處
項目麵積:1300.77㎡
完成時間:2021年7月
甲方設計管理:趙洋、馬青、陳梓筠
設計單位:VBD 中置華優設計集團
設計團隊:第一設計中心
設計團隊人員:金俊男、袁剡建、陶雨露、範蕾
空間攝影:生輝





































