該項目是對傳統背景下的當代回應,它提出了一種非典型的場地響應,提供了一種自由和開放的體驗,這在緊湊的市中心場地中是不常見的。在Fitzroy North一條安靜的傳統街道上,這座新的家庭住宅以雙門工人小屋的抽象輪廓向公眾展示。
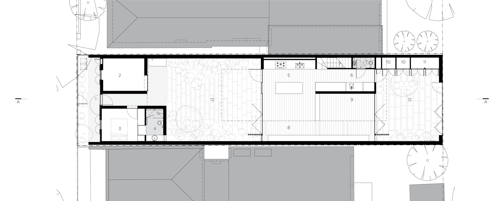
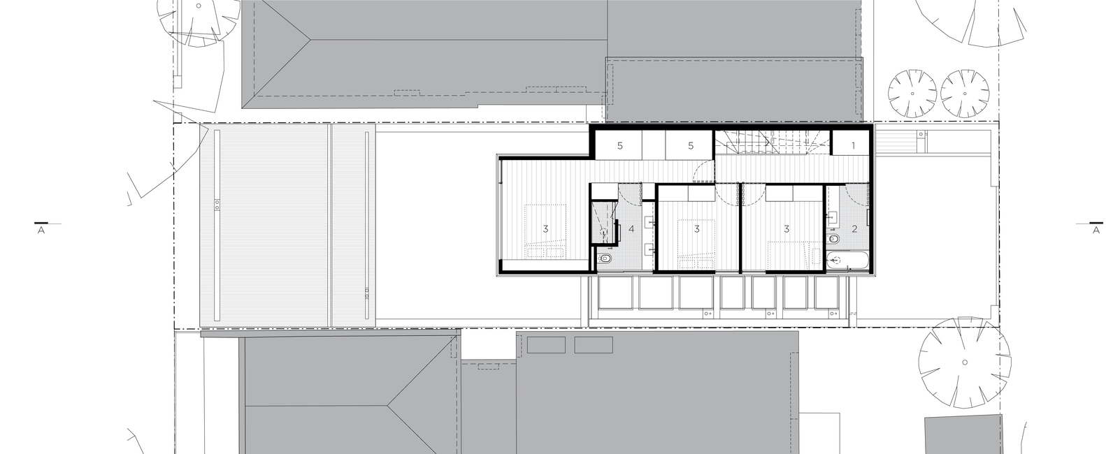
房子被分成兩個不同的部分。臨街的新小屋將陽台和屋頂整合成一個單一的形式,作為對工人小屋的簡化記憶。兩堵雙磚翼牆,參考典型的露台派對牆,包含建築物並支撐低矮的陽台,該陽台與沿著街道的排水溝線基準對齊。木板條掩蓋了前立麵,使小屋的傳統比例以圖形方式表達出來。
入口是一扇不起眼的木板條門,通向一條狹窄而出人意料的外部走廊,該走廊保留了工人小屋的適度比例,並突出了遠處花園的開放性。房子的主要部分與現有的兩層邊界牆對齊,位於兩個花園之間,最大限度地獲得陽光。這個想法摒棄了帶有後花園的住宅的傳統節奏。周邊磚牆與場地接壤,以統一整體圍護結構。水泥板、磚和鍍鋅鋼的實用材料調色板流經住宅,模糊了生活環境的空間邊界。
位於花園中的是廚房、起居室和餐廳空間,由邊界到邊界的玻璃開口定義,允許無限的交叉通風。在整個房子裏,有一個連續的隱藏主題,特別是在門、細木工、排水溝細節和儲水方麵。這使建築變得淩亂,反過來又強化了住在花園裏的想法。與 Eckersley Garden Architecture 的密切合作使這一核心概念得以實現。
版權聲明:本站所有文章除投稿授權發布外,其他文字內容均為原創,享有著作權保護,未經許可不得以任何形式進行轉載(包括且不限於:媒體、網站、公眾號等)。所有項目照片/設計圖形版權歸原作者所有。本站部分內容源自網絡公開資源或用戶分享,如若侵犯了原作者的合法權益,可聯係我們進行處理。












































