【竹海】創研於湖的南邊,是中國竹子主要原產地之一,順應地利【竹海科技】是針對竹業開發,管理,供應,研發,生產,銷售的全球首家“竹”全產業集團。潛心研發 “竹炭板”以優渥的屬性正逐步替代傳統板材,這將是不可回避的“環保革命”。
[FLOWING BAMBOO] was founded in the south of the lake and is one of the main origins of bamboo in China. It conforms to the geographical position. [FLOWING BAMBOO] is the world’s first “bamboo” whole for the development, management, supply, research and development, production and sales of the bamboo industry. Industry group. With great concentration in research and development, “Bamboo Charcoal Board” is gradually replacing traditional boards with excellent properties. This will be an unavoidable “environmental protection revolution”.
【竹海】早於2019年便啟動了“全球計劃”將於全世界各大核心區位建立營運中心。即便是2020年伊始的全球疫情突發亦未影響到他們的布局。特區汕頭作為粵港澳,長台閩兩個超級大區的核心樞紐有著絕佳的區位優勢【竹海】決定落子於此借力粵東輻射東南沿海區域。
[FLOWING BAMBOO] As early as 2019, the “Global Plan” was launched to establish operation centers in major core locations around the world. Even the global outbreak at the beginning of 2020 has not affected their layout. As the core hub of the two super regions of Guangdong, Hong Kong, Macao and Changtai, Shantou, the special zone, has an excellent location advantage [FLOWING BAMBOO] decided to settle here and take advantage of eastern Guangdong to radiate the southeast coastal area.
【GGD好好設計】創始人林彥先生與【竹海】廣東區域負責人溫少歆先生一同在地考察現場時提出:希望是結合空間的特質,去建構一個“去”商業化的商業藝術展示空間,讓設計和藝術去助力銷售。多年的商業設計經曆使林彥變得觸覺靈敏並具備快速捕捉到精準 “用戶畫像” 的能力。
[DOUBLE GOOD DESIGN] Founder Mr. Lin Yan and [FLOWING BAMBOO] Guangdong regional leader Mr. Wen Shaoxin together came up with the site inspection site: The hope is to combine the characteristics of the space to construct a commercial art exhibition that is “de-commercialized” Space, let design and art help sales. Years of commercial design experience has made Lin Yan become tactile and has the ability to quickly capture accurate “user portraits”.
新址位於新津片區,這裏原本是農業區域,或許是因為中心城區的可用麵積日趨緊張,近年來變成各類建材資本紮堆的地方。質樸的環境與新興的建築物形成強有力的衝擊感,在無字句處讀書,無序卻又煥發生機與可能性。
The new site is located in the Xinjin area, which was originally an agricultural area. Perhaps because the available area in the central city has become increasingly scarce, it has become a place where all kinds of building materials capital gather in recent years. The pristine environment and the new buildings form a strong sense of impact. Reading in a place where there is no word and sentence is disorderly but full of vitality and possibility.
場域的前半段,由入口將訪者帶到極端,單一動線的規劃是設計師林彥刻意而為之。設計師改變慣性入口,將大門移動至空間整體最雞肋的位置,將其打造成獨立入口,有意在其中安插各類場景,讓訪者代入其中。立麵大玻璃邀請日光肆意揮灑,任其在天地壁【竹炭板】留下行徑的軌跡,點亮空間材質的肌理,鋪陳出時間的印痕。
In the first half of the site, visitors are taken to extremes by the entrance, and the single line of movement is planned deliberately by designer Lin Yan. The designer changed the inertial entrance, moved the gate to the most tasteless position of the space as a whole, and turned it into an independent entrance, deliberately inserting various scenes in it to allow visitors to enter it. The large façade glass invites daylight to sway freely, allowing it to leave a trail of behavior on the wall [bamboo charcoal board], illuminating the texture of the space material and laying out the imprint of time.
輕鬆的基調,在刻意打造的沙龍場域中蔓延,試想我們可以在此進行不隻是公事上的一切日常活動,而你我皆受邀其中。林彥認為設計的底色是【突破限製】,因此讓兩根方管去撐起一整塊實心大理石,石料在沒有“下地”的日子裏,將承載多個重要“角色”這是【技術與藝術】的結晶,亦是【竹海】對於極致態度的前導語言。
The relaxed tone spreads in the deliberately created salon field. Just imagine that we can carry out all the daily activities here, not just on business, and you and I are invited to it. Lin Yan believes that the background color of the design is to “break the limit”, so let two square pipes to prop up a whole piece of solid marble. The stone will carry multiple important “roles” in the days without “going down to the ground”. This is [Technology] The crystallization of “and art” is also the leading language of [FLOWING BAMBOO] towards the ultimate attitude.
一切的呈現本該是動能,在此刻猶如一個靜默的時空,讓到訪者集中注意力將更有利於產品質感的呈現。用全球唯一【竹炭鋼琴】奏響那些時間裏最動人之處。
Everything is supposed to be kinetic energy. At this moment, it is like a silent time and space. It will be more conducive to the presentation of the product texture to allow visitors to focus. Use the world’s only [Bamboo Charcoal Piano] to play the most moving parts of those times.
多功能長台的設計靈感來源於【達·芬奇】的《維特魯威人》以比例最精準的男性為藍本,因此後世也常以“完美比例”來形容當中的男性。
The design of the multifunctional long platform is inspired by [Da Vinci]’s “Vitruvian Man” based on the most accurate proportion of men, so later generations will often use “perfect proportion” to describe the men among them.
麵層展示是【竹海】的立館初心,【GGD好好設計】選用多項相異媒材,以直麵且多元化的手法鋪陳在空間,目的是希望訪客參與會議時,去身臨其境,去觸摸,去感受溫度。而不僅侷限在空泛的想象或大同的營銷話術之中,讓產品自己“發聲”。
The surface display is the original intention of [FLOWING BAMBOO]. [DOUBLE GOOD DESIGN] chooses a number of different media and spreads it in the space in a direct and diversified manner. The purpose is to hope that visitors will be there when they participate in the meeting. , To touch, to feel the temperature. And not only limited to vague imagination or Datong’s marketing words, let the product “voice” by itself.
複合麵材的呈現,讓竹炭板不再是單一的炭黑。萬能收口解決方案,增添視覺的分割韻律,形塑整體空間的美學,強調原料的環保屬性。自入門初始,這便是一場單一材料運用的試驗過程。
The appearance of the composite surface material makes the bamboo charcoal board no longer a single carbon black. The universal closing solution adds visual segmentation rhythm, shapes the aesthetics of the overall space, and emphasizes the environmental protection properties of raw materials. Since the beginning of the entry, this has been an experimental process of using a single material.
林彥認為空間的設計並不需遷就某個特定功能,材質的運用更應隨心所欲,創造出無限的使用可能,以突顯材質優越的兼容性。
Lin Yan believes that the design of space does not need to accommodate a specific function, and the use of materials should be arbitrary, creating unlimited possibilities to highlight the superior compatibility of materials.
寧可食無肉,不可居無竹。無肉令人瘦,無竹令人俗。————蘇軾《於潛僧綠筠軒》
竹子自古就是自然饋贈人類的建材,但因為技術原因,天然的竹子其耐候性一般,鮮有百年的竹建築留存於世。【竹海】將毛竹經過破碎再進行高溫炭化,加工成活性炭粉壓製成型。通過技術手段改變了竹子的物理形態,涅槃後的竹炭板低醛,高硬,防潮,淨化,滿足了現代人的“居竹”需求。
Bamboo has been a natural gift of building materials to humans since ancient times. However, due to technical reasons, natural bamboo is generally weather-resistant, and few hundred-year-old bamboo buildings remain in the world. 【FLOWING BAMBOO】The moso bamboo is crushed and carbonized at high temperature, then processed into activated carbon powder and pressed into shape. The physical form of bamboo has been changed through technical means. The bamboo charcoal board after Nirvana has low aldehyde, high hardness, moisture resistance, purification, and meets the needs of modern people for living in bamboo.
擺脫薄弱或無關的預設,以一種新的認識方式擁抱不確定性。迂回與虛掩。我們智造“未知”讓來訪者在無意識內跌入我們預設好的參觀流程,猶如子彈上膛一般,根本停不下來。
Get rid of weak or irrelevant presuppositions and embrace uncertainty in a new way of understanding. Roundabout and concealed. We intelligently create the “unknown” to make visitors fall into our preset visit process unconsciously, just like a bullet being loaded, and can’t stop at all.
被【竹炭板】包裹起來的洽談空間,遁入蟲洞般的空間折疊,猶如愛麗絲迷失仙境,縱橫交錯模糊了邊界,迷失了尺度感,在白日裏“秉燭夜談”,與“互聯網”爭奪用戶注意力是實體經濟刻不容緩的思考。
The negotiation space wrapped in [Bamboo Charcoal Board], folds into the wormhole-like space, like Alice lost in the wonderland, crisscrossing and blurring the boundary, losing the sense of scale, “talking with candles at night” in the day, and “Internet “Competing for user attention is an urgent consideration for the real economy.
優異的材質亦需配備成熟的整體解決方案,產品研發部執著於各類棘手的收口解決方案與款式迭代,為每一份委托保駕護航。
Excellent materials also need to be equipped with mature overall solutions. The product development department is obsessed with all kinds of tricky closing solutions and style iterations, escorting every commission.
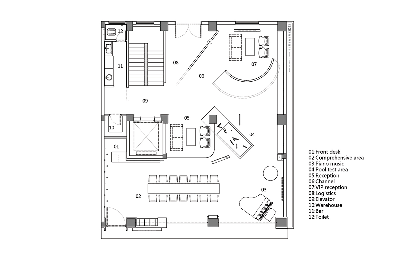
設計師林彥關注的是潛藏在背後的邏輯,起承轉合、開合圍敞。空間是容器,展廳容的是產品與人,空間的始終歸於一點,兩者之間由無數隱匿的副線貫穿。製造隨機停留的可能,使訪者保留更多時間與體力,對品牌做更深入的品讀。
Designer Lin Yan pays attention to the logic hidden behind it, starting, inheriting, turning, opening, closing and enclosing. Space is a container, and the exhibition hall contains products and people. The space always belongs to one point, and there are countless hidden secondary lines between the two. Create the possibility of random stays, allowing visitors to retain more time and energy, and to read more deeply about the brand.
圍繞選材間為回形的中心,空間順時針將功能區域分為各類實例場景,通過動線的推敲,合理地分布並彼此交錯相融。經由視覺的元素與空間語彙連接,潛移默化地促成人們在其中的行為,增強空間故事線索的串聯,猶如打開潘多拉的魔盒,材質展示板背後對應的應用場景,增強現實身臨其境。
Around the center of the selection room as a circle, the space clockwise divides the functional area into various instance scenes, which are rationally distributed and blended with each other through the scrutiny of moving lines. Through the connection of visual elements and spatial vocabulary, it subtly promotes people’s behavior in it, and enhances the series of spatial story clues, just like opening a Pandora’s box, the corresponding application scene behind the material display board, and augmented reality immersive.
精致趣味的場景是研究上大量的投入和近乎較真的細節執行,設計上從各個機能關聯的推演得出最優的空間細分尺度,使【竹海】以一種獨有的設計語境,完美訴說有關結構、材料和空間之間的品牌故事。不單是一個品牌展廳,這空間更是一本關於【竹炭板】的《應用指導手冊》。
The exquisite and interesting scene is a large amount of investment in research and almost more detailed execution. In the design, the optimal spatial subdivision scale is derived from the deduction of various functions, so that [FLOWING BAMBOO] uses a unique design context. It perfectly tells the brand story between structure, material and space. Not only a brand exhibition hall, this space is also an “application guidebook” on [Bamboo Charcoal Board]
「好好設計」是極富創意思維,追求人文氣息的精品型設計團隊。作品涵蓋各類業態,多元化的經驗積累與探索,夯實的理論與實踐體係,尤為擅長捕捉項目優勢,突破認知局限。
我們主張理性科學的設計方法,講究設計策略,善於解決問題,注重塑造作品氣質。
賦予每個項目鮮明的個性與長盛的生命力,配合數字化分析工具和科學的設計方法,高效創作富有前瞻性的「好好設計」。
“Good Design” is a boutique design team with creative thinking and a humanistic atmosphere. The works cover all kinds of formats, diversified experience accumulation and exploration, and a solid theoretical and practical system, especially good at capturing project advantages and breaking through cognitive limitations.
We advocate rational scientific design methods, pay attention to design strategies, be good at solving problems, and pay attention to shaping the temperament of works.
Give each project a distinct personality and longevity, and cooperate with digital analysis tools and scientific design methods to create forward-looking “good design.”
項目名稱:竹海
Project name:FLOWING BAMBOO
設計方:好好設計
Design:DOUBLE GOOD DESIGN
項目設計&完成年份:2020年8月(啟動設計)2021年3月(項目竣工)
Design year & Completion Year:August 2020 (start design) March 2021 (project completion)
主創及設計團隊:林彥&丹儀
Leader designer & Team:LinYan & DanYi
特別顧問:竹海廣東運營團隊 溫少歆先生
Special adviser:【FLOWING BAMBOO】Guangdong operation team Mr. Wen Shaoxin
項目地址:中國/廣東省/汕頭市/龍湖區/下九合/金英路1號
Project location:China/Guangdong Province/Shantou City/Longhu District/Xiajiuhe/Jinying Road No.1
建築麵積Gross Built Area (square meters):1800M²
合作方:軟裝:好好優選/工程:王增林
Partners:Casa:GOOD SELECT Construction:Wang Zenglin
主要材料:竹炭板(竹海)/大理石/彩鋼板/塗料/線型燈/
Main material: bamboo charcoal board (FLOWING BAMBOO) / marble / color steel plate / paint / linear lamp /
撰文:靈驗







































