位於杭州第一高樓、坐擁都市一線城市景觀的博地中心會所,以“仁山智水,雲端林泉”之理念,於雲端之上,邂逅自然秘境。是“明月鬆間照,清泉石上流”的空靈寂靜;是“偶然值林叟,談笑無還期”的恬淡悠遠。
∇ 杭州博地中心建築外觀
屏蔽喧嚷遠離都市,隻是形式上的隱士,而置身於都市喧囂也能淡然處之,才是精神層麵的真正隱士。博地中心的設計充滿都市理想主義,訴說當代“賢者隱士”對精神層麵以及生活、辦公品質的高度要求。
懸於半空的場所被打造成世外禪境,使得身處其中的人獲得精神與心理上的放鬆。它描述了繁華與靜謐並存的東方哲學,旨在平衡看似矛盾的二者,能身處都市不被喧囂瑣事煩擾,又不違背自然初心,領略清幽雅致。
汲取東方雅致意趣,將溫婉優雅、精致極簡暗藏於內,獨領東方式美學風雅。整個室內空間化繁為簡,摒棄繁瑣與沉悶,將山、石、草、木、流水等平常之物,以自然意象呈現超越物表的意境。
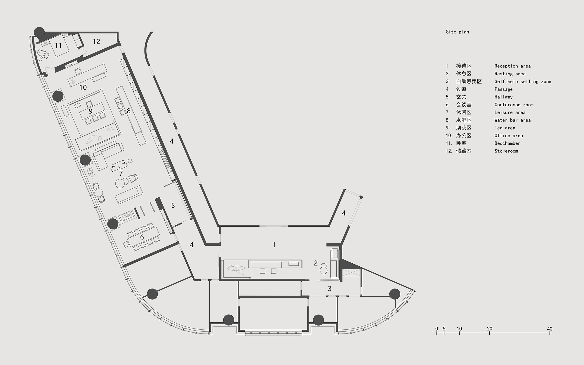
平麵格局上劃分了接待、洽談、茶室、水吧、會議室、休息室等功能區域,滿足不同的體驗需求,每一個空間都充斥東方禪境的清淨與陶然。進入接待空間,內部剔除複雜裝飾回歸淳樸,以自然肌理為主色調,點綴著藤編藝術品,營造出安穩放鬆的氛圍。
洽談區域一麵是開闊的都市叢林景色,一麵是返璞歸真的自然禪境。透過窗可欣賞到天然景色,開闊的視野恰如其分輝映著主人的胸懷與格局,室內樸實雅致的氛圍,又展現出怡然自得的心境,原木與硯台石構造了室內茶亭。
自然肌理石材砌造的吧台搭配純色家具,亮銀色山巒雕塑、水墨藝術裝置、山水屏風,以及青鬆盆景的點綴,既似烏托邦的隱喻,又如現代化的鏡像,使整個空間在極簡的古韻中,滲透幾許現代品味。或停留、或遊走、或靜坐,在毫無刻意手法營造的室內空間,處處感知高山流水之雅意。
都市繁華與超然物外奇妙融合,讓二者和諧共處宛如天成。置身其中,一切喧囂雜念,仿若隔絕雲端之外,心,早已回歸最真實的恬淡心境。
∇ 效果圖
∇ 平麵圖
項目信息
項目名稱:博地中心會所
項目地點:中國 浙江 杭州
項目類型:辦公會所
設計麵積:370㎡
硬裝設計:春山秋水設計
軟裝設計:春山秋水設計
軟裝執行:春山秋水設計
主創團隊:韋金晶、韋耀程、張慧超
項目攝影:釋象萬合













































