項目位於上海南外灘板塊的老碼頭園區,老上海經典石庫門建築。
The project is located in the old dock park of the shanghai, Classic Shikumen building in old Shanghai
因項目空間較狹小,但設計師希望大家能在現代極簡的框架內體驗到中式獨有的空間節奏感,整體空間框架以一層經樓梯進入二層公共空間,再進小空間的‘縮縮放再縮’的節奏而演變過來的。摒棄了繁瑣和裝飾。
Due to the narrow space of the project, the designer hopes that everyone can experience the unique sense of space rhythm of Chinese style in the modern minimalist frame. The overall space framework is evolved by the rhythm of “zooming and zooming” from the first floor to the public space on second floor through the stairway, and then into the small space to get rid of triviality and adornment.
以灰白為主色,再結合紅銅與原木,使整個空間會更溫柔而又靜謐。每部分顏色自然過渡,協調統一,降低了對人們的視覺刺激。一層空間部分區域,提煉一個純白色的獨立吧台構建體,白色給人一種專業性以及可以使茶葉色澤度最原始的表達出來,空間更有趣味性。
Combining red copper and log with off-white as the dominant tone makes whole space more tender and quieter. Each part of the natural color transition, harmony and unity reduces the visual stimulation of people. In part of the space on the first floor, a pure white independent bar structure is refined. White gives people a kind of professionalism and make tea degrees express the original color and space more entertaining.
灰白、極簡的空間與厚重、滄桑、灰暗的舊物件形成氣質上的反差,新的更新、老的更老,拉開時間上的層疊。
Off-white, minimal space and massiness, vicissitude, gloomy old things form a contrast in temperament, which makes the new newer, the old older and stretches the cascades of time.
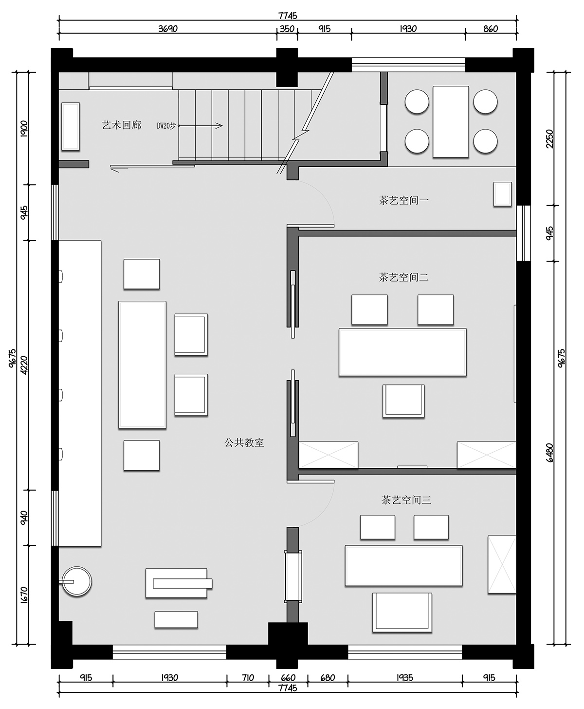
二樓的空間設計理念主要是參考中式特有的庭院、中堂、廂房為基礎理念進行空間演變。
The space design concept of the second floor mainly refers to the unique Chinese courtyard, atrium and wing as the basis of the concept of space evolution.
三間茶藝空間的風格也略有不同,和式、藏式、現代,也是結合消費群體的習慣及歸屬感來進行了積極的融合,增強體驗感。
The styles of the three tea art Spaces are also slightly different. It includes kimono, Tibetan and modern. They are also combined with the habits and sense of belonging of consumer groups to carry out positive integration and enhance the sense of experience.
整個空間使用大量框景,將遠處的立麵造型選擇性的取景出來與近處的立麵造型相結合,使整個空間具有延展性。
The whole space uses a large number of enframed scenery which combines the distanced and the close façade, so that the whole space has the ductility.
∇ 一層平麵布置圖
∇ 二層平麵布置圖
∇ 剖立麵
項目信息
項目名稱:地山公社
設計時間:2019.6
竣工時間:2019.10
項目麵積:150平方
項目地點: 上海市外灘老碼頭
設計公司:上海哲本建築設計事務所
全案設計:鄭哲
參與設計:Liz(李霽嫻)袁超 劉洋
後期攝影: Archtric Image
整體撰文:鄭哲
Project Name: Dishan Commune
Design time: 2019.6
Completion time: 2019.10Project area: 150 square meters
Project location: Shanghai Bund Old Wharf
Design company: Shanghai Z-STUDIO
Design of the whole case: ZERIC
Participated in the design: Liz, Yuan Chao, Liu Yang
Post-photograph: Archtric Image
Overall writing: ZERIC


































