建築是關於幸福的,人們想在一個空間裏感覺良好
建築提供庇護,同時提供舒適 ——— 紮哈·哈迪德
如果把“退休”形容為一種心境,那麼“莫道桑榆晚,為霞尚滿天。”或許可為最佳。你理想中的退休生活是怎樣的?是約上三五好友一起環遊世界,還是養花逗鳥,續寫閑情雅致?
What is your ideal retirement life? Returning to the truth of life and feeling the present is the most worthwhile thing.
退休後,最好的狀態,是心安,本案業主,便是打算放慢腳步,細心體會生活的退休夫妻。拋開過往忙碌的工作狀態,男女主人選擇沉浸式體驗慢生活,他們將大部分的時間放在家裏,而改善居住環境便成了首選。
After retirement, the best state is peace of mind. The owners are retired couples. They choose to return to the real life, and improving the living environment has become the first choice.
設計演變過程
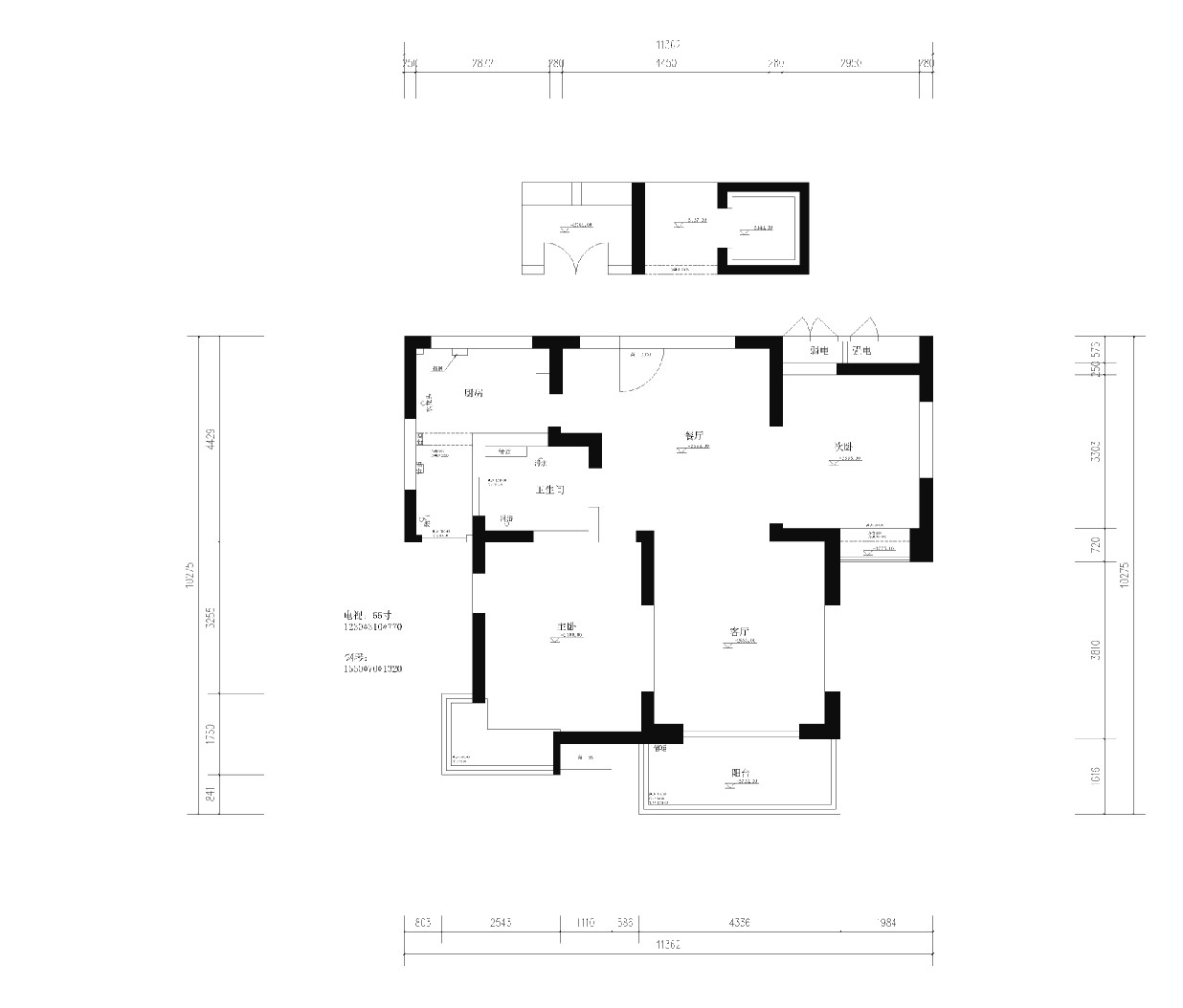
∇ 原始平麵圖
∇ 彩平圖
∇ 頂視透視 動線分析圖
∇ 設計前
設計理念
以“宜居便捷”為圓心,“舒適複古”為半徑畫圓
退休生活的居住環境應該是怎樣的?設計師第一時間冒出的關鍵詞是“宜居”,為滿足業主大部分時間居家活動的生活軌跡,以“宜居便捷”為圓心,“舒適複古”為半徑畫圓設計,在此基礎上,設計師延伸了“可活動範圍廣”“采光足”“互動性強”等充分必要條件。
What should the living environment of retirement be like? , “Draw a circle” design with “Livable and Convenient” as the center and “Comfortable Retro” as the radius.
原戶型存在“狹小局促”、“采光不足”、“布局混亂”等現象,在與業主多次深度溝通後,設計師最終選擇了全局改造。
There are phenomena such as “small and cramped”, “inadequate daylighting”, and “disorderly layout” in the original house.
∇ 概念模型推敲
∇ SU設計效果圖
所有空間重新規劃布局,設計師將原先的厚重部分打通,盡可能的增加可活動區域,原衛生間處調整為女主人一直想要的中西雙文化元素融合的互動式廚房,主臥則放置在了原先的次臥位置,而空間采光最好的C位(原主臥空間)則留給了男女主人最常待的客餐廳。
The space was re-planned and the layout was re-planned, the designer opened up the original heavy parts, increased the movable area, and reserved the C with the best lighting for the guest restaurant.
原廚餐廳改成了入戶玄關和小儲物間,隱藏式櫃體增加了收納空間。牆,門,踢腳線的建築元素融為一體,相互兼容,嵌入式踢腳線與隱形門的極簡設計,讓空間規整精致,也有了延伸的感覺。
The original kitchen restaurant has been changed into an entrance hall and a small storage room.
區別於傳統頂麵刷白的做法,頂麵和牆麵統一奶白色,搭配法式線條,再融入複古黃銅元素,這是一個充滿質感的溫柔空間。
The top and wall surfaces are uniformly creamy white, with French lines and retro brass elements.
考慮到主人會經常邀請親朋好友至家中,客餐廳占據著整個空間的C位,室內外自然光緊密連接。
The guest restaurant occupies the C position of the entire space.
奶白色的主色調,賦予了空間溫暖柔和的氣息,藍綠色的點綴,為空間添光加彩,更顯恬靜自然。
The main color of creamy white and the embellishment of blue and green give the space a warm and soft atmosphere.
藍綠色背景牆是餐廳空間的亮點之一,其所帶來的雅致,與複古家居的融合,整個空間是和睦融洽的氛圍。如果說要用一種顏色來代表時間的沉澱,那麼藍綠色恰到好處。
The blue-green background wall is one of the highlights of the restaurant space. With the integration of retro furniture, the whole space is harmonious and harmonious.
打破原先狹小的廚衛格局,新空間創造了兩分離的衛生間和開放式廚房,牆麵地麵台麵選擇的是年輕活力的水磨石,廚餐廳的設計強調空間的連續性,在滿足日常整潔的需求外,加強了互動感。
Breaking the original narrow kitchen and bathroom pattern, creating a three-separated bathroom and an open kitchen, the wall and floor countertops are selected from young and energetic terrazzo.
新的空間滿足了“宜居”所具備的“活動範圍廣”、“采光足”等充分必要條件,如果說人生是一首優美的樂曲,那麼體驗便是不可缺少的音符,千帆過盡後,終將回歸生活本真。
If life is a beautiful piece of music, then experience is an indispensable note. After thousands of sails are over, they will return to the true nature of life.
項目信息
項目地址丨Address:上海靜安
麵積丨Area: 96㎡
設計單位丨Company:上海示覺室內設計事務所
服務方式丨Service:硬裝+軟裝全案設計服務,主材+軟裝代購及落地服務
設計團隊丨Team:尹琳娟 、沈佳瀅
聯係方式 | Contact:19921398746






































