在商業盛行的中國當下,資本的力量滲透各行各業,並大行其道。
大到商業綜合體,小到一店一鋪,都成為其表演場所。
追求奢華鋪張的材料,高大上的視覺感受?
或許我們忘記了經營餐廳的初衷是分享地道美食。
In China, where business is popular, the power of capital permeates all walks of life and is popular.
Large commercial complexes, small shops and shops have become their performance venues.
The pursuit of luxurious and extravagant materials and the visual feeling of height?
Maybe we forget that the original intention of running the restaurant is to share authentic food.
中國西北,黃土高原,黃河孕育中國最早的農耕文明,
傳承了幾千年的精耕細作方式依然存在於這片土地上。
Northwest China, the Loess Plateau and the Yellow River gave birth to China’s earliest agricultural civilization,
The intensive farming method inherited for thousands of years still exists in this land.
牛軛、鋤頭、鐵叉、竹耙、大鎬、草勾子……
Yoke, hoe, iron fork, bamboo rake, pickaxe, grass hook……
陽光沃土賜予當地豐富的食材,
母親為兒女創造了可口的地方美食。
The sunshine and fertile soil give the local rich food materials,
The mother created delicious local food for her children.
西北壯美如畫,大漠孤煙、長河落日……
但究其底色是質樸!
The northwest is picturesque, with lonely smoke in the desert and sunset in the long river
But the background color is simple!
寂寞戈壁、老幹虯枝……,孕育生命的是陽光!
Lonely Gobi, old dry Qiuzhi… What breeds life is sunshine!
∇ 餐廳中區 Restaurant Central
∇ 餐廳右區 Right area of restaurant
∇ 餐廳左區 Left area of restaurant
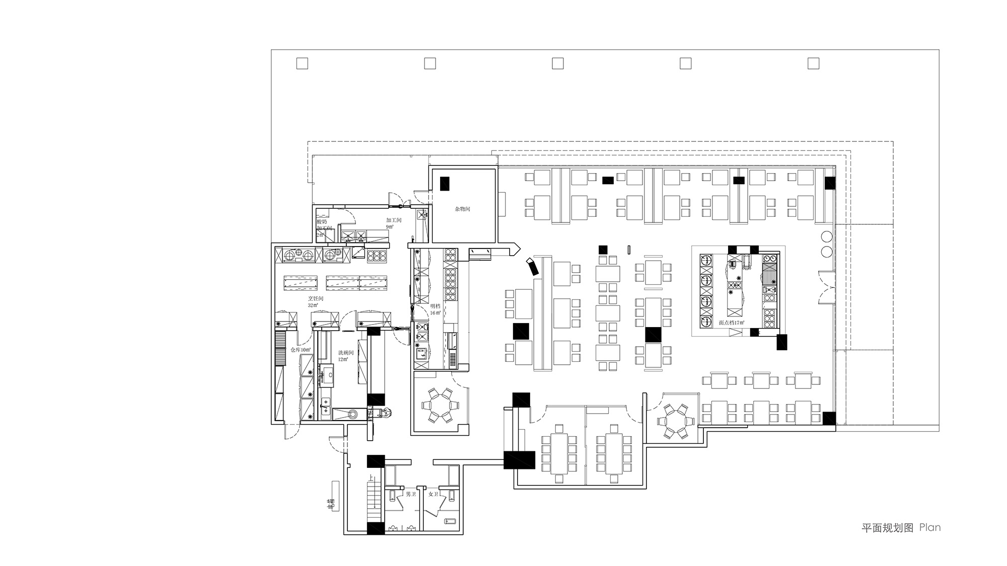
∇ 平麵圖
項目信息
項目名稱:……來自西北 Northwest
項目類型:餐飲 Restaurant
項目地點:廣東省珠海市香洲區吉大園林路41號No. 41, Jida Garden Road, Xiangzhou District, Zhuhai City, Guangdong Province
項目麵積:500㎡
設計單位:珠海借光建築空間設計有限公司 Please space design Co., Ltd
服務內容:品牌設計+空間設計Brand design + space design
設計時間:2021年6月-7月June to July 2021
施工時間:2021年7月-8月July to August 2021
施工單位:見造工程(珠海)有限公司Jianzao Engineering (Zhuhai) Co., Ltd
工程造價:100萬 1 million
項目狀態:運營中In operation
項目甲方:珠海市明天會更好餐飲管理有限公司Zhuhai tomorrow Huihao Catering Management Co., Ltd































