“空間是曆史的產物,是社會存在的媒介和結果。”——亨瑞·列弗斐爾
《史記·平準書》:“眾庶街巷有馬,阡陌之閑成羣,而乘字牝者儐而不得聚會。” 晉 陸機 《君子有所思行》:“廛裏一何盛,街巷紛漠漠。”街巷作為城鎮道路的名稱被沿用至今。在近代以“人”為核心的街巷生活已經逐漸成了特有的居住文化。街巷院落包裹下的生活,充滿了豐富且生動的活動場景和城市日常。此項目位於山西太原,設計以“街巷生活”為切入點,設計圍繞街巷的線性空間展開,將豐富的建築手法延伸到“街巷”之中,進而為空間帶來活力。
“Shi Ji Ping Zhun Shu”: “the common people have horses in the streets and alleys, and when they are free in the paddocks, they become the best men, but they can’t get together.” Jin Luji’s “gentleman has thoughts and deeds”: “where there is prosperity in the chanli, the streets and alleys are numerous and indifferent.” the name of streets and alleys as urban roads has been used to this day. In modern times, the street life with “people” as the core has gradually become a unique residential culture. The life wrapped in streets and courtyards is full of rich and vivid activity scenes and urban daily life. This project is located in Taiyuan, Shanxi Province. The design takes “street life” as the starting point. The design focuses on the linear space of streets and lanes, extends rich architectural techniques to “streets and lanes”, and then brings vitality to the space.
∇ 空間概覽,preview © 劉育麟
∇ 思路演變,train of thought evolution © HOOOLDESIGN
人造場所,場所也造人。街巷是過往市民進行日常交流的場所,隨著城市的不斷發展與擴張,其街巷係統也隨之演變。此項目位於山西,過往的山西多是以街巷,院落、窯洞結合的居住形態為主,會擁有許多共享的院子生活設施以及景觀,在這個過程中會出現很多有溫度的生活場景,以及鄰裏之間的情感交集。
Man made places, places also make people. Streets and alleys are places where citizens used to communicate daily. With the continuous development and expansion of the city, its street and lane system has also evolved. This project is located in Shanxi. In the past, Shanxi was mainly a combination of streets, courtyards and caves. It will have many shared yard living facilities and landscapes. In this process, there will be many warm life scenes and emotional intersection between neighbors.
∇ 軸測圖,axonometric © HOOOLDESIGN
∇ 入口空間,entrance space © 劉育麟
∇ 仿佛無限延伸的空間,space seems infinite © 劉育麟
∇ 各功能分區合理有序的以遞進式鋪展開來,each functional area can be spread out in a reasonable and orderly manner © 劉育麟
∇ 座位區,seating area © 劉育麟
∇ 縫隙,gaps © 劉育麟
∇ 由內而外,inside to outside © 劉育麟
以空間為媒介,將人與街巷相連,營造動態生活場景。設計以街巷指向生活又以生活為源表達產品。勒·柯布西耶曾說過,軸線作為一種指向儀器,對於建築設計來說至關重要:“布局是對軸線進行分級,也是對目的進行分級,對目的進行分類。”而在此設計中,路徑的概念替代了軸線。軸線用線來確定立體和平麵,在垂直結構中定義運動,而軸線將建築看作統一體,允許非方向性結構的存在。用矢量代替了軸線,使用者的軌跡決定了空間的結構,成為了建築的“調整線”。軸線的重點才是其核心,而軸線則表現了一種連續性的體驗,讓整段路程和目的地一樣都豐富起來。
Take space as the medium to connect people with streets and lanes to create a dynamic life scene. The design points to life in the streets and lanes, and expresses products with life as the source. Le Corbusier once said that the axis, as a pointing instrument, is very important for architectural design: “layout is to classify the axis, the purpose and the purpose.” in this design, the concept of path replaces the axis. The axis uses lines to determine the three-dimensional and plane, and defines the movement in the vertical structure, while the axis regards the building as a whole, allowing the existence of non directional structures. The axis is replaced by the vector, and the user’s trajectory determines the spatial structure and becomes the “adjustment line” of the building. The focus of the axis is its core, and the axis shows a continuous experience, enriching the whole journey as well as the destination.
∇ “街巷”空間,“Street” space © 劉育麟
∇ 更加公共的展示空間,more public display space © 劉育麟
∇ 細部,details © 劉育麟
∇ 盒子內部細節,Top box interior details © 劉育麟
∇ 空間分為上下兩層,the space is divided into upper and lower floors © 劉育麟
∇ 通高區域,the double-height area © 劉育麟
設計為了將街巷變得更加立體與豐富,在室內製造了多個建築盒子,通過附加屬性有了更多使用與交互的可能性。此外,還讓多個盒子進行扭轉變化,達到了視覺和動線的可變性。有曲徑通幽的部分也有豁然開朗的部分。空間可上可下可坐可臥,不限於同緯度的體驗方式。空間表皮也同樣運用了很多原始狀態的材質表達空間情緒,希望這個空間隨著使用者和體驗者一同變化一同成長。不同盒子的自由散落,自然構成了街道、景觀和院落,形成了街巷生活,回歸社交。
In order to make the streets more three-dimensional and rich, multiple building boxes are manufactured indoors, which has more possibilities of use and interaction through additional attributes. In addition, it also allows multiple boxes to twist and change, so as to achieve the variability of vision and moving line. There are winding paths and quiet parts, and there are suddenly bright parts. The space can be up and down, sit and lie, not limited to the experience of the same latitude. The space epidermis also uses many materials in the original state to express the space emotion. It is hoped that this space will change and grow with the users and experimenters. The free scattering of different boxes naturally constitutes streets, landscapes and courtyards, forming street life and returning to society.
∇ 木框架玻璃盒子,the glass box with wood © 劉育麟
∇ 設施細節,Details
∇ 樓梯,the staircase © 劉育麟
∇ 底層展廳,the lower showroom © 劉育麟
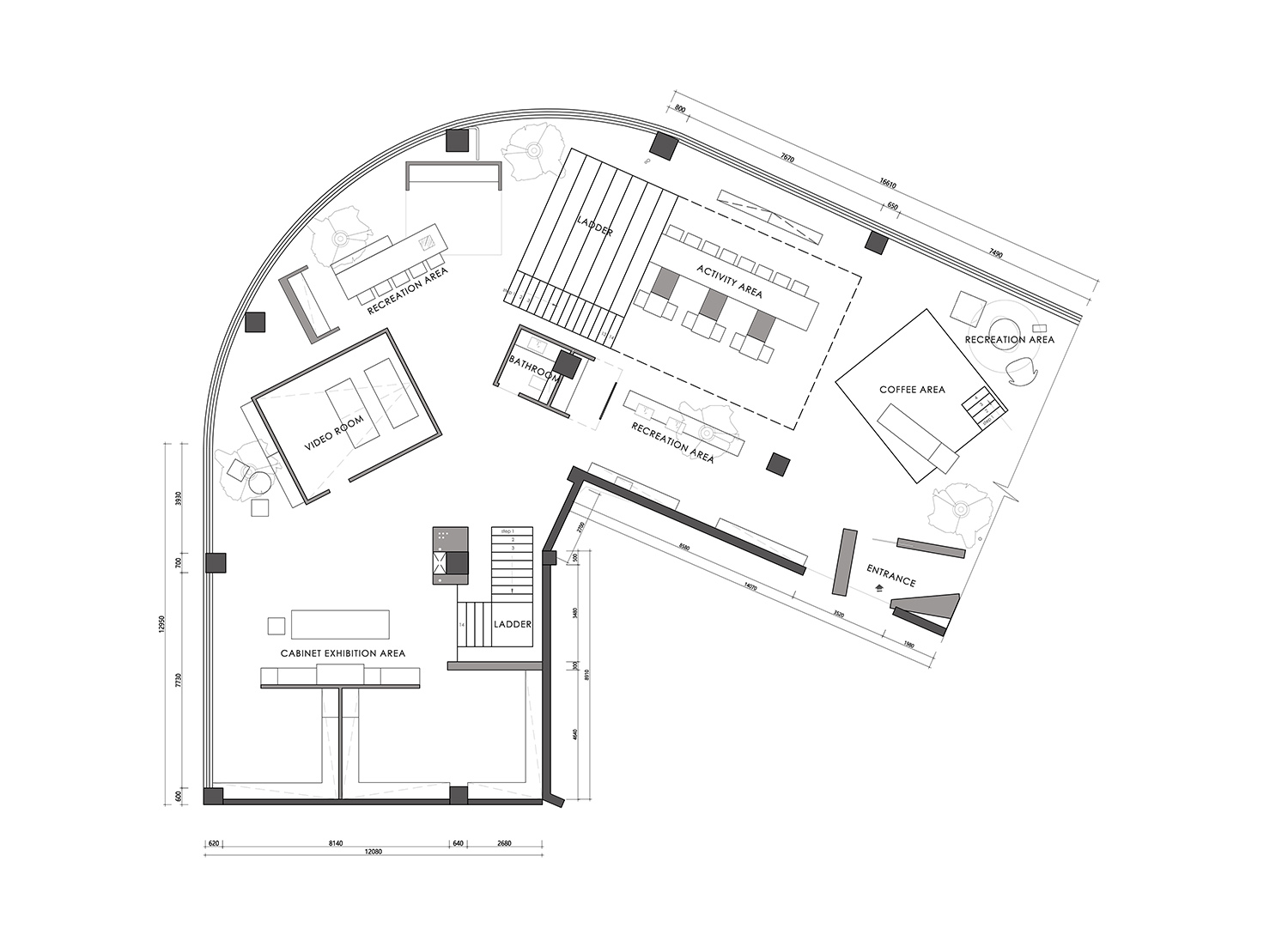
∇ 一層平麵圖,first floor plan © HOOOLDESIGN
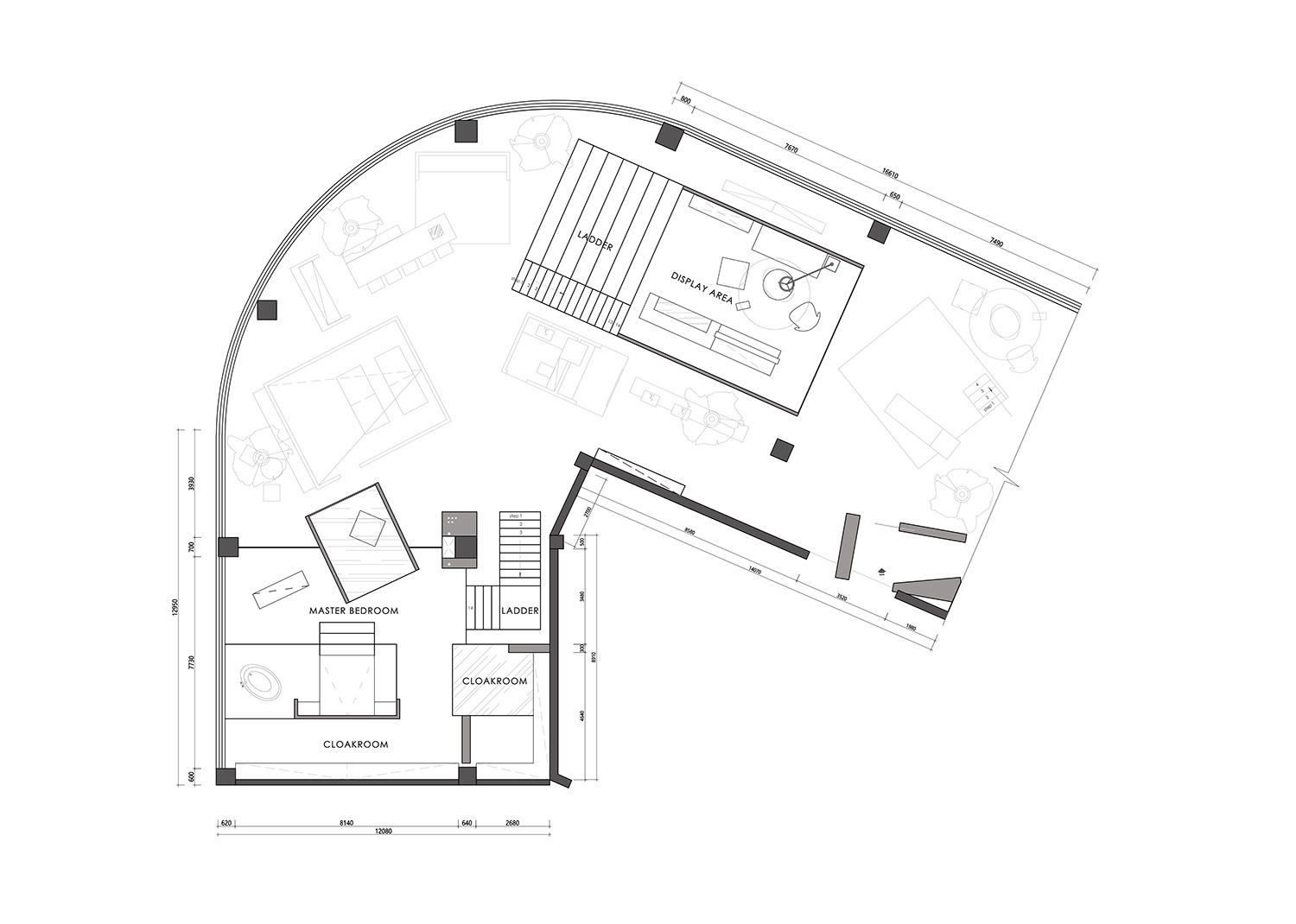
∇ 二層平麵圖,second floor plan © HOOOLDESIGN
項目信息
項目名稱:營造街巷
項目地址:山西太原
設計公司:HOOOLDESIGN事務所
主案設計師:韓磊
輔助設計師:黃德斌、李靜怡
項目麵積: 460平米
設計起止日期:2020.8
完工時間:2021.7
主要材料:水磨石、水泥、木地板、石頭
業主名稱:王耀文、王豔
燈光:三宜想天
材料品牌:Hanrow 漢諾
項目攝影:劉育麟
Project Name: Building Streets and Alleys
Project address: Taiyuan, Shanxi
Design company: HOOOLDESIGN STUDIO
Main designer: Han Lei
Assistant designers: Huang Debin, Li Jingyi
Project area: 460m2
Design start and end date: August 2020
Completion time: 2021.7
Main materials: terrazzo, cement, wood floor, stone
Name of owner: Wang Yaowen, Wang Yan
Lighting: THREE DAY LIGHT
Material brand: Hanrow
Project photographer: Liu Yulin











































