Annnd咖啡廳場地位於深圳桃園村,毗鄰華僑城和塘朗山。位於南山區和福田區之間。因為山,它具有世俗並存的獨特氣質。就像陽光透過樹枝灑在臉上一樣,舒適而放鬆,但又不咄咄逼人。所以我們設定了“抽象森林”的主題,試圖用“森林”來重構一個在社區中自然生長的“桃花源”。減少裝修對環境的負擔,讓店鋪看起來像在這裏種植的。經過二次改造,我們在空間安裝了回收的舊木方、廢棄的大理石和門窗軌道。
成品鋁合金型材用於外牆裝飾和天花板燈軌。我們以相對低成本的方式完成了材料的改造,並統一起來。後廚通過送餐口與前吧台接觸,完成高效送餐。也為未來的產品拓展保留了更多的可能性。
Δ 重建的木材廣場
在除臭拋光的同時,盡量保持木方的原始狀態。它們將粗糙的紋理、磨損的數字、自然的裂縫和有缺陷的時間印記毫無保留地呈現在顧客麵前。木材方格交錯放置在最合適的位置。以“森林”為基調,既可以設置成桌子,也可以嵌在不鏽鋼板中作為展示架,也可以開槽嵌入電線和充電座,原始與現代的碰撞,讓舊物更有趣.
當我們想喚起大家對舊公園招牌的記憶時,卻發現由於電子產品的飛速發展,最古老的8珠LED幾乎消失了。甲方的不懈探索讓我們得以用舊古董進行改裝。我們在水泥和木結構建築中加入了具有“過去”未來感的數字裝置。這也是我們對當前自然和環境的思考。
Δ 複古水磨石
水磨石工藝起源於16世紀的威尼斯。泥瓦匠把豪宅裝修時剩下的大理石邊角料帶回家,隨意鑲嵌在院子裏。經過簡單的處理,他們獲得了意想不到的效果。我們選擇了一種古老的工藝——手工水磨石。我們從石材廠回收了陳舊的廢棄綠色大理石。設計師和甲方在現場自由落體或用手錘砸碎它,自然而隨意地裂成不同的形狀。就像森林茂密的枝葉與溫暖的陽光交織在一起,營造出斑駁的意象,營造出“光影”的庭院。
Δ 軸測圖
Δ 立麵圖
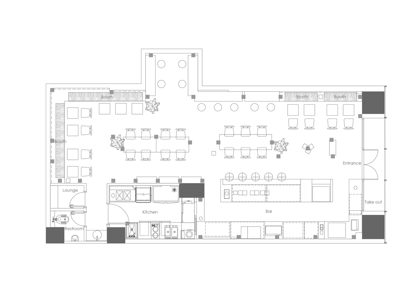
Δ 平麵圖

























