品牌
Fumée,是法語裏麵“煙霧”的意思,是揭開鍋蓋那一刻的熱氣騰騰,象征著村落裏的嫋嫋炊煙,也仿佛山野裏若隱若現的暮靄。從食材生長的自然環境,到琳琅滿目的烹飪技法,煙霧,是許多美食必經的來路。希望透過Fumée這個蘊藏詩意和豐富想象的名字,感知我們精心奉上的知味料理以及空間呈現。
場所
好的空間很重要的一點
是讓我們的身體感知大自然節奏分明的呼吸
我們希望充分保留場所本身帶來的微妙的感官體驗,首先要做的便是將暫時被建築幕牆遮蔽的盡端打開,讓陽光和綠意漫進來。
深空間
依據一棵樹的生長脈絡書寫空間;酒吧包廂是與山石共生的沉靜樹根;長吧台是樹木軀幹的溫潤疏朗;最後的野畔則抵達樹冠的恣意蔥蘢。通過錯位拉長的景深,營造出相互滲透、重疊又頗具反差的深空間;將狹長空間可能帶來的單調乏味反轉成如電影蒙太奇般悠長而值得玩味。
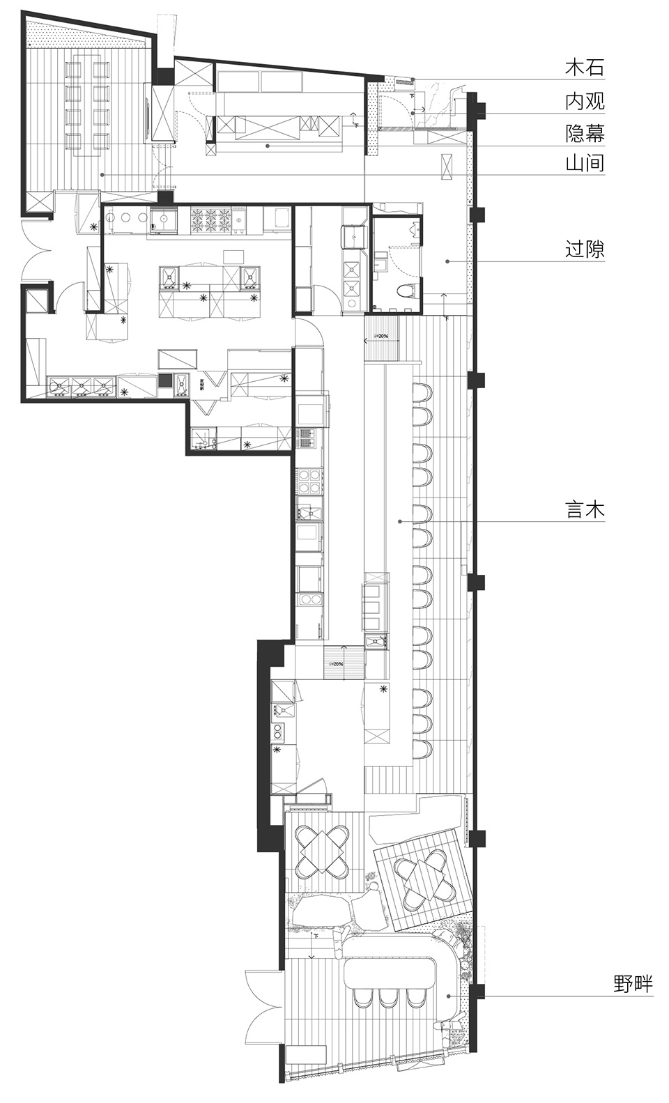
木石
幾何切麵讓似乎亙古不變的自然山石與空間產生一種隱秘的戲劇張力,於老木柱間輕輕扭轉放置的石塊引導人的視線從間隙中往裏延伸,目光所及是掩映於蕨類枝葉的肌理牆麵上鐫刻著故事的開端——Fumee拂鳴。商場是燈火通明的喧囂,掩映在木石之間的門廳是對此的第一重過濾,轉身“吱呀”一聲推開青苔旁輕掩的鑿紋木門,有一種靜謐似水般湧出來,人的感官徹底在幽暗中沉浸下來。
內觀
山間的石板地麵生長到室內,一叢野花在腳邊開放,於樹幹間漫不經心地擱著兩塊銅板,上麵是當季菜單和主廚喜歡的詩文。接待台低調地站著,一束光安靜地照下來,背後是供客人存放衣物的壁櫃,氣氛雖鬆弛,但需要保留下讓客人賓至如歸的鄭重。
隱幕
人物是一種透明的幻想,景物則是在夜靄中的朦朧暗流,兩者消融在一起。侍酒師的臉部在半昏半明中隱去,桌上的燈台一座座亮起,推杯交盞間,我們打撈起自己的靈魂。天花如低垂的夜幕,透出的光剛好夠看清彼此的輪廓,一旁的紙燈散發著古老的溫暖,卻並不打擾你的眼。
山間
試圖描畫的是抽象而不疏離的山間洞穴。推開古樸的大門,首先會注意到的便是懸掛的蠶絲燈,似收集了山間的點點星光,在餐桌上形成一團發光的霧。餐桌的對景是一整麵的山石和一叢形態自然的山木。另一麵牆是以老木拚接的巨幅畫,滑開後是方便賓客宴會使用的電視。
過隙
留足消防寬度之外,甬道特意保留了這份“窄”,為了隻讓一個人走,即使再短,也是一個人的時間。石階而上,腳邊的青苔,似乎也沾上了山野的濕潤空氣。
言木
長吧台是主廚和客人通過美食產生鏈接的地方,根據主廚的身高,我們對吧台進行了內外高差設計,讓主廚的視線與客人坐下時的高度相平,雙方可以更輕鬆自如地交流。長桌保留了楠木原始的狀態,時間的打磨會讓它日漸溫潤,慢慢留存住歲月的痕跡。
野畔
青石板上的四人餐桌是從“戶內”到“戶外”過度的坪庭。垂掛的壁燈適時將美食點亮,同時和周圍草叢間的落地燈一起,用光將其溫柔的包裹;桌與桌之間得以彼此獨立又互相滲透。拾階而下是山石和植物環繞的卡座,擁有一小片的清幽私密;木格柵窗過濾了深圳盛夏的炎熱,卻留下了綠意,四時光影在桌椅間慢慢爬過,一場鄭重其事的野餐如期進行。
同時性/滲透性
我們的感知不再是單向地通往一根線的盡端,而是包含著多種可能,各種景象、情緒、形式和言語“相互滲透”。它敏感地捕捉並同時容納著地板上客人腳步的節奏,容納著主廚擺盤時的專注,容納著等待酒的酒杯的焦渴、容納著被風拂過的植物的自在…
詩意
詩意是我們未曾預料的真實,是對日常和自然的深情凝視。質樸的優雅,自然拿捏的舒適,恰到好處的燈光,讓每一位客人在這裏自得其所,靜心去享受這個感官之夜。知行合一的呈現,身有長物 、心有靈兮。
∇ 分析圖
∇ 平麵圖
項目信息
項目名稱:Fumée
設計方:Ruhaus Studio 如室建築設計事務所
項目設計 & 完成年份:2022
主創及設計團隊:王藝儒、朱丹丹、梁曉東、高帆、蘇玉梅
項目地址:廣東省深圳市深南大道9968號漢京金融中心3樓303-1
建築麵積:250m²
攝影版權:夏同
客戶:Fumée


































