Blue Bottle Coffee藍瓶咖啡澀穀咖啡廳距離繁華的鬧市區僅幾步之遙。設計為位於兩個公園之間的城市休閑場所,內部是Keiji Ashizawa Design工作室設計的第2間藍瓶咖啡店。
穿過 Kitaya 公園,經過在石卷實驗室長椅上享用咖啡的顧客,您首先會遇到圍繞廚房區域的大型弧形瓷磚櫃台。這些帶有特殊火山灰釉的瓷磚是連接內部和外部的關鍵材料,是倫敦材料製造商 Dzek 和阿姆斯特丹設計工作室 Formafantasma 合作開發。整個咖啡廳,7000多塊瓷磚由一位熟練的工匠精心鋪設。
在一樓,Keiji Ashizawa Design團隊放置了不同高度的桌子——一個帶凳子的高櫃台,這樣人們可以看到咖啡師準備咖啡,還有一個較低的桌子,讓人們從裏麵享受公園的樂趣。
上到二樓,會發現各種座位選擇,旨在滿足不同客戶的需求。在空間的一端,可以通過灰色透明窗簾將帶有長椅座位(以秋季橙色紡織品軟墊)的較低樓層區域與主要區域隔開。中心的橢圓形餐桌為周圍提供了休閑、公共的氛圍,而帶有圖書館般燈光的高櫃台桌則允許安靜的團體和單身人士坐在空間的後部。在遠端,一張低矮的瓷磚咖啡桌周圍環繞著舒適的躺椅和沙發。
除了清晨的咖啡/食物菜單,晚上還提供開胃菜和天然葡萄酒。設計師希望來訪者能享受到溫暖的氣氛,就像他們被邀請參觀親密朋友的歡迎之家一樣。
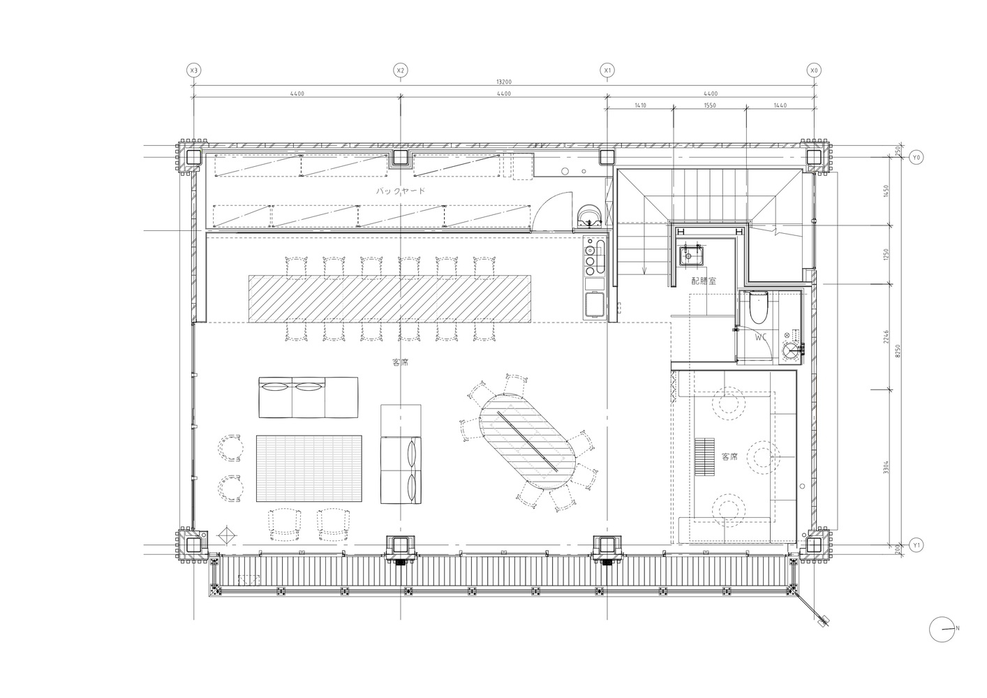
Δ 一層平麵圖
Δ 二層平麵圖
Photographs © Ben Richards
版權聲明:本站所有文章除投稿授權發布外,其他文字內容均為原創,享有著作權保護,未經許可不得以任何形式進行轉載(包括且不限於:媒體、網站、公眾號等)。所有項目照片/設計圖形版權歸原作者所有。本站部分內容源自網絡公開資源或用戶分享,如若侵犯了原作者的合法權益,可聯係我們進行處理。






























