Coldframe是一個小溫床,可以在冰冷中保持溫暖。即使在寒冷中我們也能感受到溫暖和舒適。Sherpa希望通過粗野主義和建築風格之間的對比作為空間語言來傳達一種更鮮明的感覺。
Coldframe以黑色木質材料為基礎,既能擁抱冰冷,又能擁抱溫暖。一進門映入眼簾的牆壁就是經過打磨的混凝土表麵。植物的對比給人一種更舒適、溫柔的感覺。中間看到的不鏽鋼(拋光材質)隔斷起到了動線分離的作用,反射光線並投射到主牆上,更直觀地傳達所要表達的形象。其次,所有引人注目的家具都具有整體的質量感,受到粗野主義建築的影響。
其中,長凳和大桌子通過撞色增強了溫暖感。此外,頂部形狀采用了植物溫室中常用的網格框架,以提供結構統一。
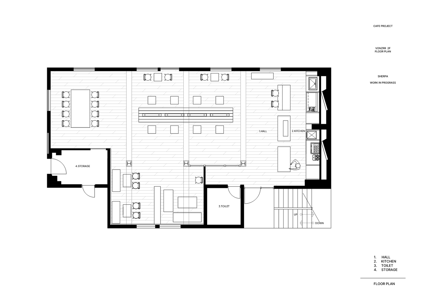
∇ 平麵圖
版權聲明:本站所有文章除投稿授權發布外,其他文字內容均為原創,享有著作權保護,未經許可不得以任何形式進行轉載(包括且不限於:媒體、網站、公眾號等)。所有項目照片/設計圖形版權歸原作者所有。本站部分內容源自網絡公開資源或用戶分享,如若侵犯了原作者的合法權益,可聯係我們進行處理。

























