KKOL STUDIO 旨在通過將客戶體驗劃分為五個不同的空間序列來表達該品牌最重要的特征,例如波士頓甜甜圈的形狀及其餡料。
填充物——
立麵的靈感來自甜甜圈溢出填充的視覺形式。這個想法是創造一種不規則的流線型形式,可以隱喻地表達品牌的特征。為了製作出詳細的造型,首先進行3D建模,然後製作成模具。之後,使用 FRP 進行鑄造工作以生產元件。線條精致的家具擺放在立麵旁邊,從外麵可以看到顧客的用餐體驗。即使沒有將實際的甜甜圈暴露在外麵,它也通過“溢出的填充物”和顧客的飲食體驗的曝光,創造了一個品牌形象可以自然聯想到的空間。
通過精致線條的空間序列——
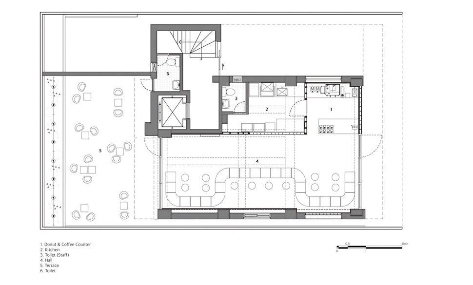
大廳的設計是為了讓顧客一眼就能認出從內部到露台的路徑。模塊化家具被設計成從主入口開始到露台空間盡頭的單線。顧客無論坐在哪裏都能看到的線性家具起到了連接外部和內部空間序列的媒介作用。此外,大膽的色彩被用來強調室內的品牌形象。鮮豔的橙色,該品牌的 BI 顏色,被塗在牆體的表麵。此外,紐約藝術家Joseph Algieri安裝的照明裝置為空間增添了一種讓人聯想到“填充體積”的氛圍。
克服有限空間的多功能櫃台 ——
由於在有限的空間內設計烘焙和櫃台功能(咖啡設備、點餐、取餐)的挑戰,將烤架嵌入櫃台中,以有效地與員工流動。通過采用這種策略,客戶可以專注於作為展示對象的甜甜圈,而不會出現任何不必要的視覺障礙。
戲劇觀點——
作為坐在大廳裏的顧客,烘焙過程和活動感覺就像一件藝術品,或者是一場理論表演。空間的設計使得“烘焙”的表現可以通過玻璃看到。這個元素被放置在從入口到露台的家具的中心,這樣所有坐在大廳裏的顧客都可以享受廚房裏的活動。
家具組成變化——
方形和扇形的模塊化家具可以適應不同的情況。由於 Covid-19 改變了人們的生活方式,空間組合將需要在不同的場景下進行。因此,家具的設計旨在處理不同場合的各種空間布局,例如客戶需求或季節性或傳染病情況下的社交距離。
Δ 平麵圖
Δ 立麵圖

























