我看著大海:身上發生了一些變化。
我不知道是什麼:
一種無邊無際的平靜,一種已抵達的印象。
從那時起,海洋對於我是謙遜、豐富的形而上學。
我不知道如何談論大海。
我隻知道,它突然讓我擺脫了我的所有義務。
每當看著它時,我就變成了一個快樂的溺亡者。
——羅曼·加裏:《童年的許諾》
人們都曾熱烈地描繪過不同的海底世界,誠然,海有著數之不盡的麵貌,在鋼筋混凝土的現代城市生活體係下,回歸到最深處的本質,是人類對海洋的依賴。當我們談論大海,它抽象又具體,帶給我們無限的想象空間。或許大海猶如一種隱喻,它本身就如同建築一般,連接人們情緒的感知。
如同地球用永不停歇的海岸線,在虛與實,真實與想象之間,分割出兩個截然不一樣的世界,我們賦予該項目的空間便是世界的另一端麵貌:一片蔚藍占了空間大部分視覺,猶如大海對人發出的邀請,波濤洶湧的海麵之下蘊含冷靜與克製,恒古不變的平靜。
於是“緩慢與停歇”,成為整個空間想表達的情緒。對於這個地下空間的想象,我們希望他除了能夠承載用餐的過程,也可能帶來更自然的情緒反饋,像是一場視覺創造、地域性和建築空間而呈現出來的感官體驗。更重要的,他於你,是海洋流動的想象之地,生活的自我投射之所。
空間基礎的前身是一個海洋館,位於商場地下負1層,獨立的入口;值得注意的是由於獨立的地下空間,基於結構的需要,澆築的牆體和結構梁柱,形成了一個巨大的,幽暗的地下空洞。
∇ 設計分析圖
經過現場的勘探,我們決議不采取任何措施而試圖改變這個地下空間的溫度和質感,拆除表麵的裝飾構件,並保留兩個巨大的魚缸。我們想塑造地下和深海世界的自然感——神秘、純粹、窒息和平靜,這是一場臆想:讓海橫臥在通常我們無法看見的地方,你分明可以感受它,巨大的存在,在你對麵或四周,包圍並環繞著你,好像處在過去與未來,生與死的邊界中。
環形的吧台位於這個方形空間的中心,是空間中除了魚缸之外,唯一的主要光源,我們希望它成為每個客人對抗深海孤獨感的依傍,微弱且溫暖。從吧台頂部開始向上延伸,並貫穿整個空間頂麵和立麵的雙曲結構,是我們希望遵從自然洞穴最原始的表達,我們僅能看見裸露的部分的岩壁,在光照不及的更深處,是幾乎空洞的黑暗。
我們在頂層再造天窗,自然光得以通過一層入口隱約流瀉到地下而來,給予空間維度與立體感。仰頭一望的澎湃想象在這一刻凝固,對於海洋的無畏於向往在空間彌漫。
裸露的岩石帶來的結構肌理,慢慢推近一點點冷靜、克製,猶如建築的邏輯感般連接了理性的空間秩序與人性神性共存的海洋本質。
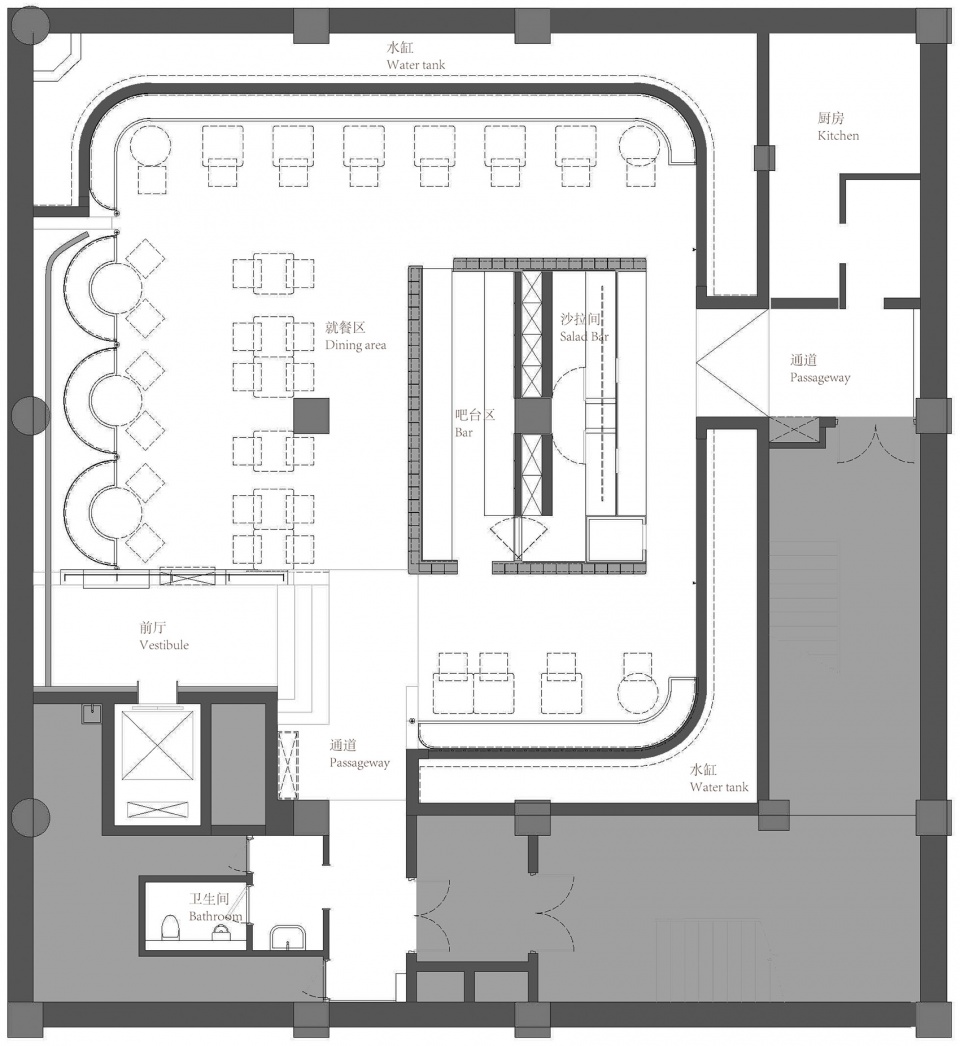
∇ 平麵圖
項目信息
項目名稱:廈門阿羅海反正餐廳
項目地址:廈門海滄
項目麵積:250㎡
設計內容:室內空間設計
設計公司:反正建築事務所
完工時間:2021年
項目攝影:徐義穩
項目文案:阿童
燈光設計:Bobbi 照明
主要材料:塗料-曼晴喜色、瓷磚-降泓空間、木飾麵-梵品





























