項目位於北京市通州區台湖鎮唐大莊村內,環球影城的開放是項目地塊重獲新生的先決條件。委托方在該村選址相近的兩處老房子加以改造運營。因兩所房子同屬一個甲方,設計與施工同時間進行,在此將按照一個項目介紹。我們受到委托後希望此次項目能夠創造出樸素簡約的空間而非簡單堆砌的空間樣式。疫情的肆虐也讓我們重新考慮設計在大環境下應當以什麼樣的方式呈現並且會對生活產生更加積極的意義。
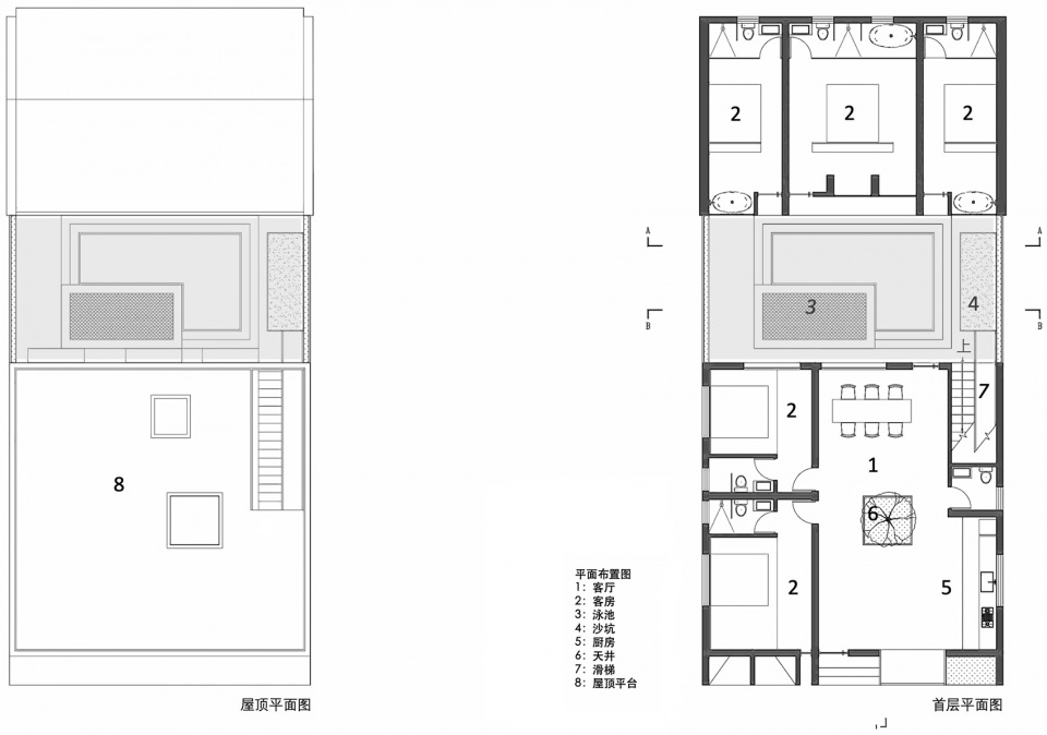
項目本身屬於改造範疇因而不涉及場地本身的複雜性,我們的目的是將委托方的經營功能需求與設計空間進行最大化的銜接。合影小院位於村落東南部,項目基礎為三間坐北朝南的正房與15米乘10米的大院,但是作為民宿項目缺少廚房、餐廳、兒童活動等基礎公共空間,且三間主臥規模較小。委托方期望在此可以滿足一個大家庭及親朋好友的使用,同時又能滿足互不認識保證其私密性的不同租戶使用。
∇ 總平麵圖 & 改造前照片
限製條件則成為了我們本案的設計出發點,讓居者融於自然,讓陽光重塑空間成為設計的核心。沿街建築外立麵以白色雕塑般的幾何造型進行整合,與鄉村肌理形成鮮明的對比,入口處隔柵的設計取代了大麵玻璃確保建築的隱私。
∇ 設計草圖
我們複原被拆除的南倒座作為公共空間,保留5米乘10米的公共院落作為開放空間與私密空間的銜接,院落中布置泳池、沙坑及滑梯滿足兒童戶外空間的需求。 公區內設置了一個種植樹木的玻璃天井,其頂部是自然光的進口。設計限定了自然光的形態,自然光動態的特性則賦予了空間形態的變化。
空間設計中我們通過各個局部設計串聯起整體的空間秩序,各個局部之間的聯係共同組合成空間存在的價值。創造出一個積極的場所空間是我們立足當下的責任。紅影小院位於合影小院正東20米,基於同樣的邏輯和認知目標進行設計。
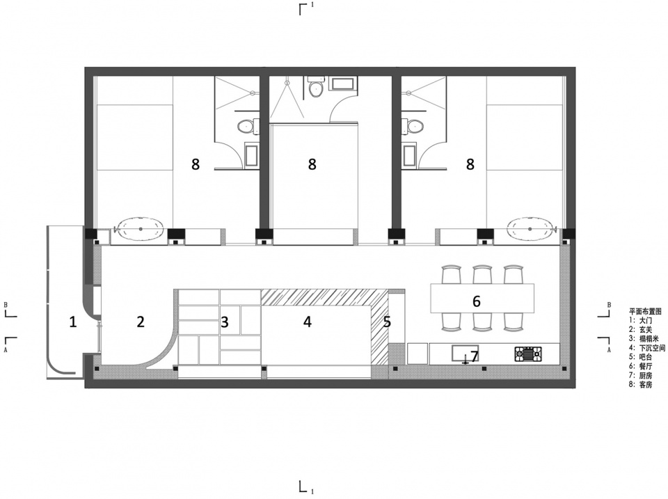
原址為房東閑置的儲物空間,主房為雙坡屋頂,房間內部梁下淨高2.3米,占地東西10米,進深4.5米,院落與主房麵積相同。建築雖坐北朝南但三麵相鄰其他住戶,所以主入口隻能設置在西側,並且緊鄰村落支路。進深小、淨高低、采光差、私密性不足是此處改造麵臨的幾個問題。
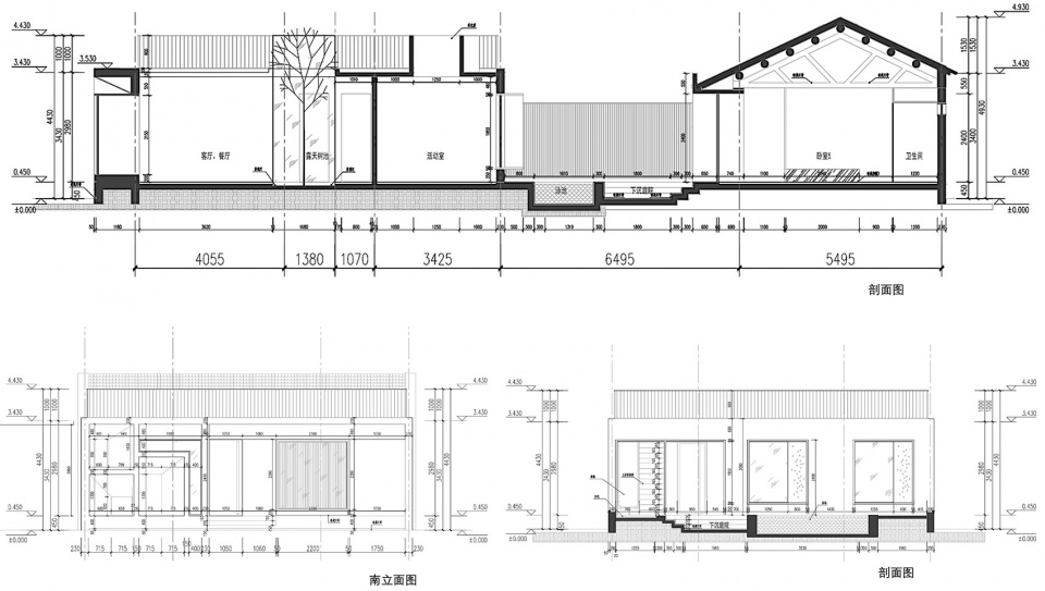
紅色的門頭設計強調了項目作為民宿經營的引導性,在保證了居住者私密性的同時也為整體灰色調的村落置入一抹生機。建築內采用大麵玻璃將室內空間進行延展,低矮通鋪木床增加臥室視覺高度。以白色主色調補充室內采光不足的缺陷。院落則規劃成挑高3.6米淨高的公共區域用以承載廚房、餐廳、客廳等功能所需。客廳部分做成下凹式固定座椅,臥室、餐廳與客廳形成了三個高差,將小麵積多功能的屬性發揮到最大。西向的主入口利用通廊式的門頭順勢將入口方向調整為北向,這樣既增加了入戶的儀式感也解決了道路直衝入口的私密性問題。
∇ 合影小院平麵圖
∇ 合影小院剖麵圖
∇ 紅影小院平麵圖
∇ 紅影小院剖麵圖
項目信息
項目名稱:“影”院民宿
項目地址:北京通州唐大莊村
設計公司:DK大可建築設計
項目設計&完工時間:2021.9-2022.3
設計團隊:楊璽琛 王域灃 王學藝 劉思源
合影小院:占地麵積243平米
合影小院:建築麵積171平米
紅影小院:占地麵積114平米
紅影小院:建築麵積114平米
施工公司:唐山悅富裝飾工程有限公司
攝影版權:金偉琦



































