項目場地位於湖南省湘西土家族苗族自治州古丈縣,處於紅石林、坐龍峽、芙蓉鎮之間,畔酉水而生,周圍的自然環境豐富多樣,山澗溪穀、茶園果樹,一切都散發著寧靜與原始之美。業主做娃娃魚養殖產業起家,起初選擇這裏,也是因為自然山水。幽靜的山穀帶來寧靜而純粹的感受,這也是我們在設計這家民宿時所捕捉和希望傳達的情感。
∇ 場地原始狀態
建築在初次到達時已經基本完成,業主的願望是將其打造成一家高端度假型民宿。在我們開始對這個項目進行全麵改造之前,我們首先在原有建築的基礎上感受了整個場地。場地原建築以聚落形態沿著山徑和溪穀呈條帶狀分布在山體之中,其中臨溪部分單體建築框架和泳池基本完成,建築以紅牆青瓦為主要特點。此外,場地中還有四個組團結構框架和屋頂也基本完成。設計上將重新考慮外部公共流線與民宿內部流線,處理景觀步道與內部庭院邊界關係,以及山徑進入室內的入戶體驗。
∇ 民宿接待區
在湘西洲紅石林,我們尋找到了一個富有詩意的自然景觀。這些石頭的組合和排列,形成了一種獨特的節奏感和韻律感,它曾是溫柔的淺海,經曆了歲月的沉澱,如今以堅韌和靜謐的姿態呈現在我們麵前。這種看似矛盾的組合——溫柔與堅韌,嫻靜與獨立,給人一種深入心靈的觸動。我們希望能夠通過設計,捕捉到這種獨特的自然魅力。要完成一個好的項目,設計師需要有很高的敏銳度。對於材料的處理、顏色、質感,以及對人的行為空間的尺度這些綜合要素的考量,都是形成項目整體氛圍的重要因素。設計上,我們利用其獨特的形態和色彩,融入我們的設計方案之中。同時,我們也會利用光影,借助一些現代設計手法和材料,來創造出更加豐富多變的視覺效果和空間體驗。
∇ 民宿公區餐廳
對於公區和客房的氛圍,我們希望它們有一些差異。公區的設計更接近洞穴的感覺,以迎合周邊石頭和地質的元素,營造了這種整體式空間狀態。現場保留部分其原始的形態和質感,這樣不僅能夠增強公區與周邊環境的聯係,還能夠為客人提供一個更加自然和真實的體驗。
與公區不同,客房的設計將更加注重私密性,同時要將外部景色融入到客房內。我們采用了大麵積的玻璃牆。客人能夠坐在客房內,俯瞰遙遠的山脈。在空間設計上,我們堅持采用簡約的手法,以創造舒適和自然的氛圍。客房的設計在保證景觀視野的同時兼顧了私密性。同時采用了一些弧形的元素,將牆壁、天花板和地麵無縫連接,創造出連續的空間界麵,使人感覺包裹其中。
與此同時,在軟裝的選擇上,我們也在考慮如何在民宿中融入湘西土家族文化的元素。在裝飾品、床品、紡織品中選擇上,我們傾向於土家族的傳統工藝品,如繩編掛件、紋樣抱枕、當地手工藝藤編等,以增強整個空間的民族文化氛圍。
整個項目的設計過程充滿了挑戰。施工隊在以往沒有接觸過這樣的民宿項目,因此我們需要不斷溝通和協調,以確保最終的效果符合我們的期望。此外,疫情時期的時間管理也是一個挑戰。在項目開始階段,我們製定了詳細的工作計劃和時間表,並預計項目將在半年內完成。然而,隨著疫情的爆發,我們開始麵臨許多不可預測的情況。我們與施工團隊進行了多次在線會議,重新評估工作流程並尋找替代方法。隨著時間的推移,我們發現供應鏈方麵也出現了問題。一些材料的價格波動很大,而且供應不穩定。為了確保項目成本可控,我們多方聯係,尋找替代材料或更實惠的選項。然而,最終的成果是值得的。
爾卓山穀業主一家人在這裏用心經營民宿,生活與經營合一,待客如友,一直以來也有一個美好的願望,希望讓城裏人找到故鄉,讓村裏人留在故鄉,我也相信這個願望很快會實現。
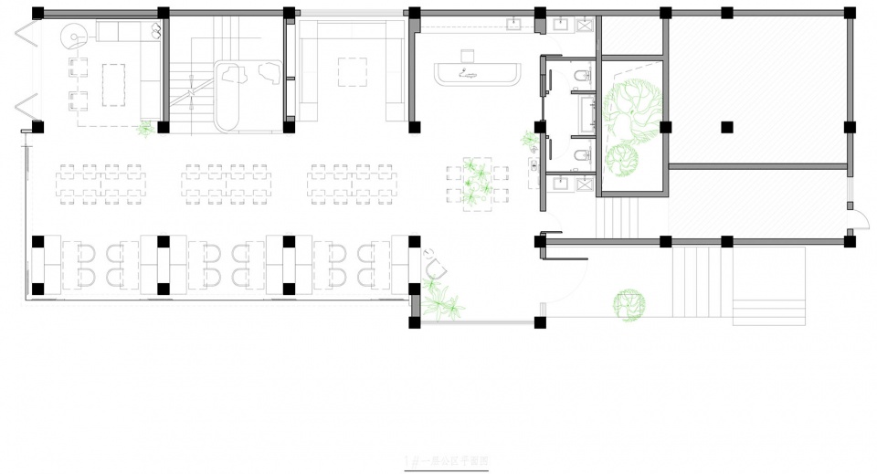
∇ 1號建築一層公區平麵圖
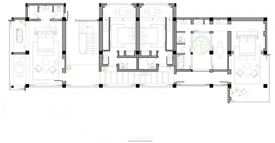
∇ 1號建築二層客房平麵圖
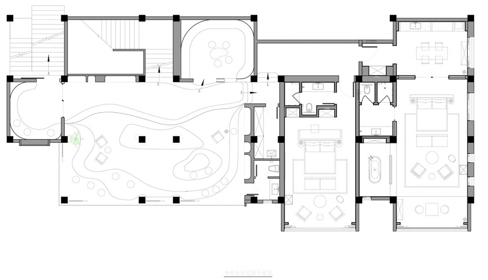
∇ 2號建築一層書吧客房平麵圖
∇ 2號建築二層客房平麵圖
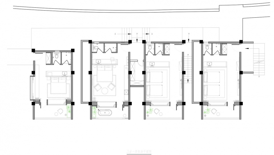
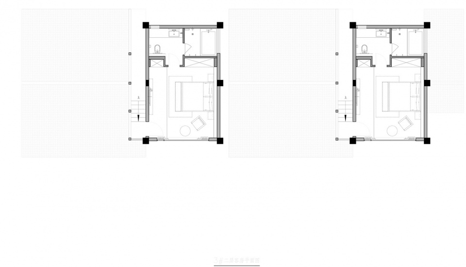
∇ 3號建築一層客房平麵圖
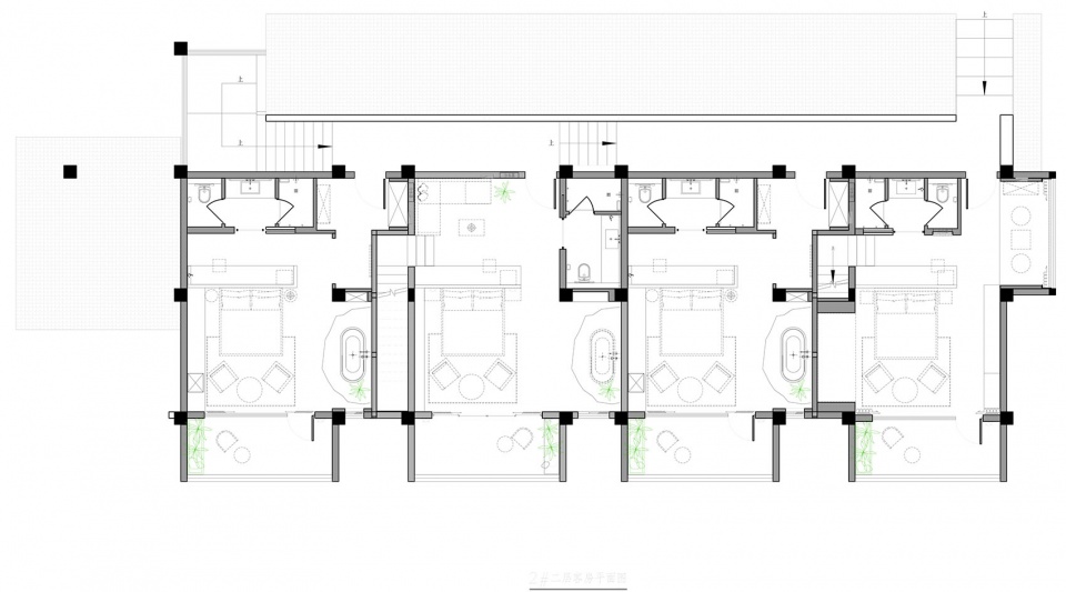
∇ 3號建築二層客房平麵圖
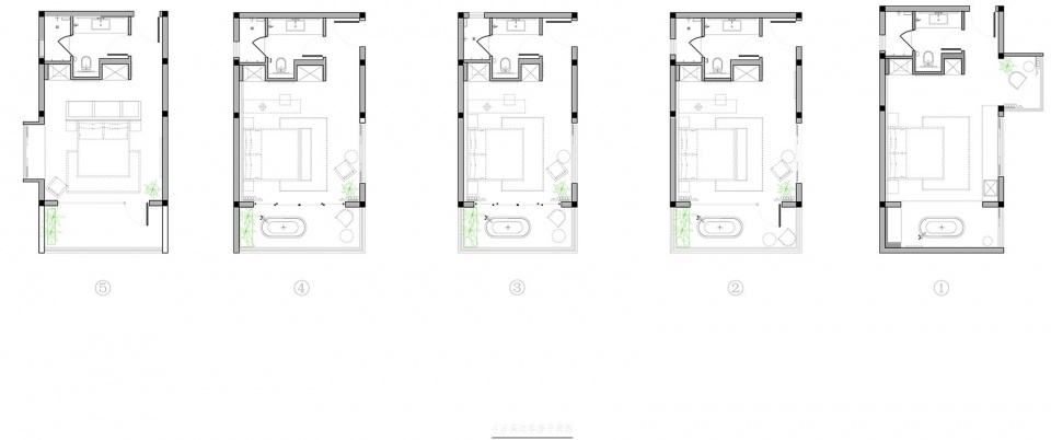
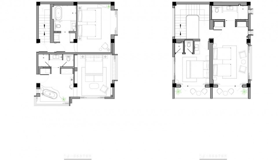
∇ 4號溪邊客房平麵圖
∇ 5號客房平麵圖
∇ 酒吧平麵圖
∇ 接待大廳平麵圖
項目信息
項目名稱:湖南湘西·爾卓山穀疊雲間民宿
項目地點:湖南省湘西土家族苗族自治州古丈縣
項目業主:古丈縣爾卓山穀休閑農業旅遊文化產業發展有限公司
項目類型:文旅民宿酒店
設計單位:尌林建築設計事務所
主持建築師:陳林
室內設計師:王嘉欣
參與設計師:陶麗莎、陳美婷、黃溫怡、李潔琦、洪雨萌
駐場設計師:王嘉欣、陳美婷
軟裝合作:白駒空穀
品牌設計:虛穀設計
設計時間:2021.8-2021.11
建造時間:2022.1-2023.5
建築麵積:2000㎡
設計範圍:一體化設計(規劃、建築外立麵改造、室內、軟裝落地、景觀、品牌標識)
建造材料:毛石砌塊、玻璃磚、老石板、鋼板、水洗石、水磨石、微水泥、老木板、藤編等
建築攝影:吳昂、丁詩穎






































































