隱匿千年古村落,消隱在人間煙火中……
A secluded haven nestled in a centuries-old village, integrated into everyday life.
∇ 全區鳥瞰 © 是然建築攝影 Aerial view of the site © SCHRAN
場地處在一個具有悠久曆史的傳統村落裏,周邊都是具有典型徽式元素的傳統民居。既有悠久曆史的明清建築也有疊加近代及當代新建的村民住宅。而我們場地所在位置是這個村落裏比較深的區域,到達這裏必須穿過村落中或寬或窄、蜿蜒曲折的村中巷道。
Nestled within the heart of a village steeped in rich history and culture, the project site is dominated by traditional Anhui-style residences dotting the landscape. These unique dwellings are a blend of old and new, with some having been built centuries ago during the Ming and Qing dynasties, while others have been recently constructed, reflecting a more contemporary style. Since the hotel is deep inside the village, one must meander through the narrow and winding lanes of the village to reach this hidden gem.
∇ 建築鳥瞰 © 是然建築攝影 Aerial view of the building © SCHRAN
∇ 融入在碧山村的建築 © 倪楠
The building integrating into the context of Bishan Village © Ni Nan
不過踏勘時我站在場地中,看著周邊青瓦白牆與層疊錯落的馬頭牆。遠處炊煙升起,隔巷聽著傳來的聲音,柴火煙熏味中夾雜的飯菜香味飄入鼻中。我忽然覺得是不是可以拋開一些固有的印象及標簽,從實際的場地出發,將建築隱匿在村落中,創造一個內向型的獨處世界。融入村落卻又能與外部看似雜亂、錯綜、多樣的環境有著極度反差的空間!
However, as I stood in the area, I found myself captivated by the picturesque surroundings – the gray tiles, white walls, and stacked stepped gables. The distant smoke of cooking, the sounds of conversations, and the aroma of food created a unique atmosphere. This experience inspired me to put aside my preconceived notions and embrace the site’s inherent beauty. I envisioned integrating the building into the village, creating a secluded space that harmonizes with its surroundings while offering a stark contrast to the surrounding vibrant and diverse environment.
01 無序中尋找秩序
Discover order from a disorderly condition
∇ 概念草圖 © y.ad studio Concept sketch © y.ad studio
中國傳統村落的建築肌理,都是通過自然生長及曆史沉澱累積而成的,錯落無序卻又充滿生機。項目所處的周邊建築肌理同樣如此,它不是呈橫平豎直狀,而是呈歪歪扭扭的不規則形狀,非常的無序。
The architectural fabric of traditional Chinese villages is shaped by unplanned natural development and historical influences, resulting in a disorderly yet vibrant condition. The project site is no exception, which has a crooked and irregular terrain.
開始確實也造成了一定的困擾,總覺得在這樣一個很緊湊的場地裏塞進去一個建築體塊,感覺沒有“景”也沒有“空間”,利用率也不高。在反複思考後“既然要做一個內向型的空間,何不引入一些中國園林的思維?完全隔絕於外部環境,製造一個內部世界,在充滿複雜性的圍合中製造一個極度純粹、純淨及靜謐的內部空間。”
Initially, the compact site posed challenges as it seemed to lack “view” or “space” for a building block, with low utilization rates. However, after careful consideration, the idea of creating an introverted space with a touch of Chinese garden thinking emerged. The goal was to isolate the building from the surrounding environment, creating a pure and tranquil interior space within a complex enclosed structure.
∇ 概念草圖 © y.ad studio Concept sketch © y.ad studio
確定原則後,我原本想做一個與周邊建築極度反差的現代建築。但是政府主管部門批複“碧山村作為傳統古村落,他有風貌保護原則,必須要有徽式建築的元素。”但是我們並不想複刻一個傳統的徽式建築,形式上的傳承既無新意和突破,也不符合當代人的生活使用習慣,我們更希望傳承的是它的一些精神內核而不是表象和形式。於是“如何將傳統建築元素與現代形式及生活方式相結合?”一直都是我們重點思考的問題。
While the initial plan was to create a modern building in stark contrast to the surrounding structures, the local authority required the incorporation of Hui-style architectural elements to preserve the ancient style and features of Bishan Village. Rather than simply replicating a traditional Hui-style building that fails to meet contemporary lifestyles, we envisioned a building that inherits the spiritual core of Hui-style architecture, integrating traditional architectural elements with modern forms and lifestyles.
∇ 分析圖 © y.ad studio Diagram © y.ad studio
場地的設計策略並未作大的調整。在將各個功能填滿後,我們保留了場地中已有百年的大樹與古井,再將庭院、天井植入各個建築體塊中,在各個體塊間隙中嵌入或大或小的內庭院進行虛實之間的轉換與過渡,並形成視覺重心。在製造豐富的內部視覺意像的同時,也通過內庭院及天井,讓建築內外之間、自然之間形成一個過渡與連接。
The design strategy remained mostly unchanged. On the premise of satisfying functionality, we preserved the century-old tree and the ancient well, incorporating courtyards and patios into each building block, and embedding courtyards in the spaces between blocks. This approach not only offered a rich visual experience in the interior but also facilitated a seamless transition between the inside and outside of the buildings and a harmonious connection with nature.
02 動態視覺感受
Dynamic visual experience
在設定空間動線的時候,我們設定了很多轉折與過渡。希望用空間的節奏、人的流動、視線的遊走,可以達到移步換景。隨著人在空間中前行停頓、或上或下的軌跡製造不同的身體感受與體驗,以此來回應“空間”、“時間”與“情感”,感知空間的多樣性與豐富性。
Regarding the circulation design, we carefully incorporated turns and transitions, trying to offer varying scenes with each step by considering the rhythm of space, the flow of people, and the visiting experiences. As guests walk through the space, whether moving forward, pausing, upstairs or downstairs, they can encounter diverse sentiments and experiences that respond to “space”, “time” and “emotion”, allowing guests to perceive the diversity and richness of the space.
∇ 入口前庭院 © 是然建築攝影 Dooryard © SCHRAN
∇ 內廊道 © 是然建築攝影 Corridor © SCHRAN
∇ 向上樓梯 © 是然建築攝影 Stairs © SCHRAN
∇ 室內望向庭院泳池 © 是然建築攝影 The swimming pool view from the interior © SCHRAN
∇ 室內往庭院泳池 © 是然建築攝影 Indoor to the swimming pool © SCHRAN
∇ 內庭院泳池 © 是然建築攝影 Inner courtyard with a swimming pool © SCHRAN
所以我們有違常規的將公共客廳與接待區放置在建築的中心位置,從中心再往四周輻射。從入口開始進入到前庭院,再轉換到玄關處將視線定格在玄關處的牆上,再轉經過泳池、樓梯及內庭院最終到達接待公區。我們希望當人們在進入到這個建築的時候就開始整理思緒和調整心理,雖然這是一段短短的行走路徑,但當他行走在這種“不確定性空間”的時候可以讓他感到新奇,激發他對這個空間的探索和好奇心。
Unlike conventional layout design, the public living room and reception area were placed at the center of the building, which extended and radiated all around. The entrance leads to a dooryard, then to the wall of the foyer. Subsequently, guests need to pass through the swimming pool, stairs, and inner courtyard before reaching the reception area. The route was designed for guests to organize their thoughts and adjust their mindset along the way. The short but undefined walkway aims to evoke a sense of novelty, stimulating curiosity and encouraging exploration. Entering such a meaningful space after passing through the intricate country lanes outside elicits a special contemplation and inner joy.
∇ 室內望向內中庭院 © 是然建築攝影
The inner courtyard view from the interior © SCHRAN
∇ 中庭上空空中連廊 © 是然建築攝影
Elevated corridor above the courtyard © SCHRAN
∇ 中庭上空 © 是然建築攝影 Over the courtyard © SCHRAN
從外麵複雜的村落巷道推開門進入到一個充滿意味的空間,讓人產生一種別樣的思緒和內心喜悅。體驗最終停留在屋頂露台之上、瞭望塔之中,從幽遠深邃的空間到豁然開朗的視野。站在露台與瞭望塔之上眺望遠山、回望內院、俯視屋頂。通過這一係列的空間大小、視域收放、視距遠近和向心與向外的營造讓人產生動態視覺感受。
The experience culminates on the rooftop terrace and in the observation tower, transitioning from a remote and profound space to a suddenly open broad view. From these vantage points, guests can overlook distant mountains, observe the inner courtyard, and gaze down at the rooftops. Through this sequence of spatial dimensions, visual fields, varied distances, and inward and outward design elements, guests are offered a dynamic visual experience.
03 向內造景,向外借景
Create scenery inside and borrow scenery from the outside
∇ 接待大廳望向內中庭 © 是然建築攝影
The inner courtyard view from the reception hall © SCHRAN
∇ 過道望向內庭院懸浮樹 © 是然建築攝影
The suspended tree in the inner courtyard view from the corridor © SCHRAN
∇ 客房空間與縫隙式庭院的對景 © 是然建築攝影
The guest room and the slit courtyard © SCHRAN
我們希望建築內的活動與周邊私人住宅不要有衝突與幹擾,不希望它受到周邊環境的幹擾,也不希望幹擾到周邊村民,真正做到共融、共生。所以通過空間的錯落與布局製造一個完全隔離於外界的內向型的布局,讓活動在建築內的人不受外界幹擾也不幹擾到外界。
We intended to avoid interference between the activities within the building, the environment, and the neighborhood, striving to achieve harmony and symbiosis between them. To ensure that the guests and the surrounding villagers are undisturbed by each other, we have designed an introverted layout that isolates the building from the outside world.
∇ 向外開窗借景,框景斑駁馬頭牆 © 是然建築攝影
Windows that introduce the outdoor scenery, framing the mottled stepped gables © SCHRAN
臨周邊民居的建築的牆與院落幾乎不作任何的開窗,通過內部庭院和天井去製造視角與景觀,在內部間隙中去與自然互動。在一些不得不開窗但又與鄰居離的很近的空間,為了保留一定的隱私性與舒適性,我們采用視覺錯位的方式去進行規避。如突破常規高度視角的高窗或極低的低窗,讓它既可以保證光線和通風又能避免視覺上的直視。同時還盡量將窗創造成一個取景框,將外麵斑駁的古磚牆框成一副畫,將綠鬱蔥蔥充滿生機的植物內庭塑造成一個櫥窗,抑或是框住遠處的碧山。
The building walls adjacent to the surrounding residential area nearly have no windows, and inner courtyards and patios are utilized to create pleasant views and interaction with nature. In spaces where windows are necessary but privacy is a concern, we used visual dislocation approaches such as high or low windows to maintain privacy while allowing light and ventilation. Each window was designed as a viewing frame to introduce the lush greenery in the courtyard and the mountains in the distance.
我們試圖讓每個房間都可以有不同的景。不管是“遠借、鄰借、仰借、俯借還是應時而借”,都讓人從室內往窗外的視線可以有景可觀。將“幽”、“雅”和“放鬆”的意境、氛圍植入空間。
Additionally, we made efforts to create unique and pleasant views from every room, allowing guests to enjoy the surrounding scenery by standing by the window. By borrowing landscape from the remote and nearby sceneries from different angles at appropriate times, the design approach results in a tranquil, elegant, and relaxing ambiance.
∇ 向外開窗借景,框景後山 © 是然建築攝影
The window that introduces the outdoor scenery, framing the mountain scene © SCHRAN
∇ 樓梯間望向天台 © 是然建築攝影
The rooftop terrace view from the staircase © SCHRAN
∇ 框景後山感受四季變換 © 是然建築攝影
The structure frames the mountain scene and brings in the changing seasonal landscape © SCHRAN
∇ 遠瞭村落起伏屋頂 © 是然建築攝影
The undulating roofs of the village in the distance © SCHRAN
∇ 瞭望塔遠望村落起伏屋頂 © 是然建築攝影
The undulating roofs of the village view from the watchtower © SCHRAN
我們試圖通過這些做一次全新的居住嚐試,不希望它隻是一間具有居住功能的貧乏產品。而是希望它是一個充滿驚奇、生活情趣、空間意境及情感寄托的體驗場所。用空間的營造讓人在複雜與多樣性中去體驗純粹,在當代中感受傳統,從喧囂中步入平靜,感受時光、感受靜謐。在一成不變中去感知“不確定”與“驚奇”。
We aimed to create a living and hospitality experience that goes beyond mere functionality, offering a venue to experience surprises, fun, artistic space conception, and sentiments. We strived to provide a space that allows people to find purity in complexity, feel tradition in contemporary times, and immerse in tranquility amidst the hustle and bustle, while also experiencing “uncertainty” and “surprise” in an unchanging realm.
04 共融與新生
Symbiosis and rebirth
∇ 與建築共融共生的玉蘭樹 © 是然建築攝影
The magnolia tree coexists with the building © SCHRAN
場地中已近兩百年的玉蘭樹,屬於外來樹種,聽村民說其為經商的前輩從上海帶回來植栽至今。原場地中的古水井我們也未將其填埋,而是將其融入建築之中,我們希望在留存一些曾經的記憶的同時也能與其共同在地生長……
The 200-year-old magnolia tree on the site is an exotic species transported from Shanghai by a businessman in the village. The existing ancient well has been preserved and integrated into the building, aiming to retain memories of the past while growing with the site.
∇ 傳統元素的延續與新生 © 是然建築攝影
The continuation and rebirth of traditional elements © SCHRAN
在黃山區域,馬頭牆這種建築元素不僅遍地開花,還被視為“徽派建築”的象征。對於新建築也必須加入“曆史元素”的做法,作為建築師有時候還是有點排斥的。總覺得新建築應當使用當代的方式去疊加,而不是去延續、重複複製過去的做法。我們希望這裏有時空的交叉、時間的交錯,有呼應現代和傳統的共融。最主要還是要符合當代人的生活及審美,不去複刻、模仿。所以除去建築形式外,會更側重於空間的塑造,和如何讓它更人性化、更符合當代人的生活習慣、使用及審美。用一種符合當代的語言與形式去做一個銜接與傳承。既保持其神韻又想要做出一些改變,用一種新的方式去延續、融入達到一種共生的狀態。既不違和又能保有獨特性。
In the Huangshan area, stepped gables are ubiquitous and symbolize Hui-style architecture. As an architect, I’m not inclined to incorporate historical elements into new buildings, because I believe that new buildings should focus on the superimposing of contemporary methods rather than replicating past practices. We value the blend of modernity and tradition, conforming to the life and aesthetics of contemporary people. As a result, our focus is on shaping the space to align with modern living habits and aesthetics, using contemporary language and form to connect and inherit the heritage while making some changes to achieve a state of symbiosis. The goal is to capture the spiritual essence and iconic identity of the building harmoniously.
∇ 古樸青磚與現代玻璃磚的建築融合 © 是然建築攝影
Fusion of antique gray bricks and modern glass bricks © SCHRAN
我們使用青磚來作為主要的建築材質。一是覺得青磚與周邊的傳統建築群比較契合,二是我們覺得青磚也能有很多種表達,他有很強的兼容性。我們將青磚與玻璃磚進行搭配,把青磚的沉重與厚重進行消解,讓他呈現出一種輕盈與現代的視覺感,玻璃磚與青磚碰撞又能融造出一種別樣的觀感。
Taking into consideration its versatility and compatibility, gray bricks were used as the main building material to blend with the surrounding traditional buildings, complemented by glass bricks to create a light and modern visual sense, eliminating the heaviness of the gray bricks, and adding a different look and feel.
05 讓空間發生故事
Make stories happen in space
∇ 複合使用的內中庭空間 © 是然建築攝影
Mixed-use inner courtyard © SCHRAN
∇ 具有多義性的公共交流空間 © 是然建築攝影
A multi-functional public communication space © SCHRAN
不僅僅隻是滿足居住的需求,除了具備一定的精神性與鬆弛感外,我們希望空間也具備敘事性。通過場景與人的活動,讓空間發生故事,放大社交屬性與交流功能。通過創造空間的方式去鼓勵人與人之間進行互動與交流,讓空間不僅僅隻是住宿、度假空間。茶室、書吧,餐廳也都會以一種相對開放與靈活的方式展現,讓它變成一個“交流會客廳”。甚至有可能每個房間我們都不設電視,在公共空間營造一種觀影氛圍,以這種方式引導人走出獨處空間,走向公共空間。
The space not only meets the practical needs of living but also fosters a sense of spirituality and relaxation. The spatial narrative allows for stories to happen and enhances the social and communicative functions through scenography and people’s activities. The inspiring design encourages interaction and communication among people, making it more than an accommodation for vacations. The tea rooms, book cafes, and restaurants were transformed into an open and flexible “living room for communication”. Guests are encouraged to watch movies in the public space since there is no TV in the guest rooms, guiding them to embrace social interactions.
∇ 兼具聚會與交流的BBQ空間 © 是然建築攝影
BBQ area for gathering and communication © SCHRAN
∇ 露台空間 © 是然建築攝影 Terrace © SCHRAN
泳池、BBQ、露台、瞭望塔的設置都是鼓勵多元社交的一些方式。
但是我們仍然會去創造一些既能獨處,又能和其他人共融的空間。除保持各個房間的相對獨立與隱秘性外,在屋頂的溫室花房設計中,將它塑造成一個相對安靜獨立的屋頂花房秘境。所以在一些社交公共空間上讓它既向內生長,還向上生長。
In addition, amenities such as swimming pools, BBQ areas, terraces, and observation towers were designed to promote diverse social interactions.
While emphasizing communal spaces, we also recognize the importance of providing space for solitude and harmonious coexistence with others. Each room maintains relative independence and privacy, and a quiet and secluded rooftop greenhouse was designed for moments of tranquility. In this way, the public social space of the building can grow both inwards and upwards.
06 讓光影與空間交織成詩
Let light, shadow and space interweave into poetry
∇ 光斑在白牆上變幻,由圓到方的轉變 © 是然建築攝影
The light spots changing from round to square on the white wall © SCHRAN
∇ 光斑在白牆上變幻,由圓到方的轉變 © 是然建築攝影
The light spots changing from round to square on the white wall © SCHRAN
∇ 充滿詩意的光影,感受時間的變換 © 是然建築攝影
Poetic light and shadow reveal the passage of time © SCHRAN
∇ 充滿詩意的光影 © 是然建築攝影
Poetic light and shadow © SCHRAN
∇ 光影穿透磚牆 © 是然建築攝影
Light and shadow penetrate the brick wall © SCHRAN
∇ 充滿詩意的光影,感受時間的變換 © 是然建築攝影
Poetic light and shadow reveal the passage of time © SCHRAN
光是雕琢建築空間的一種介質,光影的相互作用會在視覺上產生一定特定的效果。某種程度上光也是一種變化的建築材質。平時在建築實踐中我們也尤其注重建築對光的引導與塑造,希望可以通過光影的注入讓空間變的豐富,充滿詩意,讓空間具有情感、意境及趣味性。也希望人們通過空間光影的變化可以感知時空。
Light plays a crucial role in shaping architectural space, creating visual effects through the interplay of light and shadow. From a certain perspective, light is a sort of architectural material. In our architectural practice, we focus on introducing and shaping light to enrich the space with poetry, sentiments, and artistry by injecting light and shadow. We also aim to evoke a sense of time and space through the changing light and shadows.
∇ 感受時間的變換 © 是然建築攝影 Feel the passage of time © SCHRAN
∇ 慵懶、輕鬆的光影氛圍 © 是然建築攝影
Cozy, relaxing light and shadow atmosphere © SCHRAN
∇ 朦朧的光感 © 是然建築攝影 Hazy sense of light © SCHRAN
∇ 具有豐富質感的光影 © 是然建築攝影
Light and shadow with rich textures © SCHRAN
為了保證室內的光線,庭院與天井仍然是我們整個設計中的核心,用天井及庭院分離建築體塊來保證充足的采光。通過玻璃磚牆、屋頂的天窗、不同形態的格柵導入光線,營造不同的空間情緒。通過光影的變化和移動,讓在這個空間的人可以感受時光、引人遐思。
Courtyards and patios remain integral to our design, ensuring ample indoor lighting by strategically separating building blocks. We utilized elements such as glass brick walls, skylights, and variously shaped grilles to introduce light to create diverse spatial atmospheres. The dynamic interplay of light and shadow within these spaces evokes a sense of time and inspires contemplation.
∇ 總平麵圖 © y.ad studio Site plan © y.ad studio
∇ 首層建築平麵圖 © y.ad studio 1F plan © y.ad studio
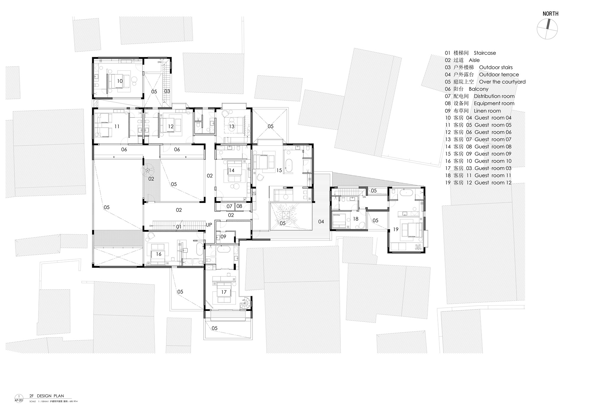
∇ 二層建築平麵圖 © y.ad studio 2F plan © y.ad studio
∇ 三層建築平麵圖 © y.ad studio 3F plan © y.ad studio
∇ 屋頂建築平麵圖 © y.ad studio Roof plan © y.ad studio
項目信息
項目名稱:黟雲·碧山酒店
項目地址:安徽省黃山市黟縣碧山村歐村路8號
設計單位:y.ad studio | 上海嚴暘建築設計工作室
主持建築師:嚴暘
項目建築師:吳可嘉
項目室內、景觀設計師:吳可嘉、趙思緣
設計團隊:嚴昱、霍振忠(結構)
VI指示係統:嚴暘、吳可嘉
施工單位:黃山朝樺裝飾設計有限公司
建設單位:黃山市逸陽文化旅遊發展有限公司
主要材質:青磚、水磨石板、竹鋼板、錳鎂鋁金屬屋麵、玻璃磚、微水泥塗料、木飾麵
建築麵積:1286.25平方米
設計時間:2020/12-2021/06
建造時間:2021/09-2023/10
攝影版權:是然建築攝影
Project name: Yiyun · Bishan Hotel
Address: No.8, Oucun Road, Bishan Village, Yi County, Huangshan City, Anhui
Design firm: y.ad studio
Chief architect: Yan Yang
Project architect: Wu Kejia
Interior and landscape designers: Wu Kejia, Zhao Siyuan
Design team: Yan Yu, Huo Zhenzhong (structure design)
VI design: Yan Yang, Wu Kejia
Construction firm: Huangshan Zhaohua Decoration Design Co., Ltd.
Developer: Huangshan Yiyang Cultural Tourism Development Co., Ltd.
Main materials: Gray bricks, terrazzo slabs, laminated bamboo panels, Aluminum-magnesium-manganese (AMM) roofing, glass bricks, micro-cement paint, wood veneer
Project area: 1,286.25 square meters
Design phase: December 2020 – June 2021
Construction phase: September 2021 – October 2023
Photos: SCHRAN



























































