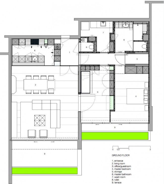
LVDV是一個室內改造項目,由比利時建築實踐i.s.m.architecten設計打造。改造的主要目的是使現有的公寓更加適應新主人的生活習性。通過設計,希望獲得一個盡可能寬敞的獨居空間,同時當有客人留下過夜時,又能保持一定的私密性。
現有的結構牆穿過兩個隔間,形成設計的主幹。所有新增的分隔元素皆為軟性的:如玻璃門,滑動門,旋轉櫥櫃等,創造出不同的透明度。通對顏色的使用,穿孔的結構牆在當門打開或者旋轉過來時,才會顯現出來。
Photos © i.s.m.architecten
版權聲明:本站所有文章除投稿授權發布外,其他文字內容均為原創,享有著作權保護,未經許可不得以任何形式進行轉載(包括且不限於:媒體、網站、公眾號等)。所有項目照片/設計圖形版權歸原作者所有。本站部分內容源自網絡公開資源或用戶分享,如若侵犯了原作者的合法權益,可聯係我們進行處理。






















