折射屋是RAD+ar事務所的又一次微型實驗,項目旨在以最佳方式改造原來不可持續的東西向大進深平麵,同時對保護隱私最基本的牆體元素發起挑戰。
增加照明 – 減少熱傳導
Increase illumination – Decrease Heat Transmission
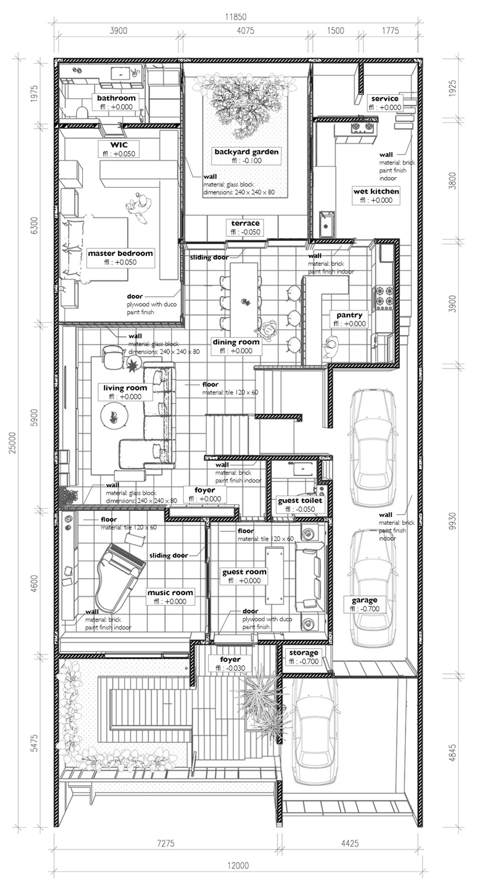
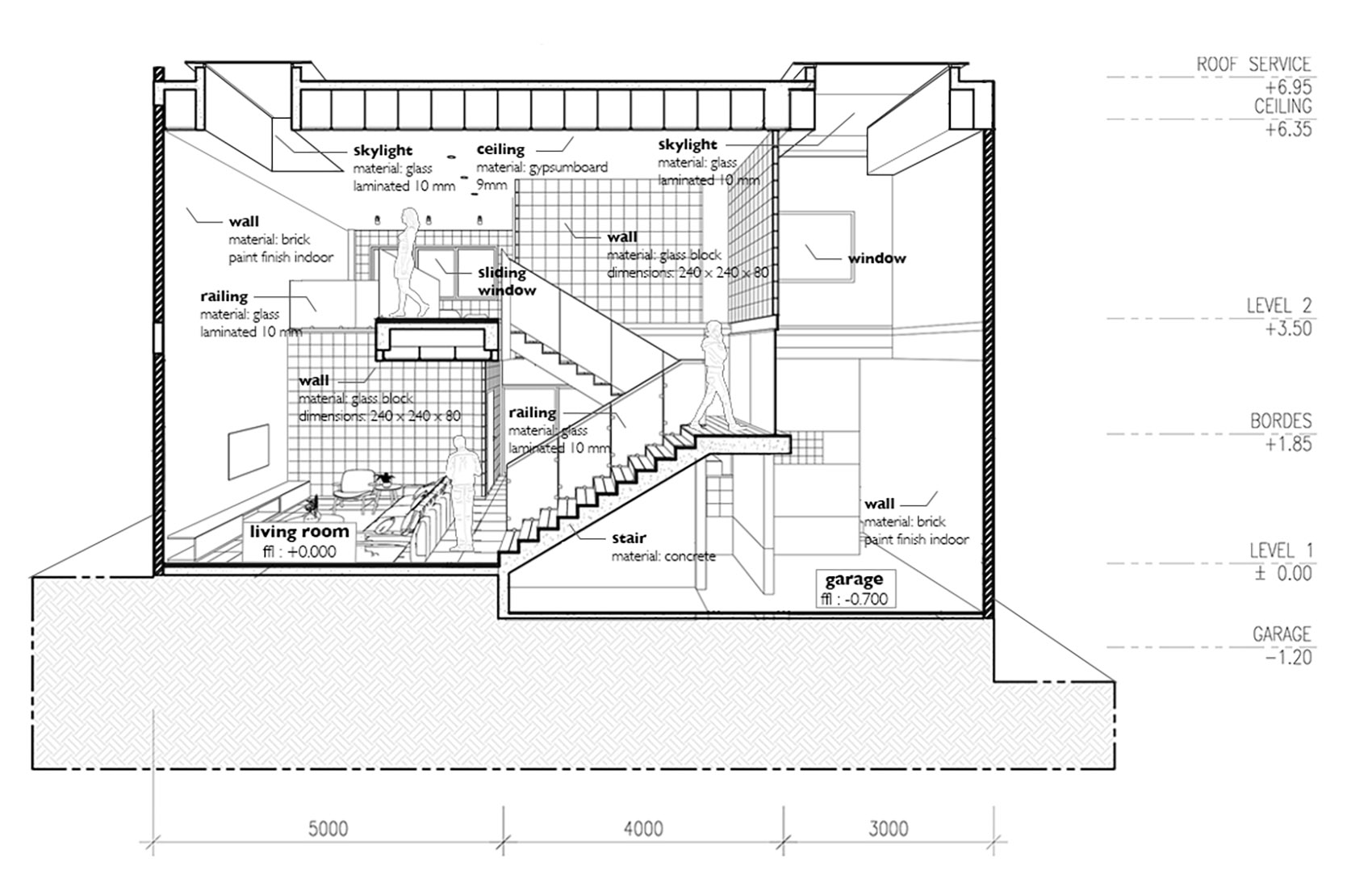
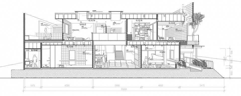
在現有進深較大的平麵中,朝向東西的立麵不利於在熱帶氣候中實現房屋的可持續性。因此,為了確保每個內部功能區都能獲得300勒克斯的自然采光,建築師將阻礙陽光的牆壁替換成一係列玻璃磚組合,使光線能夠通過折射進入房屋中心深處。
此外,為減少東西立麵的直接熱量,設計采用最高效的方法,使住宅與前後露台直接銜接。兩側的露天陽台可以保證房屋在夜間緩緩釋放出的熱量能夠迅速形成垂直氣流。因此,改造後的每個房間在白天都能夠享受充足的日光,而不必在照明方麵妥協。
房屋內的迷你花園整合在場地前、中、後的小庭院中,以保證植被不會遮擋進入房屋的光線。
改造保留了大部分原有結構,同時簡化不必要的元素,強調更基本的空間功能。
設計在房屋中植入花園小路,為居住空間營造出不斷變化的環境,隨著時間的推移,不斷變化的體驗也將賦予家庭生活獨特的新鮮感。而隨著未來的生活方式發生變化,半透明的玻璃磚也將作為空白畫布記錄下充滿創造力的家庭故事。
∇ 節能玻璃磚
∇ 一層平麵圖
∇ 二層平麵圖
∇ 剖麵圖
項目信息
項目名稱:折射屋
設計公司:RAD+ar
公司所在地:雅加達,印度尼西亞
完成年份:2021
總建築麵積(平方米/平方英尺):525平方米
項目地點:雅加達
首席設計師:Antonius Richard
設計團隊:Felda Zakri, Partogi Pandiangan, Leviandri
圖片來源:威廉·蘇坦托
































