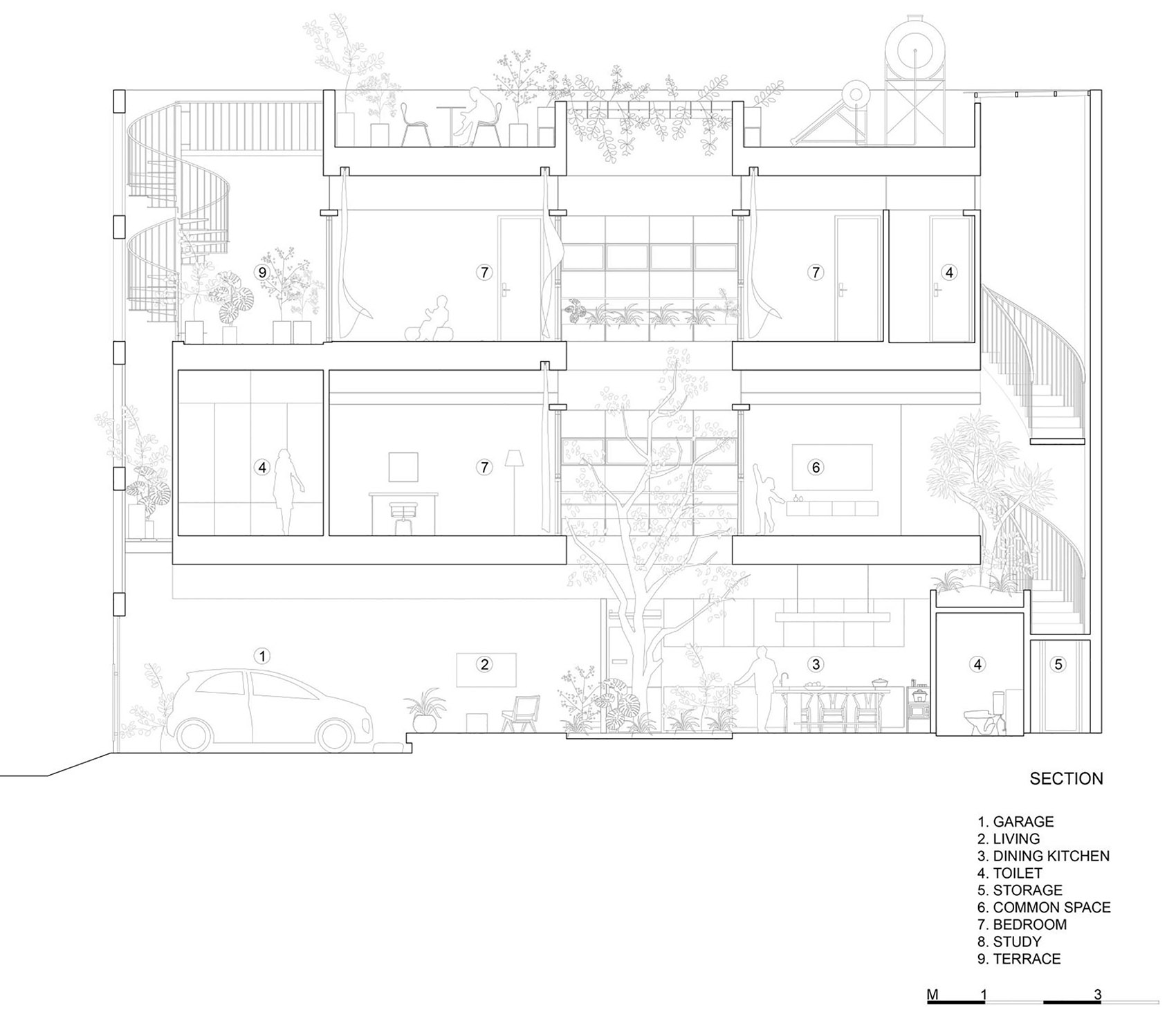
rear studio在4米*17米的場地上設計了一棟三層住宅。
車庫、客廳、餐廳和廚房等空間布置在首層,臥室和起居空間則位於二層和三層。
實體空間與虛空間相互穿插,建立起水平與垂直方向上的聯係。
圓拱形式是房屋的特色所在,設計師旨在通過這種結構打造出富有“原始”氣息的空間,為居住者提供安靜、舒心的氛圍。
∇ 模型
∇ 平麵圖
∇ 剖麵圖
版權聲明:本站所有文章除投稿授權發布外,其他文字內容均為原創,享有著作權保護,未經許可不得以任何形式進行轉載(包括且不限於:媒體、網站、公眾號等)。所有項目照片/設計圖形版權歸原作者所有。本站部分內容源自網絡公開資源或用戶分享,如若侵犯了原作者的合法權益,可聯係我們進行處理。






























