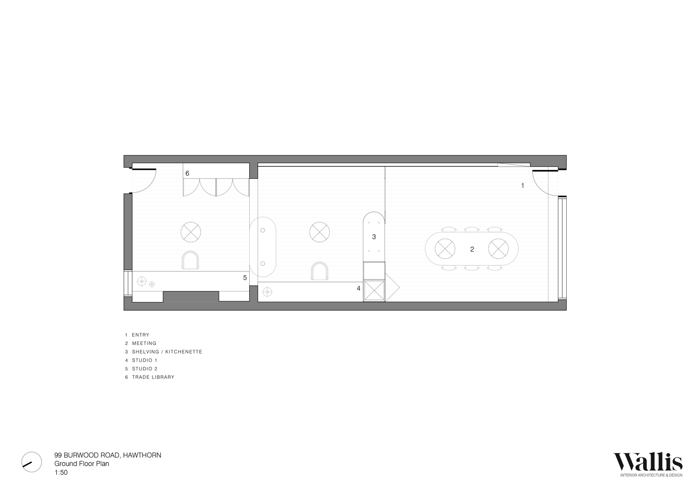
這是為 Wallis Design、ZD Construction 和 JPM 浴室創建一個協作設計工作室,該工作室可以靈活地滿足每個人的需求。該工作室需要整合半私人工作站,以及一個協作會議區、一個交易圖書館和一個小廚房區。設計師希望恢複空間內的一些現有特征,例如裸露的磚砌、高高的天花板和拱門,以在 Burwood 路的喧囂中營造一種平靜的感覺。
概念設計從日本美學中汲取靈感。將簡潔的線條與天然原材料、中性色調和成對的背部細節相結合,營造出一種溫暖的感覺。設計師平衡了裸露的磚牆的溫暖與整個細木工、家具的淺色木材和灰色色調。開放式架子能夠打破空間,同時仍然允許自然光透過,並為工作室提供了一個展示項目材料和獨特物品的功能。
通過使用屏風、開放式擱架和定製細木工,將層次引入空間,能夠在整個空間中實現半私人和共享空間的平衡。設計師受到日本設計實踐和工藝原則的啟發,並專注於本地采購的材料、手工細木工製品和精致的細節。
∇ 平麵圖
版權聲明:本站所有文章除投稿授權發布外,其他文字內容均為原創,享有著作權保護,未經許可不得以任何形式進行轉載(包括且不限於:媒體、網站、公眾號等)。所有項目照片/設計圖形版權歸原作者所有。本站部分內容源自網絡公開資源或用戶分享,如若侵犯了原作者的合法權益,可聯係我們進行處理。





















