塞爾維亞 / 普裏什蒂納 / 養生&美容店 # NOMMA studio#
Angel Academy項目提出了一個想法,即通過有機形狀、中性色和弧形牆壁的組合,創造一個讓您感到重要和獨特的空間。位於普裏什蒂納市中心,由住宅改建為培訓學院。Angel Academy是集不同功能於一身的美容空間培訓沙龍。主要是為美發師、美甲師和眉毛師創建一所學院。該空間還提供培訓課程和研討會以及營銷點等功能。
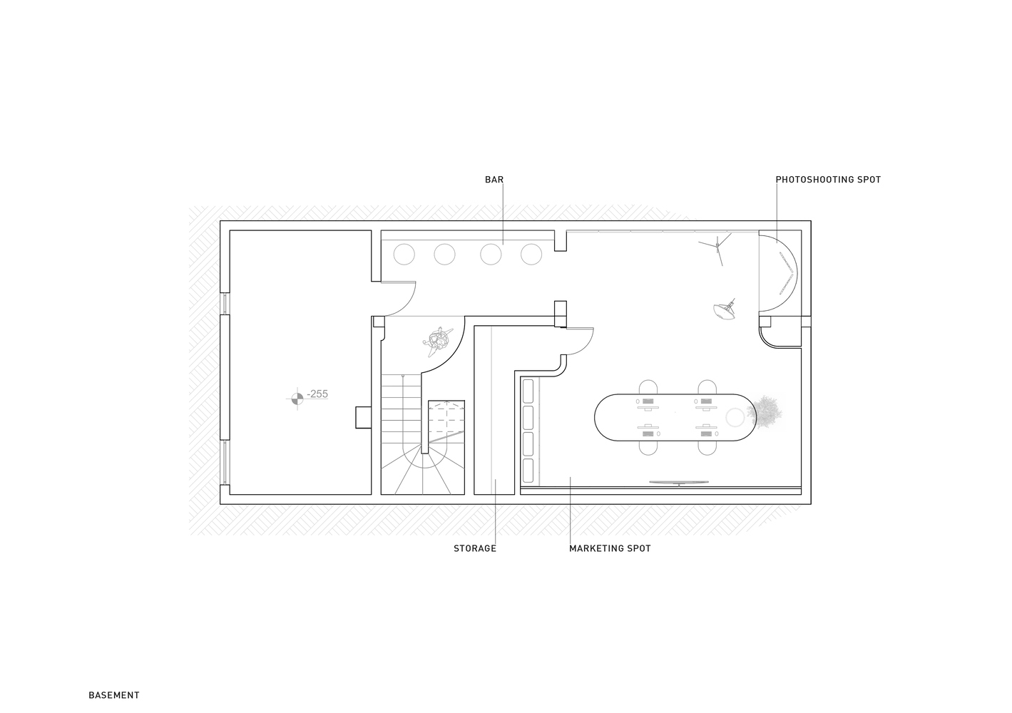
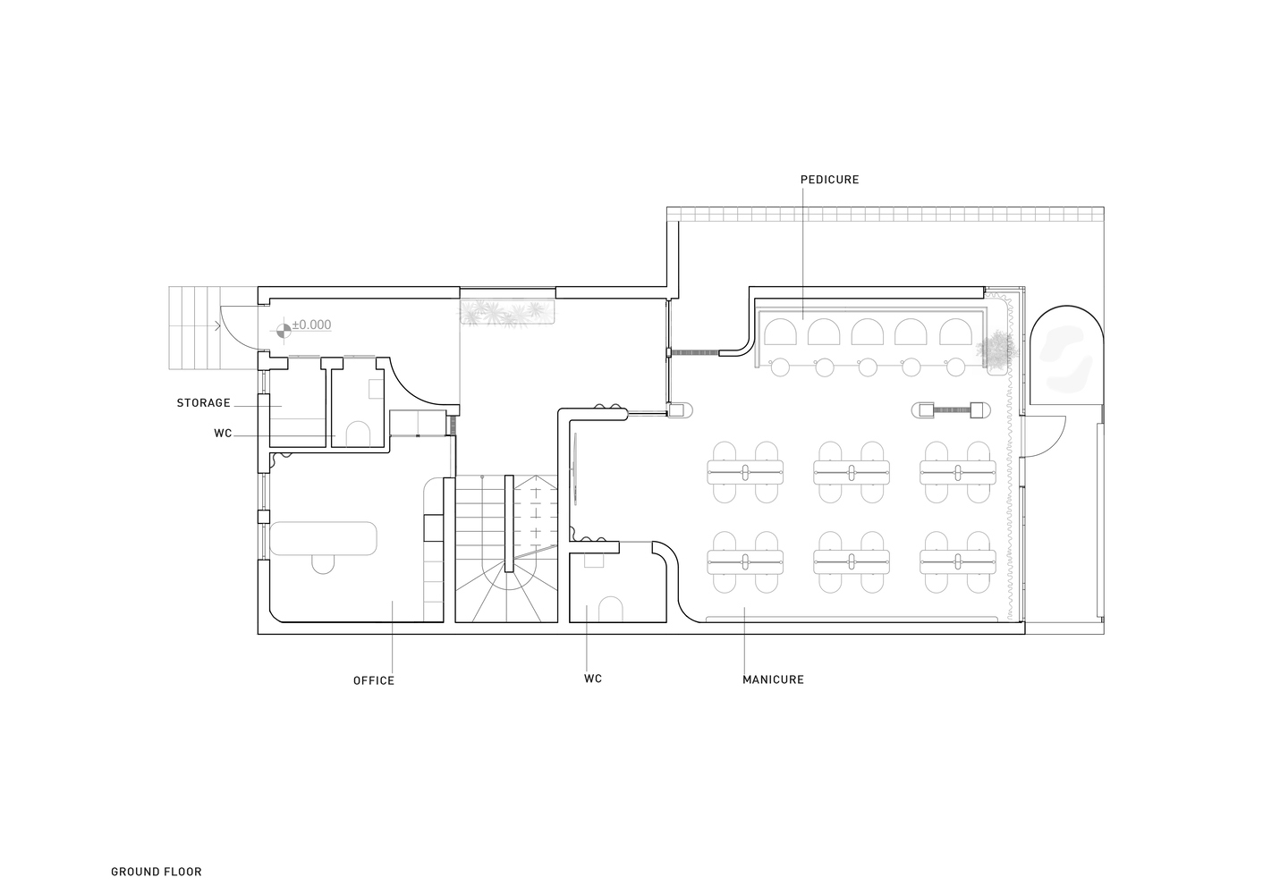
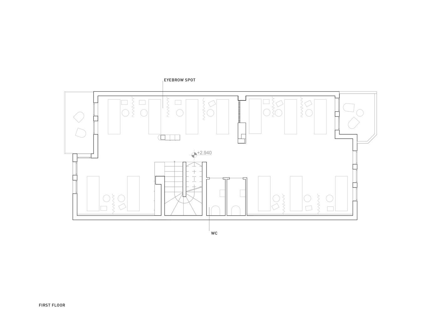
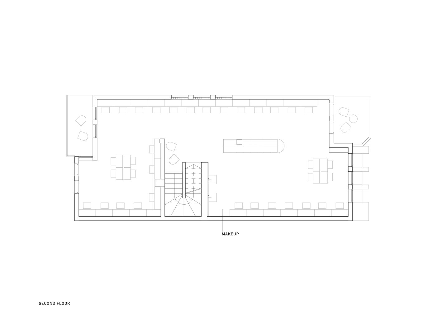
主要目標之一是智能分區。空間必須以這樣一種方式進行規劃,即客戶和員工都會在同一個空間中感到舒適。從目前頗具挑戰性的情況開始,有一對樓梯,牆壁被破壞,自然光不足。有了這個,設計師設法在每個角落創造了一個可以使用的空間,保留了主要的樓梯進行垂直移動,而次要的樓梯則被封閉並用於存儲。
不必要的牆壁已被拆除,以使空間感覺更大。在這個項目中,工作區是關鍵。它的開發是為了讓美容專業人士可以為客戶開發培訓,在從事專業工作的同時盡可能少地占用物理空間。
功能的劃分是根據建築物的樓層和空間。美甲和修腳課程位於一樓,包括用於修指甲培訓的桌子,裏麵設計了LED照明,這是一個帶有高舒適著陸座椅的修腳特殊空間。由於主入口,辦公室位於該層,二樓有額外的空間,是眉毛訓練空間的理想選擇。三樓是化妝訓練層,天花板和櫃台上固定有鏡子,並配有有助於訓練的漫射燈。
調色板基於描述女性的大地色調和中性色。裸色反射,不影響其他顏色,不影響訓練過程。對地板、天花板和牆壁顏色的感知看起來不同,但在相同的陰影中,它們在光線的幹預下相互融合。
外部顏色與內部相關,以在內部和外部之間創造一種連續感。立麵采用天然無毒材料,具有現代簡約風格。麵板由穿孔的彎曲金屬板製成,這些金屬板被重複以形成連續體。底部采用鮮豔的裸色色調,通過創建一個與金屬板連接並指示入口的拱門來創建。
∇ 軸測圖
∇ 爆炸分析圖
∇ 平麵圖










































