IDT-BRANDS DISTRIBUTION 是一家位於都靈的公司,是化妝品和服裝供應領域的領導者,專注於虛擬現實和數字初創企業的推出和孵化。此次幹預是整個街區總體重建的第一階段,將成為都靈第一個致力於電子商務的數字中心。
該項目的主要目標之一是設計更舒適的工作空間,采用共享、生態友好和可持續性的選擇。工作空間本身並不是設計方法的起點,事實上,公共區域和會議區域才是這個概念的真正核心。這是一個連接空間比工作區本身更重要的項目。
更何況在後疫情時期,共享空間中的生態價值觀和人們的福祉,已成為不願變成遠程辦公的辦公室的基本要素。項目計劃是通過劃分不同的運營區域和不同的工作團隊來設計:行政區、創意一區、媒體和攝影一區、采購和管理一區。
接待區非常寬敞,保留了非凡的既有結構的骨架結構;光線從四麵八方、不同的高度和不同的角度進入。建築物的工業和工匠方麵是必須維護的寶貴和特色遺產。
∇ 爆炸分析圖
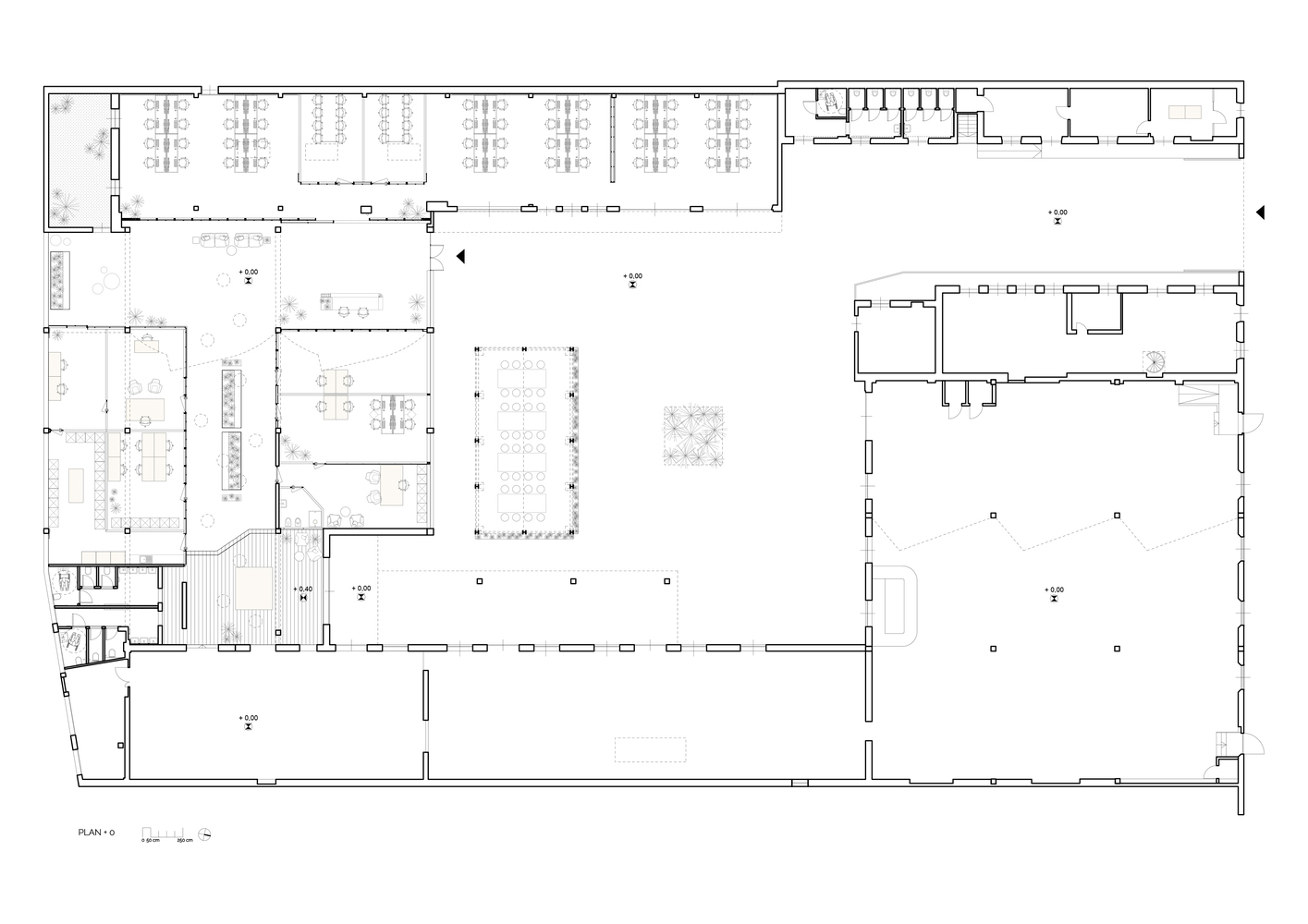
∇ 平麵圖
版權聲明:本站所有文章除投稿授權發布外,其他文字內容均為原創,享有著作權保護,未經許可不得以任何形式進行轉載(包括且不限於:媒體、網站、公眾號等)。所有項目照片/設計圖形版權歸原作者所有。本站部分內容源自網絡公開資源或用戶分享,如若侵犯了原作者的合法權益,可聯係我們進行處理。







































