“走到這幢建築物最裏麵的房間,當外麵的光線已經完全透不進來時,黑暗中的金色門扇和屏風捕捉到了那遙遠庭院的光,反射著夢幻般的光芒。我想黃金這東西從來沒有表現出如此沉痛的美麗。”(出自穀崎潤一郎《陰翳禮讚》)
項目位於廣東省佛山市商業開發區內45米高的瞭望塔頂層。整個瞭望塔內部隻此一個空間可供商用,甲方計劃將此改造成一個高級私密的日本料理場所。項目四麵全部由開放式落地窗構成,可以俯瞰整個遊樂園以及巨大的摩天輪。在欣賞著繁華輝煌景象的同時,如何營造出與之形成對比的沉著私密的高級感空間呢?我們以穀崎潤一郎開頭的文章為設計依據,室內幾乎全部用黑色材料,通過局部點綴金粉的手法來表達我們對文章詩意的理解,希望和來訪者產生情感共鳴。
∇ 軸測圖
我們在黑色材料的選擇上根據場景的需求而變化,有黑色的水洗石、水磨石、瓷磚、飾麵漆以及黑色的鋼板,讓客人在純黑的室內空間也能根據場景的不同感受到材質的變化。黑色飾麵漆點綴的金粉是現場工人後期手工繪製而成,圖案自然流動,配合室內燈光和室外光的反射來達到我們的設計效果。整個空間隻有巨大的整塊壽司吧台在燈光的配合下是明亮的,形成空間的重心,為客人打造更加舒適私密的用餐環境。
與2年前相比,麵對疫情的影響,我們的工作方式也發生了很多變化,借助新的軟件設備,團隊更加適應遠程參與項目的溝通工作。同時我們與北京鳴意品牌設計有限公司建立了合作關係,希望從品牌的角度去完善項目。這是我們在新的工作模式下完成的國內的第一個竣工作品。本項目從2021年10月到春節期間,我們跨越時間和空間的障礙,完成了疫情所帶來的各種挑戰,因此,此次項目的竣工也成為了體現建築現實和虛擬意義的項目。
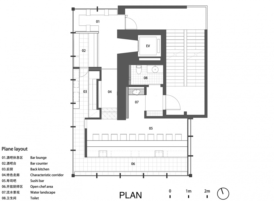
∇ 平麵圖
項目信息
地址:中國廣東省佛山市
麵積:93㎡
室內設計:堤由匡建築設計工作室 + 北京鳴意品牌設計有限公司
(堤由匡、明達、肖陽、洪秀秀)
照明設計:Lightmoment (田中圭吾、Lisa Jiang)
機電設計:北京東洲際技術谘詢有限公司 (石川星明、竹林克宣、山崎隆司)
施工:佛山市鉑銳設計工程有限公司
攝影:聿空間攝影
竣工時間:2022年3月


























