穀底的房子 House at the bottom of the valley
山雀之家位於北京西部太行山區深處,一個穀底村落中的低矮處。場地麵積大概100平方米。當我們第一次拜訪,無論處於室內還是院中,都感覺擁擠閉塞。舊有房舍昏暗,院子窄小淩亂。雖身處大山之中,卻很難感受到周邊的景致。
∇ 鳥瞰圖,項目與村莊環境
去高處 To be high
山雀之家的主人,是曾經拜訪過台上之家的客人。第一次見麵,主人就向我們表達了,對台上之家開闊視野的喜愛;反複囑托,也希望擁有一處可以在高處看風景的台子。我想,去高處,這仿佛是人們關於建築某種潛藏的願望。無論人們最早關於家的想象(Primitive hut),眾多理論的根基,或者流傳最廣泛的建築傳奇(Tower of Bable),其中總有一個源流指引我們向高處去。遠離地麵上的秩序,威脅,和由此產生的焦慮。如果說建築對人們的庇護換來的是身體和精神上的規訓,那麼去高處,自由便會重新降臨。
∇ 區位分析圖
∇ 設計生成圖
衝突 Conflict
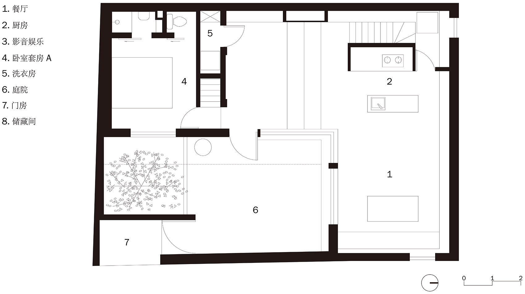
在這個低矮狹小的場地中,我們的設計任務是要建造一處良好體驗的山中住處。其中包括三套獨立衛浴的臥室,以及寬敞實用的公共空間。把165平方米的房子,塞進這100平方米的場地中去。建築物拔地而起無可避免,如何操作一座垂直發展又適應所在環境的房子,這也是我們此次關於“連貫性”實驗的特征和前提。
美人與張飛 Beauty and Warrior
我們最初試圖保留木結構舊有房舍,用局部加建鋼結構輕建造的方式,來削弱高大體量對鄰裏周遭的壓迫感。然而幾輪方案後,兩套結構體係的衝突日漸明顯。人們好像在一係列梁柱森林的夾縫中生活。
∇ 結構模型
舊有建築被迫放棄,在原位置上建造一個同樣的體量,統一輕型建構體係。整體看起來,依然是在原有體量上疊加一個新的形狀。這也就成為建築最終的形態來源。這一過程讓我們想起傳統相聲中的橋段:在扇麵上畫美人,最終詞不達意,索性改成張飛。我想,這種基於連貫性思考中的轉折仿佛生動又有效。
坡 Slope
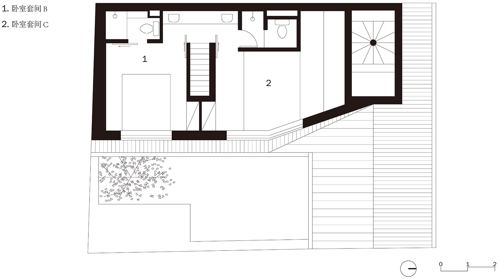
我們在場地中保留了一個4米乘5米的小院子。參照場地內外的其他建築形式,西側高聳的建築體量也同步傾斜後仰。在院中,壓迫感消除,隻能感受到一層簷口的高度。這個大斜坡延伸到北側立麵,結合向西的坡麵,形成一個高處的三角形。而北側體量南北兩側的雙坡向西延伸,南側坡麵進入西北體量重疊部分,坡下形成連續完整的公共空間,坡上則被一係列退台式的炕占據形成其中一個臥室。實際上,坡成了公共和私密區域的邊界。坡下是高聳的單層公共單元;坡上是結合南北地麵高差而形成的兩層臥室。相對於穩定的平麵,坡麵是個充滿動態的形態。在這個過程中,身體,行動,光線,空氣的流動也被塑造出來。
擦掉邊界 Blur the Boundary
這種流動性的空間形態與公共區域的內在要求相一致,尤其是在此項目極小的麵積要求下。廚房、餐廳、起居以及影音娛樂室不同的區域之間消除牆壁,完全貫通,邊界模糊。原有場地中南北的高差在影音娛樂室轉化成三階看台。高差代替牆壁變成隱隱的區域邊界。小屋子和小院子之間也盡量設置通告的玻璃,上午的光線透過玻璃窗灑進來,模糊了室內外的區別。不同方向不同位置不同高度,在材料和構造的縫隙中,盡量形成透光的開口。例如山牆上部與坡屋麵之間,來訪者在室內不經意的抬頭,也能看到窗外的遠山。
山雀之家 House of Mountain birds
雖然平麵尺度拮據,坡上坡下的垂直空間卻豐富多樣。兩部陡峭的樓梯,分別在場地的南北兩側把人們的活動貫穿起來。坡下的公共區域,在一層天花最高處開洞,旋轉樓梯和排風的煙道穿過洞口,把公共區域和屋麵觀景平台連接在一起。而南側臥室區域被另一部單跑樓梯連接上下層,動態和靜態的不同場所最大程度的被隔離開。除了坡上坡下,這種在不同區域中上下穿梭的動態,與我們慣常的樓梯間標準層體係有區別。更像林中鳥雀的日常。這也是山雀之家這個名字的由來。
除了地麵到天台之間的坡麵和錯層,陡峭的樓梯連接,山雀之家的另一個特征是逼近極限的尺度感。這集中體現在二層的臥室部分。空間小到無法把洗手盆安排在衛生間內。我們直接把上樓梯口的交通空間,切出一部分,讓給連續的洗手台麵。這樣一來,共用區域和每個臥室內部的邊界曖昧起來。臥室門變成上下不等寬的推拉門。當門關上的時候,異形的門扇與洗手台咬合,臥室內外得以分開。
材料與質感 Material and Texture
一方麵山雀之家的空間策略是對場地極限的回應。另一方麵建構與材料的選擇和搭配也是對有限預算的回應。波形金屬板,鬆木膠合板,乳膠漆和拋光混凝土地麵。都是廉價的材料和做法。屋頂和天花,金屬和木材的對比,材料色澤冷暖的差異,結合雙坡的形態,建築物天然帶來了某種庇護感。坡麵下麵的鋼梁在公共空間中暴露出來,也就不再裝飾變成空間感受的一部分。旋轉樓梯鋼木結合,保證結構安全性的同時,改善鋼材冷峻的表麵。拋光混凝土地麵沒有分縫,也讓公共空間感受上更整體連貫。而院子的圍牆依然保持最原始的石材砌築來呼應所在環境。
∇ 軸測分解圖
∇ 一層平麵圖
∇ 二層平麵圖
∇ 三層平麵圖
∇ 剖麵圖
項目信息
項目名稱:山雀之家 – 自由就是要向高處去
項目類型:獨立住宅
設計方:察社辦公室
項目設計:2021
完成年份:2022
設計團隊:成直,武迪,潘居豪
項目地址:北京門頭溝區齋堂鎮白虎頭村22號院
建築麵積:168㎡
攝影版權:朱雨蒙,成直
結構工程師:高雪梅
客戶:宋帥,王美超
材料:鋁鎂錳波紋金屬屋麵板,鬆木膠合板








































