Palomino Arquitectos被要求為西班牙西南地區的一個家庭建造一個感覺就像“空間可以流動”的家,設計師從液體建築中汲取靈感,並設計了這座優雅且獨一無二的家庭別墅。
如何注入大海的感覺?一個開放、輕柔的運動空間?設計師Alejandro Palomino在聽取了客戶的需求後所麵臨的設計難題。為了給這個6居室的家庭住宅營造出液體般的形式,Alejandro Palomino與APM Mallorca 合作。兩家公司一起將海洋的彎曲圖案融入到建築中,反映了Cop Negret和Malgrat 群島周圍的附近海灣。
為了立竿見影,設計師決定使用對比的表現手法。雖然別墅呈曲線形狀,但構圖主要由線條和邊緣組成。在兩個層次之間可以清楚地看到這種並列。
在一樓,外部由大量的石材和玻璃輔助,在二樓,設計師采用更多樣化的結構組合。立方體、半圓形和對角線融合在一起,創造出令人驚歎的輪廓,既無縫(創造流動)又分離(灌輸個性)。幹淨的白色立麵為建築帶來了統一感,但仔細觀察,就會發現大量對比鮮明的形式在起作用。
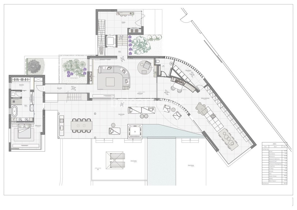
∇ 一層平麵圖
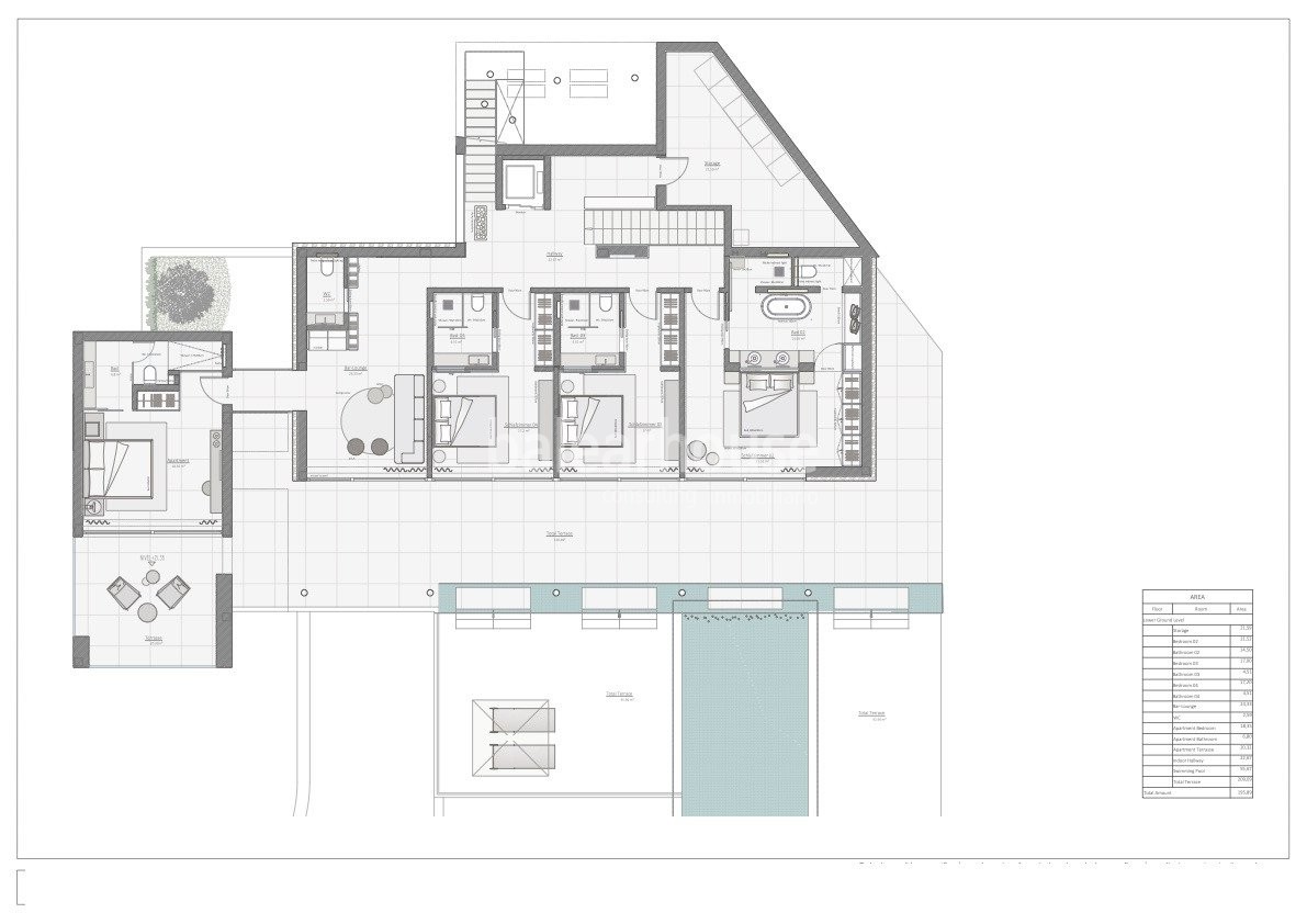
∇ 二層平麵圖
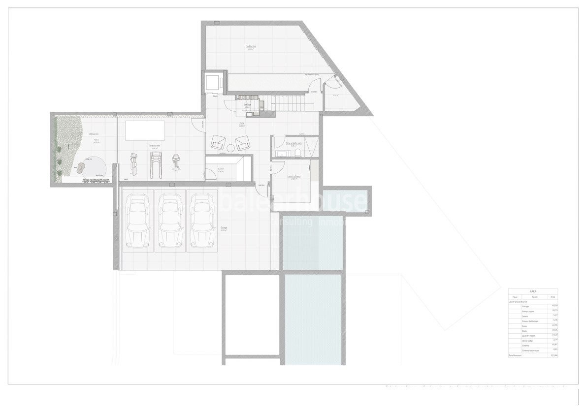
∇ 負一層平麵圖
版權聲明:本站所有文章除投稿授權發布外,其他文字內容均為原創,享有著作權保護,未經許可不得以任何形式進行轉載(包括且不限於:媒體、網站、公眾號等)。所有項目照片/設計圖形版權歸原作者所有。本站部分內容源自網絡公開資源或用戶分享,如若侵犯了原作者的合法權益,可聯係我們進行處理。


































