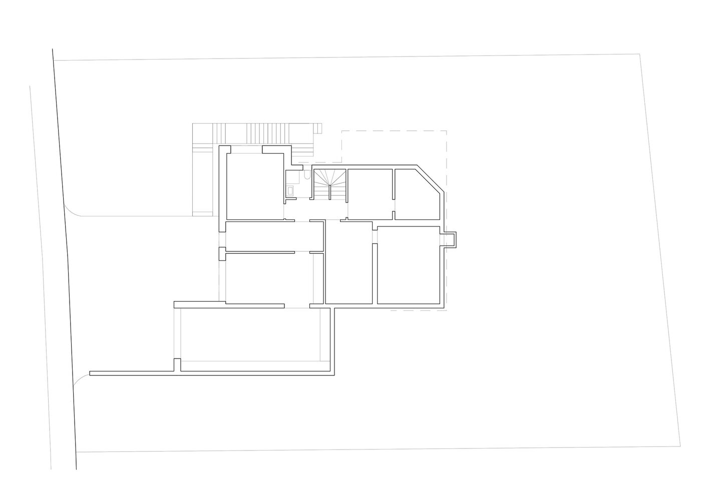
別墅位於瑞士盧塞恩市郊,地勢稍高,可欣賞盧塞恩湖和周圍群山的景色。現有建築存在相當大的能源和建築缺陷,無法滿足客戶的需求,這就是他們決定建造新建築的原因。現有的地下室,包括附屬房間,被保留並擴建,包括一個車庫停車位。現有的花園被拆除並由新建築取代。
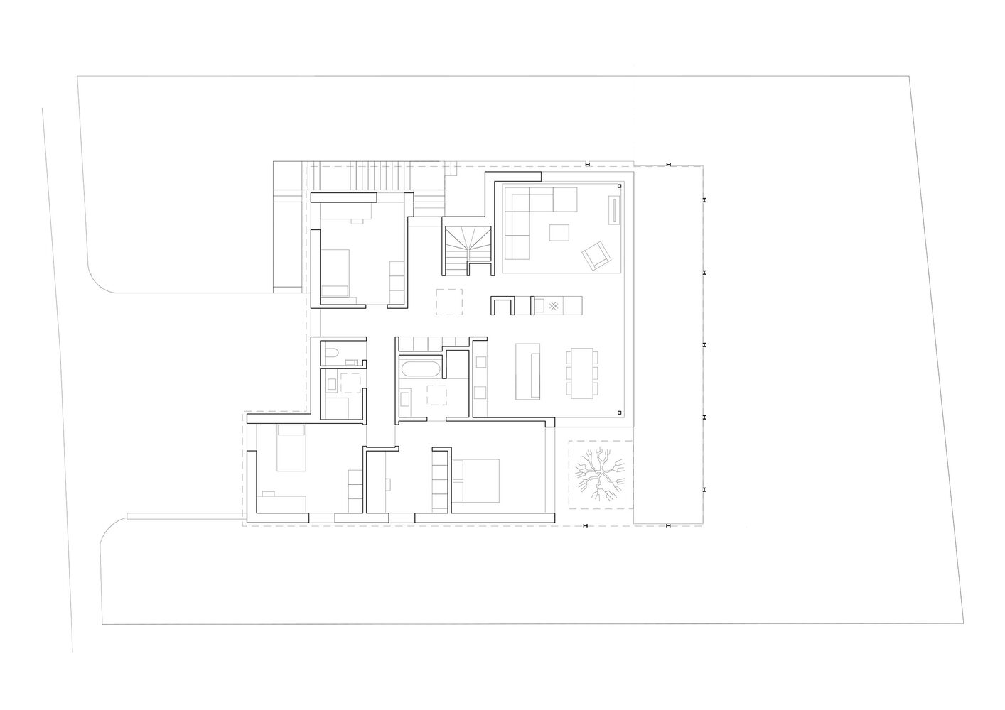
新的建築將容納臥室、廚房和用餐區、寬敞的客廳以及兩間浴室。起居和用餐區全方位透過玻璃欣賞湖景和山景。室外露台及其外部的寬敞天篷和鋼支撐,以及內部庭院,賦予了改建一個亭子般的特色。
內斂的內飾以石灰華、白色抹灰表麵和青銅橡木為特色。橡木作為一種建築材料出現在各種小部件上,例如家具、固定裝置、櫥櫃正麵和欄杆。除了采用熱泵和太陽能係統的可持續建築技術概念外,該設計還強調對材料及其灰色能源和運輸路線的精心選擇。地下室被保留,隻是進行了翻新。花園層采用當地木材建造而成。
∇平麵圖
版權聲明:本站所有文章除投稿授權發布外,其他文字內容均為原創,享有著作權保護,未經許可不得以任何形式進行轉載(包括且不限於:媒體、網站、公眾號等)。所有項目照片/設計圖形版權歸原作者所有。本站部分內容源自網絡公開資源或用戶分享,如若侵犯了原作者的合法權益,可聯係我們進行處理。























