海的女兒:依偎在群山與海灣的懷抱中
幼兒高等師範專科學校是一所培養幼兒教師的職業學校,它以理論教學與實踐訓練並重,為社會培養技術應用型人才。在國家大力發展高職教育的大背景下,項目試圖在規劃組織、教育模式、空間營造等方麵探索職業院校設計的新可能。
幼師學校選址在海邊山上,由於幼兒教育的特殊性,這也是一所女生占絕大多數的學校。而學校所在地區的傳統觀念中,女性地位相對較低,我們非常注重這所幼師學校對於地區的價值。
設計的主題為“海的女兒”,我們以FOREST、FREEDOM、FEMINIE為關鍵詞,通過低影響開發、自由空間流線和女性價值三大切入點,致力於呈現“巨型幼兒園”一般的烏托邦校園。校園提供自然、自由、自主的空間環境,使學生們能夠在這裏恣意揮灑青春、學習技能與實現自我,並借助未來的工作將女性價值傳遞給下一代。
∇ 海的女兒
這裏一年四季氣候溫潤、陽光燦爛,白色建築群靜靜地依偎在群山與海灣的懷抱中。依山而建的校園體量輕盈飄逸、大氣優雅,灰泥為主的立麵樸素大方、肌理豐富,並且能夠耐受海邊驕陽與狂風的考驗。
根據職業學校的習慣,校園規劃將學習分為教學、實訓、生活等多個部分。幼師學校辦學的核心任務是將一群十八九歲的青少年,培養成合格的幼兒教師。與孩子天然的親近,是成為一名合格幼師的必要條件,如果無法感受母親的心情,那不妨回到童年吧。
空間設計更多地照顧女性的視角和審美,為這些學生提供一個安全、溫馨的庇護所,使她們的校園生活足夠快樂和幸福。設計試圖構建一個如童年般自由快樂的烏托邦,在無限自由的氛圍中學習如何成為兒童、引導兒童和教育兒童。規劃打破了傳統大學校園裏的兵營式和行列式,將所有的空間打散、混合、重組、消隱,從而實現使用流線的大自由。
∇ 規劃在自然中的校園
∇ 自然係統
自然是生活的來源,是一切教育的起始。教學區利用場地內唯一一塊相對平坦的場地,打破了傳統校園的行列式,采取與幼兒園相似的自由布局,使幼師教育與幼兒教育充分接軌。建築彼此相連,將高差化解於無形,同時形成錯落精致的多個庭院,這是師生們交流、學習的絕佳場所,保護未來的幼兒教師如孩童般的好奇心和創造力。
∇ 自由的校園
設計以“非競爭,重合作”的教育理念為空間核心,充足連續的共享空間將成為整個校園最具活力的場所。學生們在這裏重歸童年,融入自然,互助互愛,“自由“”平等“”獨立“的觀念滲透到空間與教學之中,並能夠借助她們未來的工作與生活來傳播給兒童。
其他功能則依山而建,設計遵循地勢將操場架空於山頂,減少土方量以降低工程造價。山頂操場位於校園的最高處,“無邊”的設計賦予其擁山納海的氣勢,而食堂就巧妙地藏在操場之下,借助“項鏈”般的坡道同操場相連。在操場跑步的時候,仿佛置身於山林雲海,這種獨一無二的體驗將成為學生們難忘的回憶。
越過樹頂的青蔥綠色,生活區沐浴在整個山林的青翠之中,低密度的“海景方院”靈巧錯動,位於屋頂的“觀海平台”遙相呼應,處處都是好風景。綜合琴房布局在生活區東側,盡端是無邊泳池,無限山海風光盡收眼底。
這是一所依山傍海的學校,海上的雲一天有無數種變化,美麗而多姿。在項目攝影期間,我們的鏡頭記錄下了雲的不同姿態、不同色彩,海上的雲讓人迷醉,物我兩忘。人們常說,“教育是一棵樹搖動另一棵樹,一朵雲推動另一朵雲,一個靈魂喚醒另一個靈魂”。
一朵雲推動了另一朵雲
獻給海的女兒們
∇ 設計階段模型照片
∇ 總平麵圖
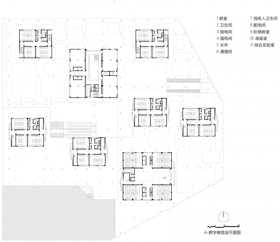
∇ 教學區一層平麵圖
∇ 教學區二層平麵圖
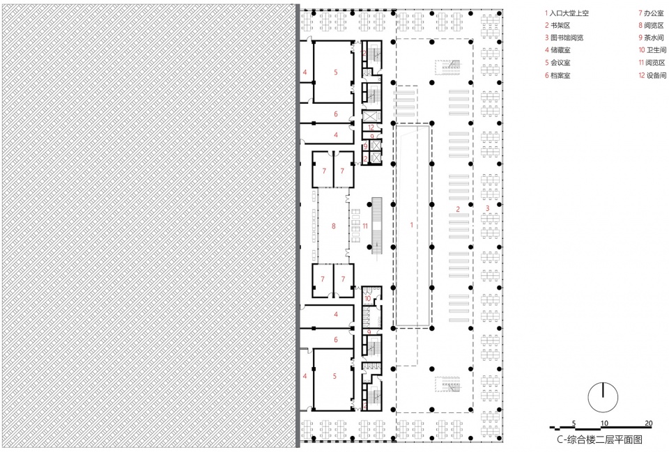
∇ 綜合樓二層平麵圖
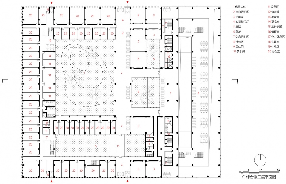
∇ 綜合樓三層平麵圖
∇ 食堂與操場一層平麵圖
∇ 食堂與操場二層平麵圖
項目信息
項目名稱:廣東汕頭幼兒師範高等專科學校
項目地點:廣東省汕頭市濠江區
方案設計單位:立木設計
項目經理:郭嵐
主持設計:劉津瑞、鄒明溪
方案階段團隊:朱嗣君、李偉輝、高雪瑩、王婷婷、李佳妍、謝舜冰、李春瑤、張恩東、楊緒倫、謝雪楨、陳餘胤柯、胡笳、葛霖妲、李雨宸、俞純昕
實施階段團隊:李偉輝、劉明昊、程苗
技術顧問:侯秀峰、劉承亮
項目谘詢:廣東暉達工程顧問有限公司
施工圖設計單位:廣東新長安建築設計院
設計顧問:申鵬
設計時間:2019.04-2020.04
建成時間:2021.08
建築麵積:約100000㎡
項目攝影:朱清言
模型攝影:楊鵬程











































