該住宅位於杭州曆史人文濃厚的良渚,選擇在此定居是一種避世離俗,注重自我的生活態度,但舊房原有的室內呈現與我們理想大相徑庭,設計師在原有基礎上進行大量拆除改造。
The residence is located in Liangzhu, a historical and humanistic area of Hangzhou. Choosing to settle here is a life attitude of escaping from the world and focusing on self. However, the original interior decoration is different from our ideal, and the designer has done a lot of demolition and transformation on the original basis.
作為改善型住宅,設計需要在合理地規劃空間及功能之外,還需要呈現空間的品質和藝術性。追求自然觸感、建築內外融合也是DNA邸內設計一直以來貫徹的核心理念,設計師選用了許多天然材料來呈現居住空間的包容性,又通過對材質粗糙和細膩的兩種不同處理,讓距離感和親和力這種矛盾的差異同時存在,這種恰到好處的陌生感正是現代人隔絕生活與工作的屏障,也是對我們所熟悉的都市生活若近若離的新的生活態度。
As an improved residence, the design should not only reasonably plan the space and function, but also present the quality and artistry of the space. The pursuit of natural touch and the integration of the interior and exterior of the building are also the core concepts of DNA. The designer chose natural materials to present the inclusiveness of the living space, and through two different treatments of rough and delicate materials, the contradictory differences of distance and affinity exist at the same time. This appropriate strangeness is the barrier that separates modern people from life and work, as well as a new attitude towards the urban life.
客廳融入書桌功能增加空間的情景多樣性,同時可以更好地聚焦家庭成員在此共同活動。
The living room is integrated into the function of the desk, which increases the diversity of the space, at the same time, it can better focus on the common activities of family members here.
對於孩子在成長階段的家庭來說,需要保證充足的活動動線滿足孩子的嬉戲,為此我們沒有刻意放置地毯和茶幾來確定客廳的功能,而是可自由拆分的沙發模塊,來滿足不同場景的變換使用。
For families with children in the growing stage, it is necessary to ensure sufficient activity lines to meet the children’s play. For this purpose, we did not deliberately place carpets and coffee tables to determine the function of the living room, but a sofa module that can be freely split to meet the changing use of different scenes.
拆除原本陽台的牆體後,沙發後方得到一個活動區域,在這裏可以更加靠近自然和陽光,以滿足午後憩息,亦或者陪伴孩子閱讀或玩耍的情景。
After demolishing the original balcony wall, there is an activity area behind the sofa, where it can be closer to nature and sunlight, to satisfy the sight of resting in the afternoon, or accompany the children to read or play.
拆除後的梁體結構也被保留了下來,並結合金屬陳列架成為空間的裝飾結構。
After the demolition, the beam structure was also preserved and combined with the metal display rack became the decorative structure of the space.
沙發的後方及側麵設計了許多陳列的隔板,用於放置書籍或陳設;紅色天然石材的運用,與沙發的藍色麵料形成鮮明的對比,為空間增添了一些生命力。
The sides of the sofa are designed with partition plates for placing books or furnishings,the use of red natural stone contrasts with the blue fabric of the sofa to increase the life force to the space.
來自B&B ITALIA的Tufty-Time係列沙發可以通過拆合底部的連接件,實現自由變化組合。
The Tufty-Time series sofa from B&B ITALIA can be freely changed and combined by disassembling the connecting pieces at the bottom.
米白色的萊姆石由客廳一直延向餐廳,將原本被過道分離兩個空間重新組合起來。
The white limestone extend from the living room to the dining room, reuniting the two Spaces that were separated by a corridor.
石材和木材的輪廓線有序地遞進,緩解視覺上的疲勞感。
The outline of stone and wood are orderly and progressive to relieve visual fatigue.
餐廳吊燈是來自Louis poulsen的Enigma 425,它通過不同大小的環狀,將光源逐步遞進到桌麵,呈現出柔美的間接照明,其設計師內山昭一一直致力於創造無眩光的間接照明燈具,讓物體變得美麗,讓人們感受到物體的質感和深度。
The dining room ceiling lamp is from Louis Poulsen’s Enigma 425. It gradually advances the light source to the table through the ring shape of different sizes, presenting a soft and beautiful indirect lighting. Designer Shoichi Uchiyama is committed to creating glare free indirect lighting fixtures that make objects beautiful and give people a sense of texture and depth.
獨立的入戶玄關,設計了不同大小的收納櫃以及獨立的儲物間,來增加未來居住的可持續性。
The separate porch is designed with storage cabinets of different sizes and independent storage space to increase the sustainability of future living.
我們將原本常用於室外的黑色萊姆石鋪設滿整個過道以及臥室內部,讓人仿佛走過林間汀步,來到無人的靜謐之地,以此隔絕身後的喧囂。轉身處的淨衣區也讓情景轉換增添了一份儀式感。
We covered the entire corridor and the interior of the bedroom with black limestone, which is usually used outdoors, to make people feel like walking through the woods to a quiet place where no one is left behind, so as to isolate the hustle and bustle behind you. The clean clothes area at the turn also adds a sense of ritual to the scene transition.
在材質的統一後,立麵的功能變換並沒有打亂某種秩序。
After the unification of the material, the functional transformation of the facade does not disturb a certain order.
∇ 產品 | Product
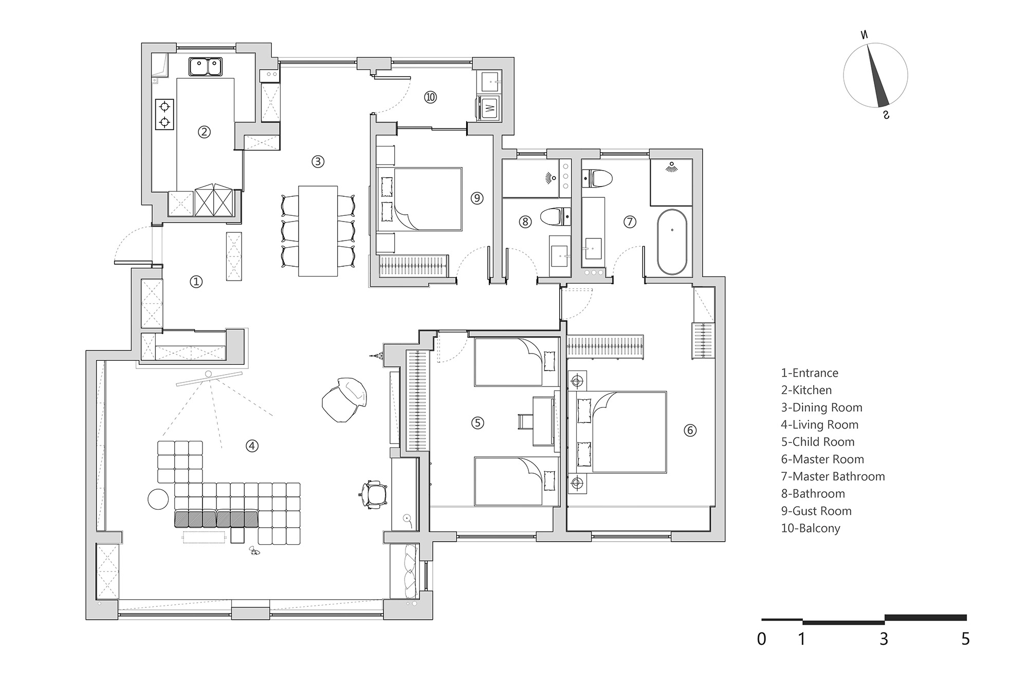
∇ 平麵圖 | Plan
項目信息
項目名稱 | 良渚住宅 Liangzhu Residence
項目地點 | 中國杭州
項目麵積 | 180㎡
設計時間 | 2021.05
主案設計 | 夏偉
軟裝陳設 | 楊晨愉
空間攝影 | 川河映像




































