“不以課本為世界,而以世界為課本。”
這句話是在設計工作開始前,學校的老師們告訴我們的,用以闡述不受拘束思考的重要。
作為設計者,我們對此深感認同,並由此意識到:我們創造一個什麼樣的世界給孩子,不僅會影響到他們如何來認知這個世界,還會影響到他們如何去創造未來的世界。
語境 | Context
這座校園位於北京東四環外一片發展建設方興未艾的城市社區裏,這裏多年前曾是一座大規模的化工廠,城市高速發展的巨大推力使其外遷,這裏則成為了數以萬計市民的新居所。
∇ 區域位置圖
在這裏設計並建造一座72班規模的十二年一貫製基礎教育校園,我們需要回應的,一方麵是當下教育的變革倡導以學習者為中心,並由此對校園空間提出的全新的訴求,另一方麵是由周邊大量、重複、高密的住宅所形成的相對單調的社區現狀。
∇ 用地內部換填坑和周邊住宅
生成 | Generate
在嚐試爭取最為優化的光照條件、功能架構、場地適配之後,我們得到的是一個前後錯動、虛實相間、相互連通的解答。
After trying to achieve the most optimal lighting conditions, functional layout, and site adaptation, we got a staggered, coherent solution.
∇ 設計生成
單元 | Learning community
和以往不同的是,我們采用組團式的布局來處理基礎教學單元,營造學習社區,帶給學習者家的親切感、鄰裏的共生感,這些將極大的促進交流和共享,當下教育的變革促使我們重新站在教學的視角上,根據其邏輯性和前瞻性來組織空間。
∇ 小學部和中學部組團學習社區
疊合 | Superposition
除了常規課程活動為主的基礎教學單元,一座校園的教學功能還包含由實驗、藝術、社團等活動組成的公共教學部分。
在場地大小限製、日照間距和時效的共同作用下,我們把以上二者進行疊合布置:校園的二至四層為基礎教學單元,一層和地下一層為公共教學層(公共教學部分),這樣一方麵學生日常往返於不同的功能之間更為便捷,另一方麵混合使用的公共教學層可以打破邊界,為互動創造更多機會。
界麵 | Interface
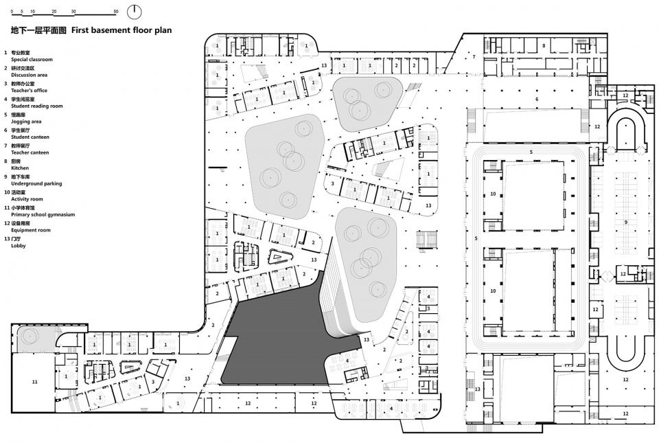
公共教學層涉及校園裏三個最為活躍的界麵——一層、地下一層和二層屋頂活動平台——三者漫延至整個校園,並由此把公共性帶到校園的每一個角落,同時屋頂活動平台不僅拓展了校園的室外活動場地,也對高樓層學生的課間十分鍾活動更為友好。
地下 | Underground space
在設計介入之前,為了清除原有化工廠受汙染的土壤,人們在校園用地範圍內挖掘了深達5-10米的換填坑。此外,項目用地的規模顯然無法匹配其周邊激增的適齡受教育者就近入學的巨大需求。
∇ 南北向剖透視圖
∇ 東西向剖透視圖
於是我們對換填坑進行利用以拓展校園空間,將公共教學部分和體育、遊泳、觀演、餐廚等功能置於地下,其中的大型場館可以在不幹擾地上運行的前提下麵向社區各自開放,其毗鄰的地下停車場也為開放提供支持。
我們非常關注校園和社區的粘連度,並致力於將校園化身為社區文化生活的重要節點。
庭院 | Courtyard
由於地下空間大量存在,我們通過設置下沉庭院來解決它們的采光通風和消防疏散問題,同時希望下沉庭院能給人以良好體驗——通過連通、架空、造景等措施,消除地下的封閉感和壓抑感,使庭院成為整個校園的積極回饋。
∇ 庭院俯視
我們嚐試給予不同庭院以不同主題,如露天劇場、校園市集、休憩運動、流動展覽等,這樣庭院可以更加主動的融入使用者的日常。
∇ 插畫 -《校園庭院使用指南》
交流 | Communication
能否有效的促進人與人之間的交流,是我們判斷一個空間優劣的依據之一。
我們希望這座校園是去中心化的,扁平的,其空間可以兼具透明性和流動性,使身處其中的學習者體驗到一種不同於他處的開放和自由,從而可以無拘無束的互動、溝通、碰撞、協作和分享,讓學習隨時隨地的發生。
激發 | Inspire
這座校園更多的是提供一種平台,將空間的支配權更多的還給學習者,以激發他們的思考和創造。
我們會盡可能的去營造具有包容性和通用性的空間,空間是多義化的,而非具體功能的預設,教學也是沒有定式的,是漸進的,我們期待空間伴隨教學一起“演變和生長”,並由此生發更多的可能,進而促使校園由空間向內容轉變。
綠色 | Green
我們相信,低能耗設計的第一步應該是建築自身空間架構的節能:充分利用自然光線和空氣流通,更加緊湊聚合的空間型體,將高能耗水平的大型場館置於地下……都給予校園一種良性的節能基調。
∇ 細部構造
在此之上,校園還采用了清潔能源(太陽能和空氣源熱泵等)、蓄能種植屋頂、節能圍護結構、雨水收集、循環水再利用、智慧校園樓宇控製等措施,用以尋求一種使用者和自然更為健康的相處模式。
改變 | Change
我們希望這座校園在麵對建設中的城市時,可以成為對周邊同質化社區樣態的一種溫和對峙與積極調劑,在麵對變革中的教育時,可以呈現一種不同於以往的柔軟、彌漫、融通和自由,以傳遞溫度和激勵學習。
我們無意執著於以上改變的結果,而是嚐試借由改變釋放一種善意——希望這座校園可以被看作是一種態度,也是一種行動,可以為學習者和社區注入力量。或許改變本身即為一種正麵,期待更多的人將更多的改變帶到我們身邊。
∇ 孩子們筆下的這座校園
∇ 總平麵圖
∇ 一層平麵圖
∇ 地下一層平麵圖
∇ 地下二層平麵圖
∇ 二層平麵圖
∇ 三層平麵圖
∇ 四層平麵圖
∇ 屋頂平麵圖
項目信息
項目名稱:清華大學附屬中學廣華學校
項目類型:教育建築
設計方:北京市建築設計研究院有限公司
項目設計:2016
完成年份:2021
主創建築師/項目總負責人:王小工、王錚
建築設計:陳愷蒂、賈文若、楊凱、李少鵬、何亞琴、盧植、張丹明、高誠、楊晨、丁洋、周夢
結構設計:楊勇、陳棟、孫珂、錢鳳霞、金漢
設備設計:吳宇紅、曾若浪、吳學蕾
電氣設計:張力、陳婷
項目地址:北京市朝陽區廣華新城
建築麵積:96751㎡
攝影版權:王錚、周夢、陳愷蒂、李少鵬
客戶:清華大學附屬中學廣華學校




















































