項目旨在為摩洛哥著名畫家 Abdelkebbir Rabi 先生擴展藝術工作室。項目位於卡薩布蘭卡的舊殖民中心區,靠近本市最大的公共公園和宏偉的聖心教堂。Rabi’ 先生慣於使用雙色畫技法,在抽象和具象之間切換自如。由於他所有的工作都圍繞著光影展開,業主唯一的要求就是運用自然光線和天然材料創造一個不會幹擾工作的中性的環境氛圍。
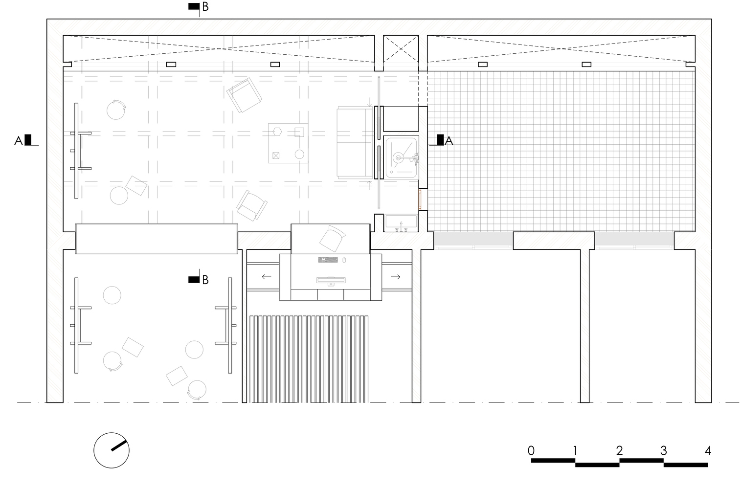
這個空間原是一個不常用的老舊設備平台,設計概念是通過一個遮蓋一部分平台的曲麵玻璃頂來容納藝術家工作所需要的全部物件。指導提案中原本包含一個沐浴在漫射光中並可以讓畫家舒適工作的空間。但由於場地的可及性使得項目並不容易實現。該空間包含一個工作區域,一個擁有所有繪畫材料的大工作台,一個包含畫家藏書室的辦公空間,一個客廳,一個儲藏間和一個浴室。
所有的頂棚都由在車間預製好的粉末塗層金屬通過現場組裝而成。頂棚所有的鋼化玻璃都經過磨砂處理,來散射光線使陰影消失,這樣的環境對畫家藝術工作室非常重要。所有的鑲木地板都由橡木加工而成,而工作台和它厚重的基座(25cm)則都是使用當地產的洞石製成。書桌和書架都被設置在滑軌上,成為了儲藏室入口的移門。
∇ 平麵圖
∇ 剖麵圖
∇ 模型圖
版權聲明:本站所有文章除投稿授權發布外,其他文字內容均為原創,享有著作權保護,未經許可不得以任何形式進行轉載(包括且不限於:媒體、網站、公眾號等)。所有項目照片/設計圖形版權歸原作者所有。本站部分內容源自網絡公開資源或用戶分享,如若侵犯了原作者的合法權益,可聯係我們進行處理。























