上海圖書館東館以中國古代文人學者青睞的太湖石為靈感,展現了創意、協作和公共藝術對城市的重要意義。圖書館80%的建築空間致力於推動和開展市民活動。
中國上海——上海圖書館東館,全球人口第三大城市的新地標和文化目的地,現已開幕。由Schmidt Hammer Lassen Architects(以下簡稱為“SHL建築事務所”)設計的上海圖書館東館是世界上最大的新建圖書館之一。作為一個以藝術、文化和科技驅動知識分享的平台,上海圖書館東館是當代圖書館飛速發展的成果體現。與此同時,它致敬了中國的文化傳統——太湖石——由此,文化遺產在空間中得到傳承。
∇ 場地位置
∇ 設計示意
“設計這座對上海市民充滿重要意義的文化地標,我們的理念是‘從書籍到交集’—— 一個能夠將人們聚集在一起的空間。這是城市對市民的饋贈。”SHL 建築事務所董事、設計總監Chris Hardie 說。
林中璞玉
自晉朝起,太湖石就深受古代文人學者的喜愛,並為他們的創作提供了源源不斷的靈感。太湖石“皺、漏、瘦、透”的形態是中國古代哲學“道法自然、天人合一”的體現。上海圖書館東館的建築設計、室內設計和功能劃分都能讓人們自然而然地聯想到中式園林中的奇山異石:建築主體就像一塊被雕琢過的玉石,漂浮在一片翠綠的樹冠之上;內部空間猶如太湖石般相互連通,是人們探索和分享知識的源泉。
∇ 草圖
“上海圖書館東館的設計重新詮釋了中華文化中一種重要的美學符號,對建築師來說這是一次非常珍貴的機會。”項目建築師林婧說道:“古時候,學者們聚集在太湖石周圍觀察它們的竣削的孔穴、斑駁的紋理和奇特的造型,凹凸曲折、玲瓏透空的石頭在不同角度下呈現不同的畫麵,讓人浮想聯翩。今天,讀者在圖書館相互交錯的空間中行走、閱讀、思考,也將獲得類似的啟發和體驗。”
圖書館的外觀以含蓄的手法向印刷術致以敬意。建築外立麵的抽象圖案選自15張大理石紋路的照片,通過數碼打印玻璃技術被“裝訂”在圖書館“封麵”。光線穿過這些打印而成的半透明玻璃立麵,照亮了內部空間——就像讀到一本好書,點亮了心靈。
以人為本
上海圖書館東館不僅擁有大量藏書,每年還將為400多萬訪客舉辦200餘場講座和上千場的各類學術活動。在這個11.5萬平方米開放、靈活和互聯的空間裏,知識通過各種形式被傳授和分享。
宏偉的中庭空間使用竹子、橡木和水磨石營造出開闊而溫暖的氛圍,熱情地歡迎到訪的讀者。不同樓層不同位置的中庭空間層疊交錯、盤旋而上,七個樓層從視覺上被連接在了一起。首層大廳就像一個社區集市,有書店和咖啡廳,還可以舉辦各類活動和展覽。
∇ 動線示意
∇ 草圖
“圖書館是眾多社區的精神支柱,已然成為我們生活中密不可分的一部分。這就是為什麼我們將其稱為‘第三空間’——圖書館是一個介於家和辦公室之間的高度個人化的場所。”Chris說道。
從外部看,圖書館似乎“漂浮”在兩個功能體塊之上:其中一個包含了五座報告廳、展覽和活動空間,另一個則為少兒閱覽區,有內庭院和戶外遊樂空間。體塊頂部是戶外景觀閱覽區,挑簷能夠保護讀者免受雨淋。讀者在學習知識之餘,還可以欣賞到上海標誌性的陸家嘴天際線和市區內最大綠地——世紀公園的全景。
“上海圖書館東館的定位是新一代的智慧複合型圖書館。這裏不僅是‘藏書樓’ ‘借閱室’,更是開放的文化藝術空間。”上海圖書館館長陳超說:“展覽、講座、音樂、藝術、科技體驗甚至進入上圖東館本身,就是一種‘閱讀’。”
藝術連接社區
藝術家在設計過程中發揮了不可或缺的作用。十位來自全球各地的當代藝術家,包括徐冰、穀文達、申凡、鄭重賓、艾米莉·弗洛伊德、倪有魚、劉文瑄、普拉默&史密斯、馬興文以及楊振中,為館內創作了多件場域定製的永久藝術作品。由國際藝術公司與藝術製造商UAP(Urban Art Projects)策劃並實現,上海圖書館東館藝術項目以“中國文化發展中不斷演變的文字載體”為脈絡,這些作品將在公共空間中發揮更深遠的意義——激發讀者、鼓勵交流、讚美知識。
UAP創意總監Dane Currey表示:“上海圖書館擁有具前瞻視野的公共藝術願景,即創造一係列無與倫比的藝術作品,以充分匹配這個致力於學術研究、公共教育和檔案儲藏的知識殿堂,這也是我們的核心目標。”他率領團隊完成上海圖書館東館藝術項目的策劃與交付。“在這段從藝術概念出發、不斷嚐試到最終實現的旅程裏,能夠見證館方及建築師的不懈努力,與藝術家並肩完成全新創作,對我們而言,這是莫大的榮幸。”
圖書館設計的領導者
上海圖書館東館的建成對SHL建築事務所來說具有雙重裏程碑式的意義。首先,它是SHL建築事務所自2011年在上海開設工作室以來十多年成就的集大成體現。2018年,SHL建築事務所與Perkins&Will全球事務所合並後,上海工作室的規模如今已經擴大至100餘人。其次,從丹麥皇家圖書館和丹麥奧胡斯Dokk1圖書館,到加拿大哈利法克斯中央圖書館、新西蘭基督城中央圖書館,再到澳大利亞維多利亞州立圖書館,SHL建築事務所設計了諸多具有全球影響力的圖書館建築。上海圖書館東館的建成則再次展現了SHL建築事務所在圖書館設計方麵的全球領導地位。
“我們設計圖書館的創造性方法,建立在我們將圖書館視為一個融入當地文脈、包容、多元的文化機構。”SHL 建築事務所合夥人、設計總監 Elif Tinaztepe 說:“業主和社會各界友好人士是我們真正的合作夥伴,幫助我們將願景變為現實。我們邀請包括市民、企業、政府、學者、曆史學家以及學生在內的社會成員參與到項目各個階段,我們秉承開放、真誠的對話,共同應對項目各個階段出現的挑戰。”
SHL建築事務所目前正在中國開展多個文化項目,包括位於上海西岸的兩個表演藝術中心和北京城市副中心的綠心大劇院,這些項目都即將建成並在未來幾年內對公眾開放。
∇ 模型
∇ 屋頂層平麵圖
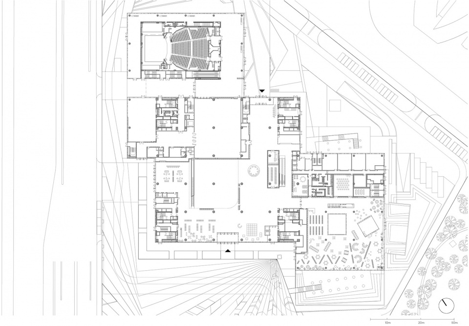
∇ 一層平麵圖
∇ 二層平麵圖
∇ 三層平麵圖
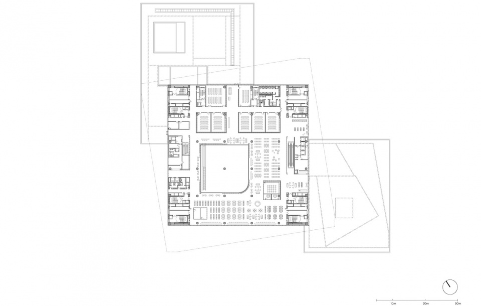
∇ 七層平麵圖
項目信息
建築設計:SHL建築事務所(Schmidt Hammer Lassen Architects)
項目地點:上海市浦東新區合歡路300號
開始時間:2016年4月
開工時間:2017年9月
封頂時間:2019年9月
竣工時間:2022
開館時間:2022年9月
建築麵積:11,5000平方米
基地麵積:3,9500 平方米
設計範圍:建築設計、室內設計
功能:圖書借閱、展覽、 教室、報告廳、零售、辦公、停車場
設計總監:Chris Hardie
設計團隊:陸蓉、林婧、Simon Persson 、Bartek Winnicki、馮曄、劉思聰、鄧思穎、董良、何曉舒、孟醒、趙琦、吳曌、胡嵐清、劉雪薇、朱方舟、Morten Schmidt、Lukasz Truchalski、Trushit Vyas 、Steven YN Chen 、Morten Nielsen 、Sebastiano Cattiodoro 、Steven Morten、Tade Godbersen 、陳超、毛蓓宏、賈嫻靜、盛佳、陳思
業主:上海圖書館
攝影師:©RAWVISION Studio,©田方方, ©魯哈哈
視頻:©RAWVISION Studio
合作方
合作建築師:上海建築設計研究院有限公司
景觀設計:ASPECT Studios
結構顧問:Schlaich Bergermann Partner(SBP)
機電顧問:Buro Happold
可持續設計顧問:transsolar
標識設計顧問:2 x 4
燈光顧問:LEOX
立麵顧問:和甲幕牆設計DHD,上海建築設計研究院幕牆所,DS-plan
施工方:上海建工四建集團有限公司
藝術家: 徐冰、申凡、穀文達、鄭重賓、楊振中、倪有魚、劉文瑄、馬興文、艾米莉·弗洛伊德、普拉默&史密斯
藝術總策劃和落地服務:尤艾普(上海)藝術設計谘詢有限公司(UAP)


























































