項目概要 Overview
台嶺鄉位於江西省吉安市永新縣,中國革命的搖籃——井岡山下,是一個擁有約12000人口的農村。永新縣氣候溫暖,自然條件得天獨厚,擁有數個自然保護區。本案是對台嶺鄉的一個綜合文化站進行公益改造。
Tailing is a rural village with a population of around 12,000, located in Yongxin County, Ji’an, Jiangxi Province, at the foot of the cradle of the Chinese Revolution – Jinggang Mountains. Yongxin County is blessed with a mild climate and rich nature and has a number of nature reserves. This project is a public benefit renovation of a comprehensive cultural station in Tailing.
改造前,這個500㎡左右的綜合文化站被村裏的居民用作看書、打麻將和喝茶的活動場地。另一方麵,文化站緊鄰住宅區,周圍環境雜亂無章,場地的設計和空間沒有有效地發揮作用。此外,在過去的幾年裏,村裏的人口一直在嚴重下降,文化站的使用者也在減少。我們計劃將該文化站改造為當地的圖書館和社區中心。
Before the renovation, this comprehensive cultural station of about 500㎡ was used by villagers as a venue for reading books, playing mahjong, and enjoying tea. The cultural station was adjacent to a residential area, the surroundings were cluttered, and the design and space of the venue did not function effectively. In addition, the population of the village has been severely declining over the past few years, and the number of users of the cultural station was also decreasing. We planned to transform the cultural station into a local library and community center.
本案由台嶺鄉鄉賢劉佩英女士(現任職於中版集團)為回饋故鄉而發起,COLORFULL昱景設計團隊聯合策劃,並提供選址、設計、監理的全過程公益服務。
This project was initiated by Ms. Liu Peiying (now working for China Publishing Group), a native of Tailing Township, to give back to her hometown, and COLORFULL DESIGN team jointly planned and provided the whole process of site selection, design and supervision of public welfare services.
設計理念 Design Concept
台嶺鄉隻有極少的公共設施,缺乏供當地居民交流的場所。用地周邊有村中心廣場、診所、健康活動中心等公共設施,中心廣場周圍有住宅樓。為此,我們在設計中充分考慮到了對周邊居民的影響。
Tailing has few public facilities and lacks places for villagers to interact with each other. Public facilities such as the central square, a clinic, and a health activity center are located around the site, and houses surround the central square. Therefore, the design was carried out with full consideration of the impact on the surrounding residents.
在設計之初,我們便設想了一個田園詩般的開放設施,融入農村豐富的自然環境,並對當地特有的自然材料和既存空間進行再利用。本案的主題並非建設一個封閉的圖書館,而是打造一個向公眾開放的“堂”,使人們可以自發地在此聚集,由此為居民們提供一個老少鹹宜的學習、交流、娛樂和休閑的場所,為他們的日常生活增添一些小小的幸福感。
From the outset, we envisioned an idyllic and open facility that would incorporate the rich natural environment of the countryside and reuse the natural materials and existing spaces that are unique to the area. The theme of the project is not to build a closed library, but to create a “hall” where people can gather spontaneously, thus providing a place for all ages to learn, interact, play, and relax, adding a sense of well-being to their daily lives.
細部說明 Details
本案重點是與場地東部廣場的關係。現有的混凝土立柱間距為4米,我們在立柱的網格中設置了大型的階梯,以此來打造一種從大階梯上層延展到東部廣場的連續性空間體驗。此外,地麵的材料與顏色也是連續的,當落地窗完全打開時,室內和廣場之間的界限會自然地融合在一起,形成“無界”的空間感。
The focus of this project is on the relationship between the site and the square on the east. The existing concrete columns are spaced at 4m apart and we set up a grand staircase in the grid of the columns as a way of creating a continuous spatial experience extending from the upper level of the grand staircase to the eastern square. The flooring is also continuous in material and color. When the floor-to-ceiling windows are fully open, the edge of the interior and the square will naturally fade away, creating a spatial sense of “borderlessness”.
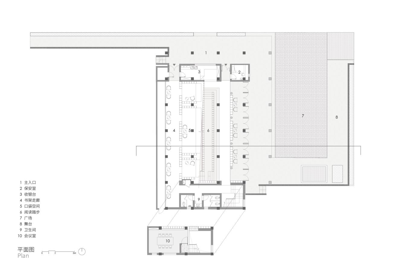
建築在平麵上規劃為三個區域:入口空間、大廳空間與功能空間。通過結構的設計,坐在大階梯處,廣場的景色一覽無餘。功能區在一樓配置了衛生間,二樓配置了高私密性的會議室。
The building is planned into three areas: the entrance space, the hall space, and the functional space. Through the design of the structure, the view of the square can be seen from the grand staircase. The functional area is equipped with a washroom on the first floor and a private meeting room on the second floor.
∇ 平麵圖
大階梯 Grand Staircase
大階梯有足夠的寬度,麵對著廣場而設,宛如劇院的座位麵向著舞台。階梯本身是設計為書架使用的。此外,在階梯下的空間裏還設計了山洞狀的私人閱讀空間。
The grand staircase is wide, facing the square, like the theatre seats facing the stage. The staircase itself is designed as bookcases. In addition, cave-like private reading spaces are set inside the steps.
天花 Ceiling
弧形的天花板將三個區域連接起來。天花板的曲麵反射來自天窗的自然光,使整個空間更加明亮。天花板的材料采用了鋁製百葉,上麵塗有用當地土壤製成的灰漿。通過弧形天花,呈現出了一個既有質感又柔和的大廳空間。
A curved ceiling connects the three areas. The curved surface of the ceiling reflects the natural light from the skylight and brightens the whole space. The ceiling is made of aluminium louvers coated with mortar made from local soil. The curved ceiling helps present a textured and soft hall space.
願景 Vision
中國的城市與農村,在生活和環境方麵有著相當大的差異。我們希望通過公益項目的設計為鄉村的建設盡綿薄之力。
In China, there is a considerable difference between urban and rural areas in terms of life and environment. We hope to contribute to the construction of the countryside through the design of public welfare projects.
“撥雲見日,開雲見天”的開雲書房曆時16個月終於圓滿落成,我們在現場收獲了孩子們滿足的笑容。希望開雲書房能成為村民們休憩與交流的地方,也希望在這裏學習和玩耍的孩子們健康成長。
It took 16 months to complete the Kaiyun Library. We were so delighted to see the smiles of the children on the spot. We hope that the library will become a place for villagers to rest and communicate, and that the children who study and play here will grow up healthy and joyful.
∇ 剖麵圖 Sections
項目信息
項目名稱:開雲書房
項目地址:江西省吉安市永新縣台嶺鄉
設計方:COLORFULL 昱景設計
項目規模: 500㎡
項目設計 & 完成年份:2022
設計指導:趙宗陽、小野良介
建築方案設計:川合豐
建築深化設計:林佳史
室內方案設計:川合豐
室內深化設計:張凡星、趙英倫、秦誌偉、朱麗豔
攝影版權:山兮建築空間攝影
客戶:台嶺鄉鎮政府
材料:科定板、紅磚、實木地板、深灰色鋁板、夯土鋁管
Project name:Kaiyun Library
Project location:Tailing Township, Yongxin County, Ji’an City, Jiangxi Province
Design:COLORFULL YUJING DESIGN
Project scale:500㎡
Design year & Completion Year:2022
Design Guidance:Sunny Zhao, Ryo Ono
Architecture Schematic Design : Yutaka Kawai
Architecture Design Development : Yoshihumi Hayashi
Interior Schematic Design : Yutaka Kawai
Interior Development Design: Fanxing Zhang,Yinglun Zhao,Zhiwei Qin ,Jolie Zhu
Photo credits:Shanxi studio
Clients:Tailing Township Government
Brands / Products used in the project:Keding board, red brick, solid wood floor, dark gray aluminum plate, Stucco aluminum extrusions








































