“北冥有魚,其名為鯤。鯤之大,不知其幾千裏也。化而為鳥,其名為鵬。鵬之背,不知其幾千裏也。怒而飛,其翼若垂天之雲。是鳥也,海運則將徙於南冥,南冥者,天池也。”——莊子
潤品薈乃華潤水泥對外展示人造石產業的重要窗口,“潤品”取自“華潤”與“品質”,意為華潤產品的精工匠製;“薈”即掇菁擷華,代表精華薈聚。
∇ 鳥瞰圖
依循其品牌發展曆史與文化基因,前川設計在傾注藝術肌理的同時,兼顧可持續發展理念,以“鯤鵬”哲思為線索貫穿全局、構形築意,衍造出得以凝矚品牌內核精神、窺見未來秩序的無限空間。
前廳以簡約色係奠定空間基調,服務台擷取鯤的意象形態,與地麵倒影鯤的形態相呼應,流暢線條勾勒遊弋之鯤,牽引出空間敘事的開篇。
靜默佇立在一側的原石則是品牌起源的初心隱喻——“以石立世”,從石材為起點,不斷雕琢其多維可能性,貫徹取之自然、回歸自然的綠色生態品牌主張。
琉璃石落綴而成“鯤”,色係的過渡與錯落起伏跌宕出漂遊姿態,寓意向上的精神和力量。而海浪與鯤則象征著華潤為潤品提供的創新動力,將品牌文化訴諸於空間故事。
鬥拱層層,水影重重,山石懸掛,與“鯤”一同在遼闊意境之中靜謐巡遊,尋聲而去,掠過人文渲染的藝術洞天。
虛實倒錯間,豁然開朗,雲上躍鯤“怒而飛,其翼若垂天之雲”為場域注入動勢的同時顯著回扣空間主題。
延續空間整體調性,以克製利落的設計筆觸描摹全局。保留原始建築的環形走廊,以偏核心筒設計,增加複合機能和使用麵積。上層為辦公空間,下層為展廳,內部增設樓梯增強溝通效率,以SU模型對樓梯與空間進行尺度推敲,而旋轉樓梯的弧度側邊如何以人造石方式完美呈現,是設計過程中的一大難題。
基於人造石的可塑性、精湛的技藝水平與設計團隊的精細考量,確定每一塊人造石的彎曲程度和各塊體之間的銜接關係,讓人造石與骨架貼合得嚴絲合縫,最終實現美學邏輯與實用功能的雙重奏。
除此之外,也充分納入建築本身所具有的特質為場所精神和界麵考量。設計團隊延續建築的開敞理念,將現場原有管道進行移位與高度提升,隱藏天花從而打造通透開闊的視覺效果,讓室內與建築有機融合,最大尺度引注天光和視野,憑依光影語彙構建靈動氛圍。
暗夜藍結合透光石與夜光石兩種骨料,前者讓光能穿透石材,後者散發的微光則讓空間更為深邃,兩相加持使得空間在不同光照的狀態下呈現不同的空間效果。
整個展廳以大量不同品類的人造石進行打造,通過對分子結構的研發與激活改變對水泥粉進行無害處理,有效利用天然石的不規則小料,其零排放和可回收利用的環保特性貫徹著可持續發展的設計理念。互動展區更借由智能化係統,以觸摸屏實時且直觀地生成客戶所選款類石材的骨料信息、參考圖樣及不同業態場景使用效果,憑科技之力鏈接城市未來想象。
以空間敘事鋪陳品牌如鯤化鵬的前世今生,俯仰之間,光影流轉、虛實相生、秩序輪回,覓見人文的浩渺哲思,交疊藝術的豐沛氣韻,終達至自然的和諧律動。
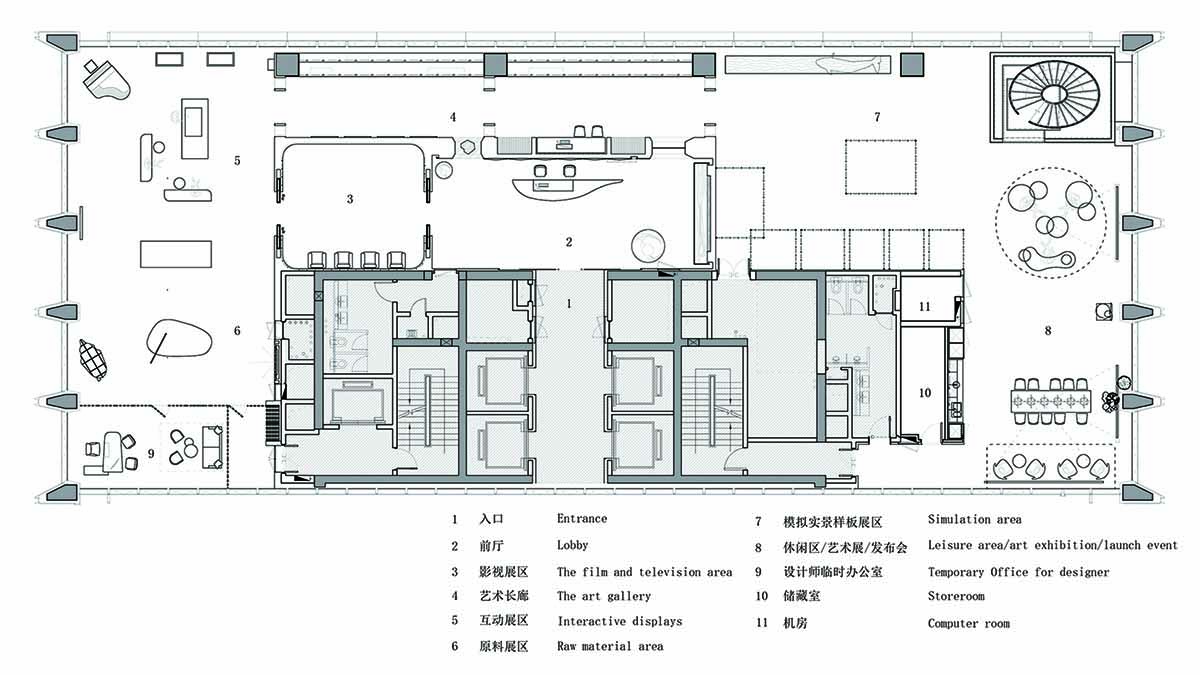
∇ 平麵圖
項目信息
項目名稱:華潤水泥-潤品薈石材藝術展館
客戶名稱:華潤水泥-深圳市潤豐新材料科技有限公司
甲方團隊:王雯、許佳、潘子燕、陰柏成、周子堃、計玲黎、吳倩倩、陳潔龍
項目地點:深圳 南山 大衝
項目麵積:2202平方米
完工時間:2022年7月
設計單位:前川室內設計(深圳)有限公司
Leading River Interior Design (Shenzhen) Co., Ltd.
總設計師:陳偉
設計團隊:許文良、文誌聰、陳浩、陳鳳霞、潘先鋒、陳宇輝、鄧應旺、王磊、張龍
軟裝單位:深圳璞悅陳設藝術有限公司、三人行陳設
智能化單位:深圳市康帕斯科技發展有限公司
施工單位:上海建鄴建築裝飾工程有限公司
合作品牌:潤品人造石/環球石材/Gabriel布料/意大利SOVOIA/Adriatico藝術塗料/富美家Fenix/勵致家私/Milliken地毯/OFFICE歐菲斯隔斷/悅森照明
項目攝影:彥銘工作室













































