位於日本福岡縣博多站以東步行 5 分鍾的聯合辦公空間–Mol.t,由於麵積有限,該空間需要仔細規劃才能有效發揮作用。
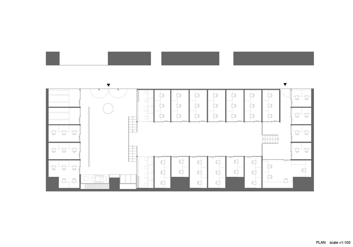
該空間旨在供幾個小型辦公室使用,因此兩個、三個和六個人的工作區被安排在一個盒子狀的結構中。每個工作區的地板下提供了 1400mm高的存儲空間,旨在容納乘員行李的增加或減少,同時讓每個小組有效地使用工作區。
此外,SAKUMAESHIMA計劃在為每個辦公室劃分的區域之外允許各種工作方式,包括休息室、講座、會議室和集中工作的開放式卡位。
∇ 平麵圖
版權聲明:本站所有文章除投稿授權發布外,其他文字內容均為原創,享有著作權保護,未經許可不得以任何形式進行轉載(包括且不限於:媒體、網站、公眾號等)。所有項目照片/設計圖形版權歸原作者所有。本站部分內容源自網絡公開資源或用戶分享,如若侵犯了原作者的合法權益,可聯係我們進行處理。















![[4K] 2.1G 虛空之美-100個日式庭院](http://www.online4teile.com/wp-content/uploads/2023/09/1_202309111611111-8-414x550.jpg)





