“Donna Vitina” – 一家俯瞰地中海的烹飪沙龍。
置身於 Gela 的 Lungomare Federico II 的美妙環境中,該海灘以其獨特的美景而聞名,激發了 Salvatore Quasimodo 等偉大詩人的靈感,“Donna Vitina – 地中海美食”是由 Puccio Collodoro Architetti 工作室設計的一個非常優雅的重新改造項目。
一個有規則計劃的空間,其特點是兩扇非常大的窗戶,可以俯瞰美妙的格拉海,這激發了年輕設計師的靈感,他們設法構想了一個優雅和傳統以巧妙和原始的方式相結合的空間。“Vitina”,這是一位激勵客戶的女性的名字,她麵臨著重要的商業挑戰,旨在創造一個“賓至如歸”的地方;一個真正的烹飪沙龍,在那裏您可以感受到家庭的一員,讓自己在品嚐菜肴時盡情享受。
細節的精致和材料的巧妙組合營造出溫馨優雅的氛圍,其中無可爭議的主角當然是廚房體積,其特點是金屬結構中的皮革和玻璃隔板,是金色飾麵,想要成為整個房間(即廚房)的物理和視覺提升。
整個餐廳的特點是優雅的桌椅組合,以及由石灰華背景的橡木製成的大型展示牆,最終形成一個垂直於同一麵牆放置的屏蔽模塊;該空間以蜿蜒而令人回味的金色金屬網係統為主,除了屏蔽放置在天花板上的植物係統外,還希望成為西西裏漁民使用的漁網的隱喻。
∇ 軸測圖
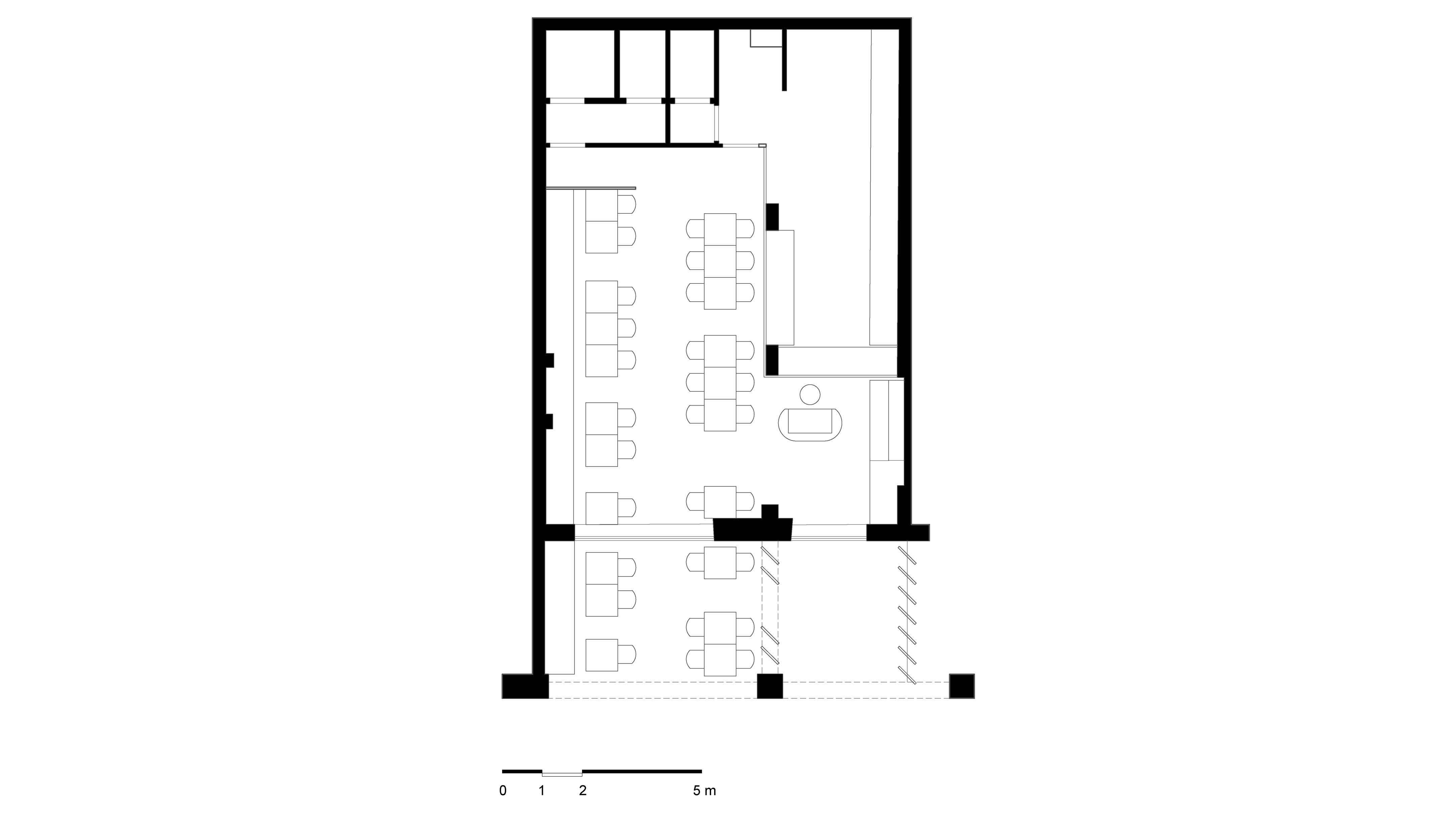
∇ 平麵圖
版權聲明:本站所有文章除投稿授權發布外,其他文字內容均為原創,享有著作權保護,未經許可不得以任何形式進行轉載(包括且不限於:媒體、網站、公眾號等)。所有項目照片/設計圖形版權歸原作者所有。本站部分內容源自網絡公開資源或用戶分享,如若侵犯了原作者的合法權益,可聯係我們進行處理。


























