依山而建 循光而至
在繁華都市裏擇選一處寧靜之所
借四季之光演繹空間詩意
以光為筆 以影為媒
肆意描繪動人畫麵
光影在水波蕩漾裏起舞
形影互動 空間交融
演繹人與自然的對話
營造自然與空間的交流
本案坐落於佛山大浩湖高爾夫球場附近,建築主體為聯排別墅,前庭後院格局,缺點是中央空間采光不足,因此,設計師對原有建築格局進行了結構改造,將長條形空間分成前廳、中庭、後廳的三段式格局,中央空間貫通至屋頂,和樓梯一起形成采光中庭的格局,這種建築建構的改造極大的優化了空間品質,所有空間都圍繞在中庭兩邊,除了將自然光引入整個空間外,更形成空間相互對話相互交流的開放性格局。
01 內向&貫通
受中國傳統民居四方庭院啟發,設計師在房屋中央區域打開一個上下貫通的中庭空間,這種內向中庭使空間既通透開放又具備足夠的隱私感,光影在中庭白牆上肆意揮灑,人與空間、自然與空間、空間與空間相互對話和交流。
設計師希望為空間營造一種“特殊關係”。建築化的形體語言、詩意化的藝術細節、穿透關係的自然光影,交織出一個簡潔純粹的自然詩意居所空間。
餐廳位於中庭下方,為整個空間的核心。並以此為中心軸串聯了所有房間,也成為一家人相互溝通的橋梁,搭配天光的傾灑,呈現了光與空間的對話,實木的餐桌、藤編的餐椅、枯木根雕的木質花瓶,呈現出歲月的痕跡,也展現出了業主對藝術生活的追求。
以無形塑造有形,將柔性的光、無形的影融為空間場景的一部分,在純白的背景上自由描畫,來消解結構的生硬感和藝術的距離感,恰到好處地鋪敘空間中的藝術故事,注入一抹溫度與感性。
光的意義即是如此,當光灑落在建築的某個角落,建築開始充滿靈性。
02 互動&交流
在設計師眼裏,家不隻是滿足一種居住功能,更是一處心靈棲息場所,空間有詩意,處處皆風景。設計師將表現重點放在了中庭,每一層空間設置不同方向的露台和窗台,相互呼應而又錯落有致,這使得一二三樓的家庭成員之間沒有阻隔,隨時可以產生情感的互動和交流,這種空間格局使得親情關係更加親密和融洽。
基於建築中空的挑高趨勢,設計師轉而從空間內部尋找契機,延伸空間立麵的縱深尺度,在包裹與敞開的圍合之間,製造空間與人的情緒轉換。從天窗落下的光,在不同轉折麵中層層轉換,水泥牆體的原始質感,與黃銅金屬的樓梯及窗台,形成了特有的空間質感和表情。
設計師圍繞“人、自然、藝術”上演了一場空間對話的故事情節。光線通過天窗和空間產生對話,人和人通過公共中庭產生交流。空間和空間也能產生共通。體塊間的融合、穿插、分離與疊加,讓空間靈活且賦予變化。設計師希望每個到此做客的親朋與賓客,都能在此體驗到一種獨特的生活美學,在這裏,向上可以瞭望天空,向下可以俯瞰大地。
極簡的空間構造,呈現出大道至美的感染力,藝術審美的純粹感與當代人居生活的豐富性,在構造的細部質地的作用下,形成空間的戲劇張力。這種“張力”不斷蔓延,並在空間的不斷轉折中,形成遊走、牽引的暗線。
一樓空間充足的流動性和錯落感。整體抬高餐廳,讓公共區域形成高低差,不經意間達成別具特色的功能分區效果。陳設小物取法自然,探尋美學因果,於過去、現在與未來之間汲取靈感,拙美的器皿,幹枯的枝蔓,器物在留白中歸於侘寂美學。
光從室外躍入室內,緩緩遊走於空間裏的每個角落。光影隨著時間而變幻,跳躍在不同的空間中,器物、家具、交織在光影中,因而獲得新的生命力,著墨於光影和材質的描繪,將一物一器連為一個整體,勾勒出眼前豐富的空間形態。
進入客廳區域後迎向大麵的南向采光,光線透過窗緩緩進入室內,在柔光輕撫下迎接日常的序幕。如同置身於寂然、平和、豐潤的藝術氛圍中,抱著一顆安靜、隨和的心在方寸之間體悟生活的純粹和悠然。
03 亦動&亦靜
在中空挑高的休憩區,引入一排透明天窗,以玻璃材質的屋頂水池形成光的入口,將波光投射在牆壁和空間中,使空間在明與暗、剛與柔、動與靜的對比呈演出藝術化的效果。
左邊的樓梯空間靜謐而具有儀式感,右邊中庭的畫壁上光影不停變幻無窮,光透過屋頂水池投射到牆壁上,形成波光粼粼的漣漪。
順樓梯而上,每一層都呈現出不同的光影變化,一步一景,一動一靜,空間在靜謐和動感中達成一種和諧!
現代藝術空間的美學基因是與光影相生、消減複雜,注入溫度,予人輕盈而靈動的觀感。溫潤的木質元素,合理光線創造舒適的睡眠環境,通過材質的運用和生活方式的結合,從觸覺的舒適來提升溫馨感。
04 文人&雅趣
書房既是主人的辦公場所,也是安靜思考冥想之地,除了傳統文化屬性,更需要營造一種純粹靜謐的氛圍。溫潤的木質牆麵及地板,手工縫製馬鞍皮的桌椅,牆麵的當代藝術作品。無不傳遞出文人雅客的精致和睿智。在這樣的空間裏,靜下心專注於學習與思考,讓思緒在空間中流淌,讓空間逐漸歸於侘寂。
茶室獨享一方內院,柔和的光線,溫潤的材質,衝一壺紅茶,享受靜謐的下午時光,可以彈素琴,閱金經,無絲竹之亂耳,無案牘之勞形!
05 溫情&溫度
光線漸漸褪去,窗戶以及走廊的暖黃色燈光亮了起來,猶如萬家燈火升起,燈火賦予空間以溫暖感,夜空中的月光從天窗灑入室內,寂靜之中充滿浪漫的氛圍。陰暗交織的光影,細膩柔和的色調,透著自然氣息的天然材料,每一處細節的分寸,不僅保證了室內空間的氛圍,更營造出一室優雅靜謐的美學空間。 如自由的淨土,如詩意的遠方,讓居住者汲取寧靜與養分。讓人有種源於廣博自然的平凡、溫存與恬靜。
後院以簡潔的建築體塊打造一座涼亭,在這裏,主人可以享受那種“談笑有鴻儒,往來無白丁”的文人雅客之境,正所謂“無客不歡,無亭不雅”。
當夜幕降臨,倦鳥開始歸林。庭院燈光開始亮起,一切歸於平靜,庭院設置有戶外火爐,當爐火開始燃起,一家人圍在爐火前或飲酒或交談,再或者呼朋喚友,不亦樂乎!
迂回婉轉的廊道更是讓人體驗空間的豐富層次,帶著窺探的好奇心引人入勝,就這樣遊走在步移景異的庭院。
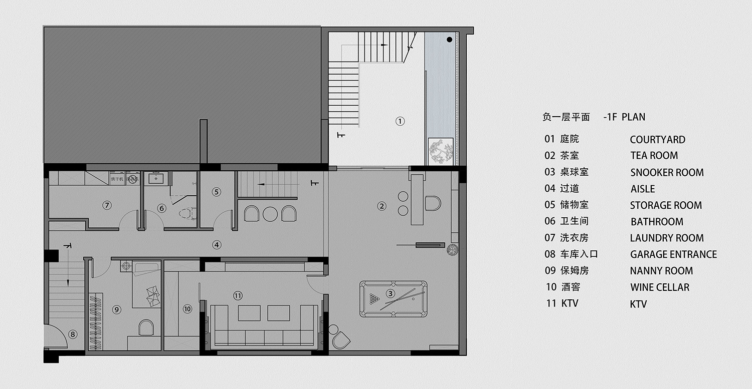
∇ 負一層平麵 -1F Plan
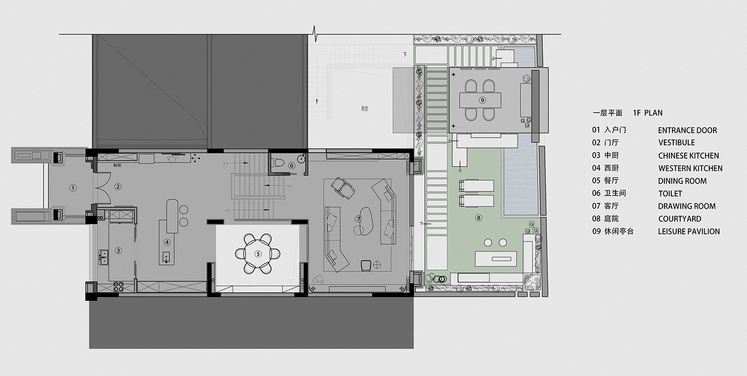
∇ 一層平麵 1F Plan
∇ 二層平麵 2F Plan
∇ 三層平麵 3F Plan
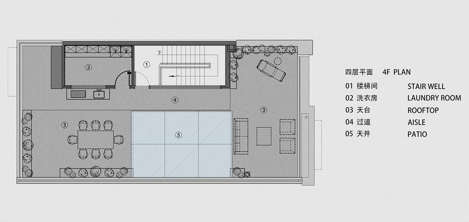
∇ 四層平麵 4F Plan
項目信息
項目名稱:大浩湖別墅
項目地址:中國 佛山
設計麵積:500平米
設計時間:2020年07月
竣工時間:2022年05月
設計單位:佛山市拓維室內設計有限公司
主案設計:汪誌科&李小水
設計團隊:駱宏利、賴玉琴、劉洋鑄、蘇建銘、周盛華、鄧鑒鋒
文案撰寫:蘭菁薇
軟裝設計:楊仕威/佛山市采虹空間
工程建設:佛山市集慧裝飾工程有限公司
全屋定製:柚美高端定製、木幾定製
項目攝影:歐陽雲


























































