Sage Bar坐落於成都西部國際金融中心(WIFC)塔樓後方一條服務通道的盡頭。為了突出調酒師在對各類草藥的專注,OFFICE AIO設計了一個層次明晰的空間,聚焦以植物為重心的吧台。
從一個未被善用的街角,到一家與眾不同的酒吧
Sage Bar位處一個繁華的街區,大型商業建築與簡樸的住宅樓宇參雜卻也融洽。它隱身在WIFC商場的角落,與進入停車場的坡道平行,顧客們需要轉身越過一條狹窄的小巷才能抵達酒吧。設計師利用這種“可疑”的進入方式,創造了一種與繁華街區形成對比的專屬且具隱私的氛圍。通道的盡頭,帆布篷的遮蔽下隨意擺放的幾套桌椅、和一條與現有花槽結合的不鏽鋼長凳,在玻璃塔樓的圍繞下,形成一個都市綠洲,在顧客造訪時,立即令人放鬆心智。
一波波別致的觀賞席
穿越進入室內,單扇推拉門開辟了一個擁有強烈視覺張力的向內導向空間。 層層L形空間的尖角指向入口,將顧客的注意力沿著方形布局的對角線向內延伸。 顧客則以一個對稱的方式沿著尖角的兩側進入室內。坐在定製直角長椅上的顧客在柔和的牆壁和玻璃的映襯下閱覽過往的人潮。
層層遞進的布局,像波浪般蔓延,自然形成了容納不同社交氛圍的空間。最外/低層以一個下沉座位的模式為基礎,寬敞舒適的座位與流動的人群使外環充滿活力。 從L型動線的兩端邁入中層空間,定製直角長椅的座位轉向吧台,竊竊私語之餘,同時間接享受調酒吧台周圍的氣氛。吧台前的升高座位擁有觀賞調酒的最佳視角,雖然位於空間的最高的聚焦點,但顧客們背對著主空間動線,還可自在地與調酒師互動。每個層次的階梯狀拱頂,收縮了該區域的空間體積,並隨著層層空間的凝聚,環境氛圍也漸變私密。如此自然的氛圍分區和切割,讓顧客們可依照社交需求入座,也形成了一幅有趣的風景。
透著微光的草本聚焦
現澆水磨石的地形構成了一個流暢和平衡的布局。 每個拱頂都與一個環層相吻合,囊括了它的體量,也包容了它的光線和聲音反射。 階梯狀的拱頂與下方L型空間相呼應,並仔細控製’洗牆燈’的角度,使其在拱頂上形成獨特的陰影。 拱頂自有的橢圓輪廓與劃分空間的直線條形成對比,並使之變得柔和。
在入口的正對角,酒吧後方的尖角以鏡麵裝飾的方式,將空間感無限延伸。它的反影給予了從天花板上垂下的植物(幾乎碰觸到酒瓶)特有的豐富感,並在這個角落,點亮了Sage Bar的存在。溫和的大地色彩與材質,體現在藤色質感塗料牆麵、橄欖綠的椅子、和灰色天鵝絨軟包之間,如毛茸茸的鼠尾草,串聯起空間細節與Sage Bar的特色植物酒單,成就了一個體現品牌與自然之間別致關係的城市綠洲。
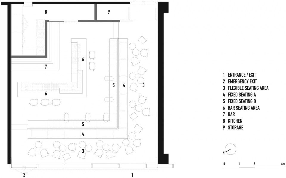
∇ 平麵圖
項目信息
Client:Sage Bar
Location:中國成都 Chengdu, China
Area:室內麵積 105sqm+ 室外座椅麵積 37sqm
Commission:空間設計 & 外立麵設計更改
Principal:Tim Kwan
Team:於思琪, 楊霄, 解估漁, 喬燕莎
Appointment:2020
Completion:2021
Photography:Wen Studio




















